Rentals » Kanto » Saitama » Toda
 
| Railroad-station 沿線・駅 | | JR Saikyo Line / Toda JR埼京線/戸田 | Address 住所 | | Toda City Prefecture Nizominami 2 埼玉県戸田市新曽南2 | Walk 徒歩 | | 13 minutes 13分 | Rent 賃料 | | 90,000 yen 9万円 | Management expenses 管理費・共益費 | | 10000 yen 10000円 | Key money 礼金 | | 90,000 yen 9万円 | Security deposit 敷金 | | 90,000 yen 9万円 | Floor plan 間取り | | 3DK 3DK | Occupied area 専有面積 | | 59.22 sq m 59.22m2 | Direction 向き | | West 西 | Type 種別 | | Mansion マンション | Year Built 築年 | | Built 18 years 築18年 | | Instruments (upright piano) negotiable, No renewal fee, Corner room 楽器(アップライトピアノ)相談可、更新料なし、角部屋 |
| Instruments (upright piano) negotiable, No renewal fee, Parking available on site, Corner room, System kitchen (three-necked), auto lock, Elevator, Reheating, Bidet, Corner room, bay window 楽器(アップライトピアノ)相談可、更新料なし、敷地内駐車場あり、角部屋、システムキッチン(3口)、オートロック、エレベーター、追い焚き、ウォシュレット、角部屋、出窓 |
| Bus toilet by, balcony, Flooring, Washbasin with shower, auto lock, Indoor laundry location, System kitchen, Add-fired function bathroom, Corner dwelling unit, Warm water washing toilet seat, Dressing room, Elevator, Seperate, Bicycle-parking space, closet, CATV, Optical fiber, Immediate Available, 3-neck over stove, All room storage, With grill, Sorting, CATV Internet, Bike shelter, Nakate 0.525 months, Musical Instruments consultation, Closet 2 places, 2 Station Available, On-site trash Storageese-style room, Door to the washroom バストイレ別、バルコニー、フローリング、シャワー付洗面台、オートロック、室内洗濯置、システムキッチン、追焚機能浴室、角住戸、温水洗浄便座、脱衣所、エレベーター、洗面所独立、駐輪場、押入、CATV、光ファイバー、即入居可、3口以上コンロ、全居室収納、グリル付、振分、CATVインターネット、バイク置場、仲手0.525ヶ月、楽器相談、クロゼット2ヶ所、2駅利用可、敷地内ごみ置き場、和室、洗面所にドア |
Property name 物件名 | | Rental housing Toda City Prefecture Nizominami 2 Toda Station [Rental apartment ・ Apartment] information Property Details 埼玉県戸田市新曽南2 戸田駅の賃貸住宅[賃貸マンション・アパート]情報 物件詳細 | Transportation facilities 交通機関 | | JR Saikyo Line / Ayumi Toda 13 minutes JR Saikyo Line / Todakoen walk 19 minutes JR Saikyo Line / Ayumi Kitatoda 28 minutes JR埼京線/戸田 歩13分 JR埼京線/戸田公園 歩19分 JR埼京線/北戸田 歩28分
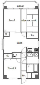
| Floor plan details 間取り詳細 | | Sum 6 Hiroshi 6 Hiroshi 4.5 DK8.8 和6 洋6 洋4.5 DK8.8 | Construction 構造 | | Rebar Con 鉄筋コン | Story 階建 | | 4th floor / 5-story 4階/5階建 | Built years 築年月 | | March 1996 1996年3月 | Nonlife insurance 損保 | | 20,000 yen two years 2万円2年 | Parking lot 駐車場 | | Site 10500 yen 敷地内10500円 | Move-in 入居 | | Immediately 即 | Trade aspect 取引態様 | | Mediation 仲介 | Remarks 備考 | | 1025m to Super Value Toda shop / 281m until the Seven-Eleven store Nizominami Toda / Instruments (upright piano) negotiable, No renewal fee, Corner room スーパーバリュー戸田店まで1025m/セブンイレブン戸田新曽南店まで281m/楽器(アップライトピアノ)相談可、更新料なし、角部屋 | Area information 周辺情報 | | Nishimatsuya Toda shop (shopping center) until the 579m Super Value Toda shop (super) up to 1025m Seven-Eleven Toda Nizominami store (convenience store) up to 281m Uerushia Toda Nizo store (drugstore) to 595m Nizominami nursery school (kindergarten ・ To nursery school) 1171m to 137m Medical Corporation high-Jin meeting Toda Hospital (Hospital) 西松屋戸田店(ショッピングセンター)まで579mスーパーバリュー戸田店(スーパー)まで1025mセブンイレブン戸田新曽南店(コンビニ)まで281mウエルシア戸田新曽店(ドラッグストア)まで595m新曽南保育園(幼稚園・保育園)まで137m医療法人高仁会戸田病院(病院)まで1171m |
Building appearance建物外観 
Living and room居室・リビング 

Kitchenキッチン 
Bathバス 
Toiletトイレ 
Receipt収納 

Other room spaceその他部屋・スペース 


Washroom洗面所 
Balconyバルコニー 
Entrance玄関 
Location
|