Rentals » Kanto » Saitama Prefecture » Tokorozawa
 
| Railroad-station 沿線・駅 | | Seibu Ikebukuro Line / Tokorozawa 西武池袋線/所沢 | Address 住所 | | Tokorozawa Prefecture, Oaza Kamiyasumatsu 埼玉県所沢市大字上安松 | Bus バス | | 8 minutes 8分 | Walk 徒歩 | | 2 min 2分 | Rent 賃料 | | 43,000 yen 4.3万円 | Management expenses 管理費・共益費 | | 2000 yen 2000円 | Security deposit 敷金 | | 43,000 yen 4.3万円 | Floor plan 間取り | | 2K 2K | Occupied area 専有面積 | | 33 sq m 33m2 | Direction 向き | | South 南 | Type 種別 | | Apartment アパート | Year Built 築年 | | Built 39 years 築39年 | | CATV correspondence Immediate Available ・ Convenience store 230m, Super 375m CATV対応 即入居可・コンビニ230m、スーパー375m |
| balcony, Gas stove correspondence, Yang per good, Facing south, Add-fired function bathroom, Corner dwelling unit, Optical fiber, Immediate Available, Key money unnecessary, A quiet residential area, top floor, 2 wayside Available, Window in the kitchen, Leafy residential area, The window in the bathroom, Within a 3-minute bus stop walk, Ventilation good バルコニー、ガスコンロ対応、陽当り良好、南向き、追焚機能浴室、角住戸、光ファイバー、即入居可、礼金不要、閑静な住宅地、最上階、2沿線利用可、キッチンに窓、緑豊かな住宅地、浴室に窓、バス停徒歩3分以内、通風良好 |
Property name 物件名 | | Rental housing of Tokorozawa Prefecture, Oaza Kamiyasumatsu Tokorozawa Station [Rental apartment ・ Apartment] information Property Details 埼玉県所沢市大字上安松 所沢駅の賃貸住宅[賃貸マンション・アパート]情報 物件詳細 | Transportation facilities 交通機関 | | Seibu Ikebukuro Line / Tokorozawa 8 minutes by bus (bus stop) Kamiyasumatsu walk 2 minutes 西武池袋線/所沢 バス8分 (バス停)上安松 歩2分
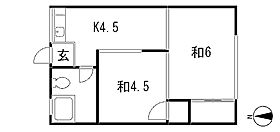
| Floor plan details 間取り詳細 | | Sum 6 sum 4.5 K4.5 和6 和4.5 K4.5 | Construction 構造 | | Wooden 木造 | Story 階建 | | Second floor / 2-story 2階/2階建 | Built years 築年月 | | March 1975 1975年3月 | Nonlife insurance 損保 | | The main 要 | Parking lot 駐車場 | | Neighborhood 100m7500 yen 近隣100m7500円 | Move-in 入居 | | Immediately 即 | Trade aspect 取引態様 | | Mediation 仲介 | Remarks 備考 | | Convenience store 3 minutes ・ 375m to super / Patrol management / Immediate Available ・ Convenience store 230m コンビニ3分・スーパーまで375m/巡回管理/即入居可・コンビニ230m | Area information 周辺情報 | | Yaoko Co., Ltd. Tokorozawa Matsui shop 379m until the (super) up to 562m Three F Tokorozawa Kamiyasumatsu store (convenience store) up to 435m drag Seimusu 494m to Tokorozawa Matsui pharmacy (drugstore) Tokorozawa Municipal Matsui elementary school (elementary school) ヤオコー所沢松井店(スーパー)まで562mスリーエフ所沢上安松店(コンビニ)まで435mドラッグセイムス所沢松井薬局(ドラッグストア)まで494m所沢市立松井小学校(小学校)まで379m |
Living and room居室・リビング 
Building appearance建物外観 

Living and room居室・リビング 

Kitchenキッチン 
Bathバス 
Other room spaceその他部屋・スペース 

Entrance玄関 

Supermarketスーパー  Yaoko Co., Ltd. Tokorozawa Matsui shop (super) up to 562m
ヤオコー所沢松井店(スーパー)まで562m
Convenience storeコンビニ  Three F Tokorozawa Kamiyasumatsu store up (convenience store) 435m
スリーエフ所沢上安松店(コンビニ)まで435m
Dorakkusutoaドラックストア  Drag Seimusu Tokorozawa Matsui pharmacy 494m to (drugstore)
ドラッグセイムス所沢松井薬局(ドラッグストア)まで494m
Primary school小学校  Tokorozawa until Municipal Matsui elementary school (elementary school) 379m
所沢市立松井小学校(小学校)まで379m
Location
|