|
Railroad-station 沿線・駅 | | Seibu Ikebukuro Line / Tokorozawa 西武池袋線/所沢 |
Address 住所 | | Tokorozawa Prefecture, Oaza Kitaakitsu 埼玉県所沢市大字北秋津 |
Walk 徒歩 | | 8 minutes 8分 |
Rent 賃料 | | 140,000 yen 14万円 |
Key money 礼金 | | 140,000 yen 14万円 |
Security deposit 敷金 | | 280,000 yen 28万円 |
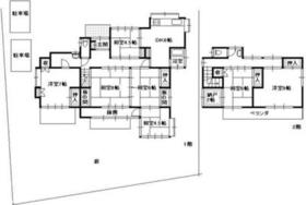
Floor plan 間取り | | 7DK 7DK |
Occupied area 専有面積 | | 121.3 sq m 121.3m2 |
Direction 向き | | South 南 |
Type 種別 | | Residential home 一戸建て |
Year Built 築年 | | Built 44 years 築44年 |
|
5-year fixed-term lease! 7DK (120 square meters more than)! Tokorozawa Station 8 minutes! Free parking
定期借家5年!7DK(120平米超)!所沢駅8分!駐車場無料
|
|
Site 100 square meters more than! On-site parking 2 cars Free! ! Day good! Advances short term also consult Allowed. Fixed-term lease contract 5 years!
敷地100坪超!敷地内駐車場2台分無料!!日当り良好!立替短期もご相談可。定期借家契約5年!
|
|
Bus toilet by, balcony, Yang per good, Shoe box, Facing south, Seperate, closet, Immediate Available, Parking two Allowed, Two tenants consultation, Entrance hall, 3 face lighting, 2 wayside Available, Private garden, Flat to the station, Window in the kitchen, Parking two free, Deposit 2 months, Leafy residential area, Good view, Upper closet, Toilet 2 places, Entrance porch, 2 family house, Within a 10-minute walk station, The area occupied 30 square meters or more
バストイレ別、バルコニー、陽当り良好、シューズボックス、南向き、洗面所独立、押入、即入居可、駐車2台可、二人入居相談、玄関ホール、3面採光、2沿線利用可、専用庭、駅まで平坦、キッチンに窓、駐車場2台無料、敷金2ヶ月、緑豊かな住宅地、眺望良好、天袋、トイレ2ヶ所、玄関ポーチ、2世帯住宅、駅徒歩10分以内、専有面積30坪以上
|
Property name 物件名 | | Rental housing of Tokorozawa Prefecture, Oaza Kitaakitsu Tokorozawa Station [Rental apartment ・ Apartment] information Property Details 埼玉県所沢市大字北秋津 所沢駅の賃貸住宅[賃貸マンション・アパート]情報 物件詳細 |
Transportation facilities 交通機関 | | Seibu Ikebukuro Line / Tokorozawa walk 8 minutes JR Musashino Line / Shin Akitsu step 21 minutes Seibu Ikebukuro Line / Ayumi Akitsu 26 minutes 西武池袋線/所沢 歩8分 JR武蔵野線/新秋津 歩21分 西武池袋線/秋津 歩26分
|
Floor plan details 間取り詳細 | | Sum 8 sum 6 sum 6 sum 4.5 sum 4.5 Hiroshi 9 Hiroshi 7 DK6 和8 和6 和6 和4.5 和4.5 洋9 洋7 DK6 |
Construction 構造 | | Wooden 木造 |
Story 階建 | | 1st floor / 2-story 1階/2階建 |
Built years 築年月 | | March 1970 1970年3月 |
Nonlife insurance 損保 | | 20,000 yen two years 2万円2年 |
Parking lot 駐車場 | | Free with 付無料 |
Move-in 入居 | | Immediately 即 |
Trade aspect 取引態様 | | Mediation 仲介 |
Conditions 条件 | | Two people Available / Children Allowed 二人入居可/子供可 |
Property code 取り扱い店舗物件コード | | 6204392 6204392 |
Fixed-term lease 定期借家 | | 5-year fixed-term lease 定期借家 5年 |
Intermediate fee 仲介手数料 | | 1.05 months 1.05ヶ月 |
Remarks 備考 | | Tokorozawa Municipal Kitaakitsu to elementary school 352m / Tokorozawa 621m to the central hospital / Garden maintenance of the lender. O'clock neighboring apartment renovation at the parking lot one use. 所沢市立北秋津小学校まで352m/所沢中央病院まで621m/庭の維持管理は貸主。近隣アパートリフォーム時駐車場一時使用。 |