Rentals » Kanto » Saitama Prefecture » Tokorozawa
 
| Railroad-station 沿線・駅 | | Seibu Ikebukuro Line / Nishitokorozawa 西武池袋線/西所沢 | Address 住所 | | Tokorozawa Prefecture, Oaza Kume 埼玉県所沢市大字久米 | Walk 徒歩 | | 20 min 20分 | Rent 賃料 | | 85,000 yen 8.5万円 | Key money 礼金 | | 85,000 yen 8.5万円 | Security deposit 敷金 | | 170,000 yen 17万円 | Floor plan 間取り | | 4DK 4DK | Occupied area 専有面積 | | 82.8 sq m 82.8m2 | Direction 向き | | South 南 | Type 種別 | | Residential home 一戸建て | Year Built 築年 | | Built 29 years 築29年 | | South-facing per diem good! Natural full environment! With a private garden! 南向き日当良好!自然溢れる環境!専用庭付! |
| Gardening pets in your garden! ! Pets (outside dog only possible)! Piano negotiable! Air conditioning is leaving product! Parking nearby! お庭でガーデニング可!!ペット(外犬のみ可)!ピアノ相談可!エアコンは残置物!駐車場近隣! |
| Bus toilet by, balcony, Air conditioning, Gas stove correspondence, Flooring, TV interphone, Yang per good, Facing south, Add-fired function bathroom, Dressing room, Seperate, closet, Immediate Available, A quiet residential area, Pets Negotiable, bay window, Otobasu, Two tenants consultation, Entrance hall, 3 face lighting, Deposit 2 months, Housing 2 between, Leafy residential area, Good view, Underfloor Storage, Office consultation, Musical Instruments consultation, Toilet 2 places, Room share consultation, 2 Station Available, 3 along the line more accessible, The area occupied 25 square meters or more, Our managed properties バストイレ別、バルコニー、エアコン、ガスコンロ対応、フローリング、TVインターホン、陽当り良好、南向き、追焚機能浴室、脱衣所、洗面所独立、押入、即入居可、閑静な住宅地、ペット相談、出窓、オートバス、二人入居相談、玄関ホール、3面採光、敷金2ヶ月、収納2間、緑豊かな住宅地、眺望良好、床下収納、事務所相談、楽器相談、トイレ2ヶ所、ルームシェア相談、2駅利用可、3沿線以上利用可、専有面積25坪以上、当社管理物件 |
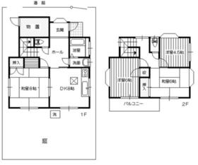
Property name 物件名 | | Rental housing of Tokorozawa Prefecture, Oaza Kume Nishitokorozawa Station [Rental apartment ・ Apartment] information Property Details 埼玉県所沢市大字久米 西所沢駅の賃貸住宅[賃貸マンション・アパート]情報 物件詳細 | Transportation facilities 交通機関 | | Seibu Ikebukuro Line / Nishitokorozawa walk 20 minutes Seibu Seibu-en Line / Seibuen walk 23 minutes Seibu Sayama Line / Shimo Yamaguchi walk 24 minutes 西武池袋線/西所沢 歩20分 西武西武園線/西武園 歩23分 西武狭山線/下山口 歩24分
| Floor plan details 間取り詳細 | | Sum 8 sum 6 Hiroshi 6 Hiroshi 4.5 DK8 和8 和6 洋6 洋4.5 DK8 | Construction 構造 | | Wooden 木造 | Story 階建 | | 1st floor / 2-story 1階/2階建 | Built years 築年月 | | August 1985 1985年8月 | Nonlife insurance 損保 | | 20,000 yen two years 2万円2年 | Parking lot 駐車場 | | Neighborhood 80m6500 yen 近隣80m6500円 | Move-in 入居 | | Immediately 即 | Trade aspect 取引態様 | | Mediation 仲介 | Conditions 条件 | | Two people Available / Children Allowed / Pets Negotiable / Musical Instruments consultation / Office use consultation / Room share consultation 二人入居可/子供可/ペット相談/楽器相談/事務所利用相談/ルームシェア相談 | Property code 取り扱い店舗物件コード | | 6204488 6204488 | Intermediate fee 仲介手数料 | | 1.05 months 1.05ヶ月 | Remarks 備考 | | To Tianchi 200m / Tokorozawa Minami to elementary school 1170m / Pets (outside dog) ・ Piano negotiable! Houses for rent Detached Outside dog あまいけまで200m/所沢市立南小学校まで1170m/ペット(外犬)・ピアノ相談可! 貸家 戸建 外犬 |
Building appearance建物外観 


Living and room居室・リビング 



 Flooring
フローリング
Kitchenキッチン  Gas stove 2 burners installed Allowed
ガスコンロ2口設置可
Bathバス  Remote-control add 焚式 bus
リモコン式追焚式バス
Balconyバルコニー 
Entrance玄関 
Otherその他 
Location
|