Rentals » Kanto » Saitama Prefecture » Tokorozawa
 
| Railroad-station 沿線・駅 | | JR Musashino Line / Shin Akitsu JR武蔵野線/新秋津 | Address 住所 | | Tokorozawa Prefecture, Oaza Shimoyasumatsu 埼玉県所沢市大字下安松 | Walk 徒歩 | | 20 min 20分 | Rent 賃料 | | 61,000 yen 6.1万円 | Management expenses 管理費・共益費 | | 3000 yen 3000円 | Security deposit 敷金 | | 122,000 yen 12.2万円 | Floor plan 間取り | | 2DK 2DK | Occupied area 専有面積 | | 48.6 sq m 48.6m2 | Direction 向き | | West 西 | Type 種別 | | Mansion マンション | Year Built 築年 | | Built 26 years 築26年 | | A pet-friendly apartment angle room is useful in the supermarket close ペット可マンション角部屋ですスーパー至近で便利です |
| Super close angle room! Pet breeding (small dog or cat one animal) is possible Mansion! Bus stop a 1-minute walk! Tokorozawa flights, Higashitokorozawa bound and a lot number, Convenience J: COM In My Room correspondence! (J: Free until COM net 1M! ) スーパー至近角部屋!ペット飼育(小型犬or猫1匹)可マンションです!バス停徒歩1分!所沢行き、東所沢行きと本数が多く、便利J:COMインマイルーム対応!(J:COMネット1Mまで無料!) |
| Bus toilet by, balcony, Air conditioning, Gas stove correspondence, Flooring, TV interphone, Indoor laundry location, Yang per good, Add-fired function bathroom, Corner dwelling unit, Dressing room, Bicycle-parking space, closet, CATV, Outer wall tiling, Immediate Available, Key money unnecessary, Two-sided lighting, BS ・ CS, Pets Negotiable, Otobasu, Single person consultation, CATV Internet, Southwest angle dwelling unit, Entrance hall, CS, Flat to the station, Deposit 2 months, Good view, Office consultation, 3 station more accessible, 3 along the line more accessible, Within a 3-minute bus stop walk, On-site trash Storage, Our managed properties, BS バストイレ別、バルコニー、エアコン、ガスコンロ対応、フローリング、TVインターホン、室内洗濯置、陽当り良好、追焚機能浴室、角住戸、脱衣所、駐輪場、押入、CATV、外壁タイル張り、即入居可、礼金不要、2面採光、BS・CS、ペット相談、オートバス、単身者相談、CATVインターネット、南西角住戸、玄関ホール、CS、駅まで平坦、敷金2ヶ月、眺望良好、事務所相談、3駅以上利用可、3沿線以上利用可、バス停徒歩3分以内、敷地内ごみ置き場、当社管理物件、BS |
Property name 物件名 | | Rental housing of Tokorozawa Prefecture, Oaza Shimoyasumatsu Shin Akitsu Station [Rental apartment ・ Apartment] information Property Details 埼玉県所沢市大字下安松 新秋津駅の賃貸住宅[賃貸マンション・アパート]情報 物件詳細 | Transportation facilities 交通機関 | | JR Musashino Line / Shin Akitsu step 20 minutes JR Musashino Line / Higashitokorozawa walk 19 minutes Seibu Ikebukuro Line / Tokorozawa 10 minutes by bus (bus stop) Yasumatsu step 1 minute JR武蔵野線/新秋津 歩20分 JR武蔵野線/東所沢 歩19分 西武池袋線/所沢 バス10分 (バス停)安松 歩1分
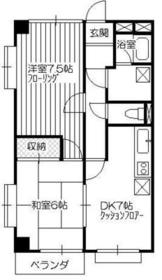
| Floor plan details 間取り詳細 | | Sum 6 Hiroshi 7.5 DK7 和6 洋7.5 DK7 | Construction 構造 | | Rebar Con 鉄筋コン | Story 階建 | | Second floor / Three-story 2階/3階建 | Built years 築年月 | | March 1988 1988年3月 | Nonlife insurance 損保 | | 20,000 yen two years 2万円2年 | Parking lot 駐車場 | | Neighborhood 200m7350 yen 近隣200m7350円 | Move-in 入居 | | Immediately 即 | Trade aspect 取引態様 | | Mediation 仲介 | Conditions 条件 | | Single person Allowed / Pets Negotiable / Office use consultation 単身者可/ペット相談/事務所利用相談 | Property code 取り扱い店舗物件コード | | 6204230 6204230 | Deposit buildup 敷金積み増し | | In the case of pet breeding deposit 1 month (gross) ペット飼育の場合敷金1ヶ月(総額) | Intermediate fee 仲介手数料 | | 1.05 months 1.05ヶ月 | Remarks 備考 | | Until Yaoko Co., Ltd. 294m / 122m to Lawson / Patrol management / Pet breeding time Super close 2 Kaikaku room Small dog Cat Office Allowed ヤオコーまで294m/ローソンまで122m/巡回管理/ペット飼育時 スーパー至近 2階角部屋 小型犬 猫 事務所可 |
Building appearance建物外観 


Living and room居室・リビング 

 Flooring
フローリング

Kitchenキッチン 
 Gas stove 2 burners installed Allowed
ガスコンロ2口設置可
Bathバス  Remote-control add 焚式 bus
リモコン式追焚式バス
Balconyバルコニー 
Entrance玄関 
Other common areasその他共有部分  Set post
集合ポスト
 Bicycle-parking space
駐輪場
Location
|