1993January
57,000 yen, 1K, Second floor / 2-story, 23.01 sq m
Rentals » Kanto » Saitama Prefecture » Warabi
 
| Railroad-station 沿線・駅 | | JR Keihin Tohoku Line / bracken JR京浜東北線/蕨 | Address 住所 | | Saitama Prefecture Warabi center 1 埼玉県蕨市中央1 | Walk 徒歩 | | 3 minutes 3分 | Rent 賃料 | | 57,000 yen 5.7万円 | Management expenses 管理費・共益費 | | 2000 yen 2000円 | Security deposit 敷金 | | 57,000 yen 5.7万円 | Floor plan 間取り | | 1K 1K | Occupied area 専有面積 | | 23.01 sq m 23.01m2 | Direction 向き | | Southwest 南西 | Type 種別 | | Apartment アパート | Year Built 築年 | | Built 22 years 築22年 | | Daiwa House construction! Free rent for one month! Corner room! Air conditioning 1 groups equipment 大和ハウス施工!フリーレント1ヶ月!角部屋!エアコン1基設備 |
| Daiwa House construction! Free rent for one month! Corner room! Air conditioning 1 groups equipment! Key money unnecessary! Deposit 1 month! TV monitor interphone! Bathroom reheating hot water supply equipment! Bus toilet by! There is indoor washing machine Storage! Please feel free to contact us! 大和ハウス施工!フリーレント1ヶ月!角部屋!エアコン1基設備!礼金不要!敷金1ヶ月!TVモニターインターホン!浴室追い焚き給湯設備!バストイレ別!室内洗濯機置き場有り!お気軽にお問い合せください! |
| Bus toilet by, balcony, Air conditioning, TV interphone, Indoor laundry location, Add-fired function bathroom, Corner dwelling unit, CATV, Key money unnecessary, Deposit 1 month, Free Rent バストイレ別、バルコニー、エアコン、TVインターホン、室内洗濯置、追焚機能浴室、角住戸、CATV、礼金不要、敷金1ヶ月、フリーレント |
Property name 物件名 | | Rental housing Prefecture Warabi Central 1 bracken Station [Rental apartment ・ Apartment] information Property Details 埼玉県蕨市中央1 蕨駅の賃貸住宅[賃貸マンション・アパート]情報 物件詳細 | Transportation facilities 交通機関 | | JR Keihin Tohoku Line / Ayumi Warabi 3 minutes JR Keihin Tohoku Line / Nishikawaguchi walk 28 minutes JR Saikyo Line / Ayumi Toda 29 minutes JR京浜東北線/蕨 歩3分 JR京浜東北線/西川口 歩28分 JR埼京線/戸田 歩29分
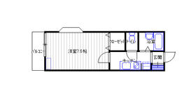
| Floor plan details 間取り詳細 | | Hiroshi 7.5 K2 洋7.5 K2 | Construction 構造 | | Light-gauge steel 軽量鉄骨 | Story 階建 | | Second floor / 2-story 2階/2階建 | Built years 築年月 | | January 1993 1993年1月 | Nonlife insurance 損保 | | The main 要 | Move-in 入居 | | Consultation 相談 | Trade aspect 取引態様 | | Mediation 仲介 | Conditions 条件 | | Free rent for one month フリーレント1ヶ月 | Remarks 備考 | | Daiwa House construction! Corner room! Air conditioning 1 groups equipment! 大和ハウス施工!角部屋!エアコン1基設備! |
Building appearance建物外観 

Location
|