1970November
80,000 yen, 1K, 3rd floor / 4-story, 42.27 sq m
Rentals » Kanto » Tokyo » Adachi-ku

| Railroad-station 沿線・駅 | | Tokyo Metro Chiyoda Line / Ayase 東京メトロ千代田線/綾瀬 | Address 住所 | | Adachi-ku, Tokyo Ayase 1 東京都足立区綾瀬1 | Walk 徒歩 | | 2 min 2分 | Rent 賃料 | | 80,000 yen 8万円 | Key money 礼金 | | 80,000 yen 8万円 | Security deposit 敷金 | | 80,000 yen 8万円 | Floor plan 間取り | | 1K 1K | Occupied area 専有面積 | | 42.27 sq m 42.27m2 | Direction 向き | | South 南 | Type 種別 | | Mansion マンション | Year Built 築年 | | Built 44 years 築44年 | | ※ We'll give your suggestions you live based on the buying and selling experience in the metropolitan area near 7,000 around the house of the family-friendly. Loan or so in the purchase or rent in the rent, Since it is a fairly even only comparative study, Please feel free to contact us ※弊社はファミリー向けの住宅を中心とする首都圏近郊7000件の売買実績をもとにお住まいのご提案を差し上げます。賃貸で家賃か購入でローンか等々、比較検討だけでも結構ですので、お気軽にご相談くださいませ |
| Bus toilet by, balcony, Air conditioning, Gas stove correspondence, closet, Flooring, Indoor laundry location, Shoe box, Corner dwelling unit, Dressing room, Seperate, Walk-in closet, Southeast angle dwelling unit, All living room flooring, Air Conditioning All rooms バストイレ別、バルコニー、エアコン、ガスコンロ対応、クロゼット、フローリング、室内洗濯置、シューズボックス、角住戸、脱衣所、洗面所独立、ウォークインクロゼット、東南角住戸、全居室フローリング、エアコン全室 |
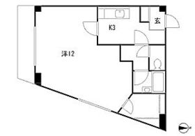
Property name 物件名 | | Rental housing in Adachi-ku, Tokyo Ayase 1 Ayase Station [Rental apartment ・ Apartment] information Property Details 東京都足立区綾瀬1 綾瀬駅の賃貸住宅[賃貸マンション・アパート]情報 物件詳細 | Transportation facilities 交通機関 | | Tokyo Metro Chiyoda Line / Ayumi Ayase 2 minutes 東京メトロ千代田線/綾瀬 歩2分
| Floor plan details 間取り詳細 | | Hiroshi 12 K3 洋12 K3 | Construction 構造 | | Rebar Con 鉄筋コン | Story 階建 | | 3rd floor / 4-story 3階/4階建 | Built years 築年月 | | November 1970 1970年11月 | Nonlife insurance 損保 | | The main 要 | Parking lot 駐車場 | | Neighborhood 80m25000 yen 近隣80m25000円 | Move-in 入居 | | Immediately 即 | Trade aspect 取引態様 | | Mediation 仲介 | Fixed-term lease 定期借家 | | Until August 2016 fixed-term lease AD 定期借家 西暦2016年8月まで | Guarantor agency 保証人代行 | | 30% content of the guarantee fee burden of Japan Rental guarantee accessible rent 日本賃貸保証利用可 家賃の3割分の保証料負担 | Remarks 備考 | | Southeast corner room, Walk-in closet, Indoor full renovation beauty Built 南東角部屋、ウォークインクロゼット、室内完全リフォーム美築 |
Building appearance建物外観 
Otherその他 

Location
|