1980August
450,000 yen, 2LDK, 6th floor / 7-story, 126.55 sq m
Rentals » Kanto » Tokyo » Chiyoda
 
| Railroad-station 沿線・駅 | | Tokyo Metro Hanzomon / Hanzomon 東京メトロ半蔵門線/半蔵門 | Address 住所 | | Chiyoda-ku, Tokyo Ichibancho 東京都千代田区一番町 | Walk 徒歩 | | 2 min 2分 | Rent 賃料 | | 450,000 yen 45万円 | Security deposit 敷金 | | 2.7 million yen 270万円 | Floor plan 間取り | | 2LDK 2LDK | Occupied area 専有面積 | | 126.55 sq m 126.55m2 | Type 種別 | | Mansion マンション | Year Built 築年 | | Built 34 years 築34年 | | Green is close to the Imperial Palace, Luxury apartment. 皇居の緑が近く、高級マンション。 |
| Embassy and the famous university often turn the town area of Europe. Green is close to the Imperial Palace, Calm environment where luxury apartments are bristling. A profound sense of vintage apartment. One floor is made of a feeling of opening in one dwelling unit. ヨーロッパの大使館や有名大学が多い番町エリア。皇居の緑が近く、高級マンションが林立する落ち着いた環境。重厚感のあるヴィンテージマンション。ワンフロア一住戸で開放感のある造りです。 |
| Air conditioning, auto lock, System kitchen, Elevator, Immediate Available, Key money unnecessary, A quiet residential area, All room Western-style, refrigerator, With gas range, Washing machine, Dish washing dryer, Dryer, Deposit required, Microwave Oven, Within a 5-minute walk station, The area occupied 30 square meters or more エアコン、オートロック、システムキッチン、エレベーター、即入居可、礼金不要、閑静な住宅地、全居室洋室、冷蔵庫、ガスレンジ付、洗濯機、食器洗乾燥機、乾燥機、保証金不要、オーブンレンジ、駅徒歩5分以内、専有面積30坪以上 |
Property name 物件名 | | Rental housing, Chiyoda-ku, Tokyo Ichibancho Hanzomon Station [Rental apartment ・ Apartment] information Property Details 東京都千代田区一番町 半蔵門駅の賃貸住宅[賃貸マンション・アパート]情報 物件詳細 | Transportation facilities 交通機関 | | Tokyo Metro Hanzomon / Hanzomon walk 2 minutes 東京メトロ半蔵門線/半蔵門 歩2分
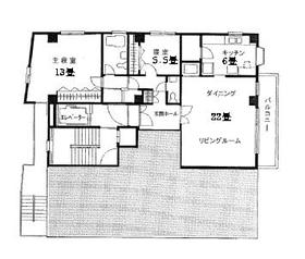
| Floor plan details 間取り詳細 | | Hiroshi 13 Hiroshi 5.5 LD22K6 洋13 洋5.5 LD22K6 | Construction 構造 | | Steel rebar 鉄骨鉄筋 | Story 階建 | | 6th floor / 7-story 6階/7階建 | Built years 築年月 | | August 1980 1980年8月 | Parking lot 駐車場 | | On-site 50,000 yen 敷地内50000円 | Move-in 入居 | | Immediately 即 | Trade aspect 取引態様 | | Mediation 仲介 | Property code 取り扱い店舗物件コード | | R0042025 R0042025 | Intermediate fee 仲介手数料 | | 1 month 1ヶ月 | Remarks 備考 | | Embassy and the famous university often turn the town area of Europe. ヨーロッパの大使館や有名大学が多い番町エリア。 |
Building appearance建物外観 


Living and room居室・リビング  Living
リビング
Kitchenキッチン  Kitchen
キッチン
Bathバス  bath
風呂
Other room spaceその他部屋・スペース  bedroom
ベッドルーム
Balconyバルコニー  Veranda
ベランダ
Entrance玄関  Entrance
玄関

Otherその他 


Location
|