Rentals » Kanto » Tokyo » Edogawa


Maria ・ Lou
Bus toilet by, balcony, Air conditioning, Yang per good, System kitchen, Facing south, Corner dwelling unit, Elevator, Seperate, closet, Immediate Available, Key money unnecessary, 3-neck over stove, Single person consultation, Deposit 1 month, Two tenants consultation, Southwest angle dwelling unit, Free Rent, 1 floor 2 dwelling unit, Room share consultation, Three-sided balcony, Double-sided balcony, 3 direction dwelling unit, Earthquake-resistant structureese-style room, City gas, Door to the washroom, L-shaped balcony, Year Available, Ventilation good
Railroad-station
Tokyo Metro Tozai Line / Kasai
Address
Edogawa-ku, Tokyo Nakakasai 1
Walk
16 minutes
Rent
115,000 yen
Security deposit
115,000 yen
Floor plan
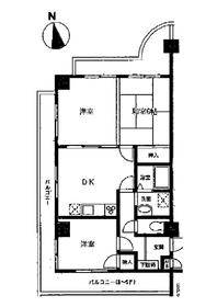
3DK
Occupied area
58.7 sq m
Direction
South
Type
Mansion
Year Built
Built 21 years
Property name
Rental housing of Edogawa-ku, Tokyo Nakakasai 1 Kasai Station [Rental apartment ・ Apartment] information Property Details
Transportation facilities
Tokyo Metro Tozai Line / Ayumi Kasai 16 minutes
Tokyo Metro Tozai Line / Nishikasai walk 17 minutes
Toei Shinjuku Line / Ayumi Funabori 21 minutes
Floor plan details
Sum 6 Hiroshi 6.5 Hiroshi 5 DK8
Construction
Rebar Con
Story
5th floor / 7-story
Built years
November 1993
Nonlife insurance
The main
Move-in
Immediately
Trade aspect
Mediation
Conditions
Single person Allowed / Two people Available / Children Allowed / Office Unavailable / Room share consultation / Free rent for one month
Intermediate fee
1.05 months
Remarks
Patrol management
Area information
Yamaichi Kitakasai store (supermarket) up to 328m Seven-Eleven Edogawa Nakakasai 1-chome to (convenience store) 61m Tsuruha drag Kitakasai 4-chome (drugstore) to 303m Yamada Denki Tecc Land New Kasai store (hardware store) to 570m Kasai post office (mail


Building appearance

Building appearance
Building appearance


Location