2005September
90,000 yen, 2LDK, 1st floor / 2-story, 61.94 sq m
Rentals » Kanto » Tokyo » Hino
 
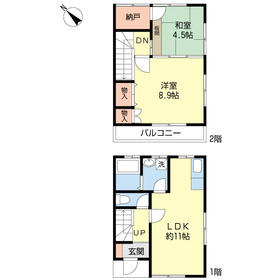
| Railroad-station 沿線・駅 | | Tama Monorail / Manganji 多摩都市モノレール/万願寺 | Address 住所 | | Hino City, Tokyo Manganji 1 東京都日野市万願寺1 | Walk 徒歩 | | 8 minutes 8分 | Rent 賃料 | | 90,000 yen 9万円 | Management expenses 管理費・共益費 | | 4000 yen 4000円 | Security deposit 敷金 | | 180,000 yen 18万円 | Floor plan 間取り | | 2LDK 2LDK | Occupied area 専有面積 | | 61.94 sq m 61.94m2 | Direction 向き | | Southwest 南西 | Type 種別 | | terrace ・ Townhouse テラス・タウンハウス | Year Built 築年 | | Built in 9 years 築9年 | | C & F2 Building C&F2号棟 |
| Popular Terrace House! ! It is recommended Listing to newlyweds 人気のテラスハウス!!新婚さんにおすすめ物件です |
| With bathroom additional heating function Bidet CATV2 households only, All rooms Corner Room South-facing bright beautiful room on-site parking can park in front of the room. 浴室追焚き機能付き ウォシュレット CATV2世帯のみ、全室角部屋 南向きの明るいきれいなお部屋敷地内駐車場はお部屋の目の前に駐車できます。 |
| Bus toilet by, balcony, Air conditioning, closet, Flooring, Washbasin with shower, Indoor laundry location, Add-fired function bathroom, Warm water washing toilet seat, Seperate, Two-burner stove, Bicycle-parking space, CATV, Immediate Available, Key money unnecessary, 2 wayside Available, Net private line, 3 station more accessible, Within a 10-minute walk station バストイレ別、バルコニー、エアコン、クロゼット、フローリング、シャワー付洗面台、室内洗濯置、追焚機能浴室、温水洗浄便座、洗面所独立、2口コンロ、駐輪場、CATV、即入居可、礼金不要、2沿線利用可、ネット専用回線、3駅以上利用可、駅徒歩10分以内 |
Property name 物件名 | | Rental housing of Hino City, Tokyo Manganji 1 Manganji Station [Rental apartment ・ Apartment] information Property Details 東京都日野市万願寺1 万願寺駅の賃貸住宅[賃貸マンション・アパート]情報 物件詳細 | Transportation facilities 交通機関 | | Tama Monorail / Manganji walk 8 minutes Tama Monorail / Koshu Kaido walk 13 minutes Keio Line / Takahatafudo step 27 minutes 多摩都市モノレール/万願寺 歩8分 多摩都市モノレール/甲州街道 歩13分 京王線/高幡不動 歩27分
| Construction 構造 | | Wooden 木造 | Story 階建 | | 1st floor / 2-story 1階/2階建 | Built years 築年月 | | September 2005 2005年9月 | Parking lot 駐車場 | | On-site 8400 yen 敷地内8400円 | Move-in 入居 | | Immediately 即 | Trade aspect 取引態様 | | Mediation 仲介 | Property code 取り扱い店舗物件コード | | 917644 917644 |
Building appearance建物外観 


Living and room居室・リビング 

Kitchenキッチン 
Bathバス 
Toiletトイレ 
Receipt収納 
Other room spaceその他部屋・スペース 
Washroom洗面所 
Location
|