Rentals » Kanto » Tokyo » Itabashi
 
| Railroad-station 沿線・駅 | | Tobu Tojo Line / Tobunerima 東武東上線/東武練馬 | Address 住所 | | Itabashi-ku, Tokyo Tokumaru 1 東京都板橋区徳丸1 | Walk 徒歩 | | 7 minutes 7分 | Rent 賃料 | | 65,000 yen 6.5万円 | Management expenses 管理費・共益費 | | 4000 yen 4000円 | Key money 礼金 | | 65,000 yen 6.5万円 | Security deposit 敷金 | | 65,000 yen 6.5万円 | Floor plan 間取り | | 1K 1K | Occupied area 専有面積 | | 24.3 sq m 24.3m2 | Direction 向き | | South 南 | Type 種別 | | Mansion マンション | Year Built 築年 | | Built 17 years 築17年 | | Zephyr ゼフィール |
| Tojo Line ・ Tobunerima ・ 7 min walk ・ Pets Allowed ・ 1K ・ With loft ・ Corner room 東上線・東武練馬・徒歩7分・ペット可・1K・ロフト付・角部屋 |
| Tobu Tojo Line ・ Tobunerima ・ 7 min walk ・ Pets Allowed (2 mice small dog one animal or cat) ・ 1K ・ loft ・ top floor ・ Corner room ・ Day good ・ Mini fridge ・ 1-neck with gas stove ・ Indoor Arai置 ・ Receipt ・ Cupboard ・ Air conditioning ・ 2-Person Tenant Negotiable ・ Card key 東武東上線・東武練馬・徒歩7分・ペット可(小型犬1匹または猫2匹)・1K・ロフト・最上階・角部屋・日当り良好・ミニ冷蔵庫・1口ガスコンロ付・室内洗置・収納・下駄箱・エアコン・2人入居応相談・カードキー |
| Bus toilet by, balcony, Air conditioning, Gas stove correspondence, closet, Flooring, Indoor laundry location, Yang per good, Shoe box, Facing south, Corner dwelling unit, Bicycle-parking space, CATV, Optical fiber, Outer wall tiling, Two-sided lighting, top floor, Pets Negotiable, loft, Southeast angle dwelling unit, Two tenants consultation, Card key, Room share consultation, Cable broadcasting, Within a 10-minute walk station, On-site trash Storage, Our managed properties, City gas, South balcony, Guarantee company Available バストイレ別、バルコニー、エアコン、ガスコンロ対応、クロゼット、フローリング、室内洗濯置、陽当り良好、シューズボックス、南向き、角住戸、駐輪場、CATV、光ファイバー、外壁タイル張り、2面採光、最上階、ペット相談、ロフト、東南角住戸、二人入居相談、カードキー、ルームシェア相談、有線放送、駅徒歩10分以内、敷地内ごみ置き場、当社管理物件、都市ガス、南面バルコニー、保証会社利用可 |
Property name 物件名 | | Rental housing Itabashi-ku, Tokyo Tokumaru 1 Tobunerima Station [Rental apartment ・ Apartment] information Property Details 東京都板橋区徳丸1 東武練馬駅の賃貸住宅[賃貸マンション・アパート]情報 物件詳細 | Transportation facilities 交通機関 | | Tobu Tojo Line / Tobunerima step 7 minutes Tobu Tojo Line / Kamiitabashi walk 17 minutes Tokyo Metro Yurakucho Line / Subway Ayumi Akatsuka 26 minutes 東武東上線/東武練馬 歩7分 東武東上線/上板橋 歩17分 東京メトロ有楽町線/地下鉄赤塚 歩26分
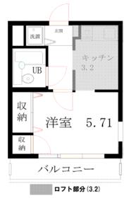
| Floor plan details 間取り詳細 | | Hiroshi 5.71 K3.2 loft 3.2 洋5.71 K3.2 ロフト 3.2 | Construction 構造 | | Rebar Con 鉄筋コン | Story 階建 | | 3rd floor / Three-story 3階/3階建 | Built years 築年月 | | July 1997 1997年7月 | Nonlife insurance 損保 | | The main 要 | Move-in 入居 | | Immediately 即 | Trade aspect 取引態様 | | Mediation 仲介 | Conditions 条件 | | Two people Available / Pets Negotiable / Room share consultation 二人入居可/ペット相談/ルームシェア相談 | Remarks 備考 | | Pets contract during the key money two months deposit amortization Up to two dogs small dog one animal or cat ペット契約時礼金2ヶ月敷金償却 小型犬1匹または猫2匹まで | Area information 周辺情報 | | Tokumaru Square (shopping center) to 487m Commodities Iida Tokumaru store (super) 503m up to 431m ion Itabashi store (supermarket) up to 553m Seven-Eleven Itabashi NishiIsao store (convenience store) to 271mTSUTAYA Tobunerima shop (video rental) Mizuho Bank Tobunerima Branch ( 徳丸スクエア(ショッピングセンター)まで487mコモディイイダ徳丸店(スーパー)まで431mイオン板橋店(スーパー)まで553mセブンイレブン板橋西徳店(コンビニ)まで271mTSUTAYA東武練馬店(レンタルビデオ)まで503mみずほ銀行東武練馬支店(銀行)まで651m |
Living and room居室・リビング 
Building appearance建物外観 

Living and room居室・リビング 

Kitchenキッチン  1 lot gas stoves ・ With mini fridge
1口ガスコンロ・ミニ冷蔵庫付
 3.2 Pledge some kitchen space
3.2帖あるキッチンスペース
Bathバス  3-point unit bus
3点ユニットバス
Receipt収納  There is storage of half between 1
1間半分の収納あり
Other room spaceその他部屋・スペース  Laundry Area Available in the room
室内に洗濯機置場あり
 Yes Loft
ロフトあり

Balconyバルコニー  Facing south in the day good
南向きで日当り良好
Entrance玄関  Key card key
鍵はカードキー
Location
|