|
Railroad-station 沿線・駅 | | Tobu Tojo Line / Tobunerima 東武東上線/東武練馬 |
Address 住所 | | Itabashi-ku, Tokyo Tokumaru 2 東京都板橋区徳丸2 |
Walk 徒歩 | | 10 minutes 10分 |
Rent 賃料 | | 79,000 yen 7.9万円 |
Management expenses 管理費・共益費 | | 3000 yen 3000円 |
Key money 礼金 | | 79,000 yen 7.9万円 |
Security deposit 敷金 | | 79,000 yen 7.9万円 |
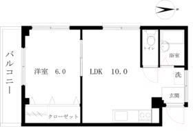
Floor plan 間取り | | 1LDK 1LDK |
Occupied area 専有面積 | | 31.16 sq m 31.16m2 |
Direction 向き | | South 南 |
Type 種別 | | Mansion マンション |
Year Built 築年 | | Built 40 years 築40年 |
|
Plover Bill
千鳥ビル
|
|
Tojo Line ・ Tobunerima ・ A 10-minute walk ・ Pets Allowed ・ 1LDK ・ Corner room
東上線・東武練馬・徒歩10分・ペット可・1LDK・角部屋
|
|
Tojo Line ・ Tobunerima ・ A 10-minute walk ・ Pets Allowed ・ 1LDK ・ Corner room ・ Two-sided lighting ・ Air conditioning ・ Gas stove installation Allowed ・ Indoor Arai置 ・ closet ・ balcony ・ Facing south ・ Bus toilet by ・ CATV ・ In My Room ・ Water bill lender burden
東上線・東武練馬・徒歩10分・ペット可・1LDK・角部屋・2面採光・エアコン・ガスコンロ設置可・室内洗置・クローゼット・バルコニー・南向き・バストイレ別・CATV・インマイルーム・水道代貸主負担
|
|
Bus toilet by, balcony, Air conditioning, Gas stove correspondence, closet, Flooring, Indoor laundry location, Yang per good, Facing south, Add-fired function bathroom, Corner dwelling unit, Bicycle-parking space, CATV, Optical fiber, Outer wall tiling, Immediate Available, Two-sided lighting, Pets Negotiable, Two tenants consultation, Southwest angle dwelling unit, Room share consultation, Within a 10-minute walk station, City gas, Guarantee company Available, Ventilation good
バストイレ別、バルコニー、エアコン、ガスコンロ対応、クロゼット、フローリング、室内洗濯置、陽当り良好、南向き、追焚機能浴室、角住戸、駐輪場、CATV、光ファイバー、外壁タイル張り、即入居可、2面採光、ペット相談、二人入居相談、南西角住戸、ルームシェア相談、駅徒歩10分以内、都市ガス、保証会社利用可、通風良好
|
Property name 物件名 | | Rental housing Itabashi-ku, Tokyo Tokumaru 2 Tobunerima Station [Rental apartment ・ Apartment] information Property Details 東京都板橋区徳丸2 東武練馬駅の賃貸住宅[賃貸マンション・アパート]情報 物件詳細 |
Transportation facilities 交通機関 | | Tobu Tojo Line / Tobunerima step 10 minutes Toei Mita Line / Takashimadaira walk 22 minutes Tokyo Metro Yurakucho Line / Subway Ayumi Akatsuka 23 minutes 東武東上線/東武練馬 歩10分 都営三田線/高島平 歩22分 東京メトロ有楽町線/地下鉄赤塚 歩23分
|
Floor plan details 間取り詳細 | | Hiroshi 6 LDK10 洋6 LDK10 |
Construction 構造 | | Rebar Con 鉄筋コン |
Story 階建 | | Second floor / Three-story 2階/3階建 |
Built years 築年月 | | March 1974 1974年3月 |
Nonlife insurance 損保 | | 15,000 yen two years 1.5万円2年 |
Move-in 入居 | | Immediately 即 |
Trade aspect 取引態様 | | Mediation 仲介 |
Conditions 条件 | | Single person Allowed / Two people Available / Pets Negotiable / Room share consultation 単身者可/二人入居可/ペット相談/ルームシェア相談 |
Remarks 備考 | | Reform: September the entire re-home renovation completed in 2004 / Pet to contract during the key money two months deposit amortization small dog one animal or cat two dogs リフォーム:2004年9月全面リホームリフォーム済/ペット契約時礼金2ヶ月敷金償却 小型犬1匹または猫2匹まで |
Area information 周辺情報 | | Ion Itabashi store (supermarket) up to 901m super look label Tobunerima shop (super) up to 782m Akore Nishidai 2-chome (super) up to 895m Seven-Eleven Tokumaru Itabashi 2-chome (convenience store) to 280mSTORE100 Tokumaru Itabashi 2-chome (convenience store) イオン板橋店(スーパー)まで901mスーパーみらべる東武練馬店(スーパー)まで782mアコレ西台2丁目店(スーパー)まで895mセブンイレブン板橋徳丸2丁目店(コンビニ)まで280mSTORE100板橋徳丸2丁目店(コンビニ)まで356mTSUTAYA東武練馬店(レンタルビデオ)まで1059m |