|
Railroad-station 沿線・駅 | | Toei Mita Line / Takashimadaira 都営三田線/高島平 |
Address 住所 | | Itabashi-ku, Tokyo Takashimadaira 2 東京都板橋区高島平2 |
Walk 徒歩 | | 6 minutes 6分 |
Rent 賃料 | | 95,000 yen 9.5万円 |
Management expenses 管理費・共益費 | | 7000 yen 7000円 |
Key money 礼金 | | 95,000 yen 9.5万円 |
Security deposit 敷金 | | 190,000 yen 19万円 |
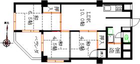
Floor plan 間取り | | 3LDK 3LDK |
Occupied area 専有面積 | | 54.96 sq m 54.96m2 |
Direction 向き | | Southwest 南西 |
Type 種別 | | Mansion マンション |
Year Built 築年 | | Built 36 years 築36年 |
|
Parkside Mansion
パークサイドマンション
|
|
Mita ・ Takashimadaira ・ 6 mins ・ 3LDK ・ Pets Allowed ・ top floor ・ Corner room
三田線・高島平・徒歩6分・3LDK・ペット可・最上階・角部屋
|
|
Toei Mita Line ・ Takashimadaira ・ 6 mins ・ 3LDK ・ Pets allowed (up to two dogs small dog one animal or cat) ・ top floor ・ Corner room ・ Two-sided lighting ・ Elevator ・ Air conditioning ・ Washing machine in the room ・ Add cooked ・ Wash basin ・ Receipt ・ Cupboard ・ Bicycle-parking space ・ Bike Friendly
都営三田線・高島平・徒歩6分・3LDK・ペット可(小型犬1匹または猫2匹まで)・最上階・角部屋・二面採光・エレベーター・エアコン・室内洗濯機置場・追炊き・洗面台・収納・下駄箱・駐輪場・バイク可
|
|
Bus toilet by, balcony, Air conditioning, Gas stove correspondence, Flooring, Indoor laundry location, Shoe box, Add-fired function bathroom, Corner dwelling unit, Elevator, Seperate, Bicycle-parking space, Two-sided lighting, top floor, Pets Negotiable, Bike shelter, Flat to the station, Leafy residential area, 1 floor 2 dwelling unit, Within a 10-minute walk station, Southwestward, Our managed properties
バストイレ別、バルコニー、エアコン、ガスコンロ対応、フローリング、室内洗濯置、シューズボックス、追焚機能浴室、角住戸、エレベーター、洗面所独立、駐輪場、2面採光、最上階、ペット相談、バイク置場、駅まで平坦、緑豊かな住宅地、1フロア2住戸、駅徒歩10分以内、南西向き、当社管理物件
|
Property name 物件名 | | Rental housing Itabashi-ku, Tokyo Takashimadaira 2 Takashimadaira [Rental apartment ・ Apartment] information Property Details 東京都板橋区高島平2 高島平駅の賃貸住宅[賃貸マンション・アパート]情報 物件詳細 |
Transportation facilities 交通機関 | | Toei Mita Line / Takashimadaira walk 6 minutes Toei Mita Line / New Takashimadaira walk 17 minutes Toei Mita Line / Ayumi Nishidai 24 minutes 都営三田線/高島平 歩6分 都営三田線/新高島平 歩17分 都営三田線/西台 歩24分
|
Floor plan details 間取り詳細 | | Sum 6.5 sum 4.5 sum 4.5 LDK10.0 和6.5 和4.5 和4.5 LDK10.0 |
Construction 構造 | | Rebar Con 鉄筋コン |
Story 階建 | | 5th floor / 5-story 5階/5階建 |
Built years 築年月 | | December 1978 1978年12月 |
Nonlife insurance 損保 | | The main 要 |
Move-in 入居 | | Immediately 即 |
Trade aspect 取引態様 | | Mediation 仲介 |
Conditions 条件 | | Pets Negotiable ペット相談 |
Remarks 備考 | | Pets contract during the key money two months deposit amortization small dog cat Allowed ペット契約時礼金2ヶ月敷金償却小型犬猫可 |
Area information 周辺情報 | | UNIQLO Itabashi Yotsuba store (shopping center) to 699m Tobu Store Co., Ltd. Takashimadaira store (supermarket) up to 736m Seven-Eleven Itabashi Takashimadaira 2-chome (convenience store) up to 134m Kojima Takashimadaira store (hardware store) 500m up to 530m Itabashi Takashima second junior high school (junior high school) Itabashi ユニクロ板橋四ツ葉店(ショッピングセンター)まで699m東武ストア高島平店(スーパー)まで736mセブンイレブン板橋高島平2丁目店(コンビニ)まで134mコジマ高島平店(ホームセンター)まで530m板橋区立高島第二中学校(中学校)まで500m板橋区立紅梅小学校(小学校)まで403m |