Rentals » Kanto » Tokyo » Itabashi
 
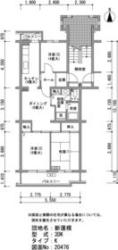
| Railroad-station 沿線・駅 | | Toei Mita Line / Nishidai 都営三田線/西台 | Address 住所 | | Itabashi-ku, Tokyo lotus root 2 東京都板橋区蓮根2 | Walk 徒歩 | | 4 minutes 4分 | Rent 賃料 | | 134,300 yen 13.43万円 | Management expenses 管理費・共益費 | | 3000 yen 3000円 | Security deposit 敷金 | | 268,600 yen 26.86万円 | Floor plan 間取り | | 3DK 3DK | Occupied area 専有面積 | | 62.51 sq m 62.51m2 | Direction 向き | | South 南 | Type 種別 | | Mansion マンション | Year Built 築年 | | Built 23 years 築23年 | | UR new lotus root 10 Building UR新蓮根10号棟 |
| UR rent key money unnecessary ・ Unnecessary brokerage fees ・ Renewal fee unnecessary ・ Guarantor unnecessary! UR賃貸は礼金不要・仲介手数料不要・更新料不要・保証人不要! |
| A straight line from a 5-minute walk "lotus root" station on the subway Mita Line to "Otemachi" station. A variety of shops and convenience stores around the station, There is a bustling shopping district, such as restaurants are lined up. Insole 2 ・ Deposit division campaign in. There is more of free rent 3DK. 徒歩5分の「蓮根」駅から地下鉄三田線で「大手町」駅へ一直線。駅周辺には各種のお店やコンビニ、飲食店などが並ぶ賑やかな商店街があります。敷2・敷金分割キャンペーン中。3DK以上のフリーレント有り。 |
| Bus toilet by, balcony, Air conditioning, Flooring, Indoor laundry location, System kitchen, Facing south, Add-fired function bathroom, Dressing room, Seperate, Bicycle-parking space, closet, CATV, Immediate Available, Key money unnecessary, 3-neck over stove, Stand-alone kitchen, Guarantor unnecessary, Unnecessary brokerage fees, Two-sided balcony, Free Rent, Interior renovation completed, Upper closet, South 2 rooms, 2 phone lines, Fireproof structure, Earthquake-resistant structure, 2 Station Available, Within a 5-minute walk station, meeting place, On-site playground, On-site trash Storage, Day shift managementese-style room, Back door, South balcony, BS, High speed Internet correspondence バストイレ別、バルコニー、エアコン、フローリング、室内洗濯置、システムキッチン、南向き、追焚機能浴室、脱衣所、洗面所独立、駐輪場、押入、CATV、即入居可、礼金不要、3口以上コンロ、独立型キッチン、保証人不要、仲介手数料不要、2面バルコニー、フリーレント、内装リフォーム済、天袋、南面2室、電話2回線、耐火構造、耐震構造、2駅利用可、駅徒歩5分以内、集会所、敷地内遊び場、敷地内ごみ置き場、日勤管理、和室、勝手口、南面バルコニー、BS、高速ネット対応 |
Property name 物件名 | | Rental housing Itabashi-ku, Tokyo lotus root 2 Nishidai Station [Rental apartment ・ Apartment] information Property Details 東京都板橋区蓮根2 西台駅の賃貸住宅[賃貸マンション・アパート]情報 物件詳細 | Transportation facilities 交通機関 | | Toei Mita Line / Ayumi Nishidai 4 minutes Toei Mita Line / Lotus root walk 5 minutes 都営三田線/西台 歩4分 都営三田線/蓮根 歩5分
| Floor plan details 間取り詳細 | | Sum 6 Hiroshi 6 Hiroshi 4 D6K4 和6 洋6 洋4 D6K4 | Construction 構造 | | Steel rebar 鉄骨鉄筋 | Story 階建 | | Second floor / 4-story 2階/4階建 | Built years 築年月 | | April 1991 1991年4月 | Parking lot 駐車場 | | On-site 20,895 yen / Mechanical roof with stationed 敷地内20895円/機械式屋根付駐 | Move-in 入居 | | Immediately 即 | Trade aspect 取引態様 | | Lender 貸主 | Conditions 条件 | | Single person Allowed / Free rent for one month 単身者可/フリーレント1ヶ月 | Property code 取り扱い店舗物件コード | | 476-10-203 476-10-203 | Intermediate fee 仲介手数料 | | Unnecessary 不要 | Remarks 備考 | | Toei Mita Line lotus root Station 5-minute walk / Mall adjacent / Commuting management / Reform: interior renovation completed / Parking Contact Tokyo North dwelling Center 03-5954-4696 都営三田線蓮根駅徒歩5分/商店街隣接/通勤管理/リフォーム:内装リフォーム済/駐車場問合せ先東京北住まいセンター03-5954-4696 |
Building appearance建物外観 
Living and room居室・リビング 

 Six tatami flooring
六畳のフローリング

 Six-mat Japanese-style room
六畳和室
Kitchenキッチン  Three-necked gas drop-in stove
三口ガスドロップインコンロ
 Three-necked gas stove
三口ガスコンロ
Bathバス  Wide bathtub
広いバスタブ
Washroom洗面所  Wide wash ball
広い洗面ボール
Balconyバルコニー 
Entrance玄関  Wide entrance
広い玄関
View眺望  View that drilled
開けた眺望
Location
|