Rentals » Kanto » Tokyo » Itabashi
 
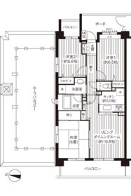
| Railroad-station 沿線・駅 | | Tobu Tojo Line / Kamiitabashi 東武東上線/上板橋 | Address 住所 | | Itabashi-ku, Tokyo Sakuragawa 3 東京都板橋区桜川3 | Walk 徒歩 | | 7 minutes 7分 | Rent 賃料 | | 159,000 yen 15.9万円 | Management expenses 管理費・共益費 | | 13000 yen 13000円 | Security deposit 敷金 | | 318,000 yen 31.8万円 | Floor plan 間取り | | 3LDK 3LDK | Occupied area 専有面積 | | 70.08 sq m 70.08m2 | Direction 向き | | West 西 | Type 種別 | | Mansion マンション | Year Built 築年 | | Built 14 years 築14年 | | Metropolitan Johoku Central Park adjacent spacious roof balcony 都立城北中央公園隣接広々ルーフバルコニー |
| Auto-lock with family type It is all houses worth with trunk room. Unnecessary brokerage fees! (Who sign up directly to the Company) In key money zero campaign! (Until the end of January rent generated content) Inquiry please feel free to オートロック付ファミリータイプ 全戸分トランクルーム付です。 仲介手数料不要!(当社へ直接お申込みの方) 礼金ゼロキャンペーン中!(1月末日賃料発生分まで) お問合せはお気軽にどうぞ |
| Bus toilet by, balcony, Air conditioning, closet, Flooring, Bathroom Dryer, auto lock, Indoor laundry location, Yang per good, Shoe box, System kitchen, Add-fired function bathroom, Corner dwelling unit, Elevator, Seperate, Bathroom vanity, Bicycle-parking space, Delivery Box, closet, CATV, Optical fiber, Immediate Available, Key money unnecessary, 3-neck over stove, bay window, With grill, Parking two Allowed, Unnecessary brokerage fees, CATV Internet, 3 face lighting, Deposit 2 months, Leafy residential area, trunk room, The window in the bathroom, roof balcony, Closet 2 places, Three-sided balcony, Elevator 2 groups, 3 direction dwelling unit, Within a 10-minute walk station, No upper floor, On-site trash Storage, Day shift management, LDK12 tatami mats or more, BS, High speed Internet correspondence, Guarantee company Available, Ventilation good バストイレ別、バルコニー、エアコン、クロゼット、フローリング、浴室乾燥機、オートロック、室内洗濯置、陽当り良好、シューズボックス、システムキッチン、追焚機能浴室、角住戸、エレベーター、洗面所独立、洗面化粧台、駐輪場、宅配ボックス、押入、CATV、光ファイバー、即入居可、礼金不要、3口以上コンロ、出窓、グリル付、駐車2台可、仲介手数料不要、CATVインターネット、3面採光、敷金2ヶ月、緑豊かな住宅地、トランクルーム、浴室に窓、ルーフバルコニー、クロゼット2ヶ所、3面バルコニー、エレベーター2基、3方角住戸、駅徒歩10分以内、上階無し、敷地内ごみ置き場、日勤管理、LDK12畳以上、BS、高速ネット対応、保証会社利用可、通風良好 |
Property name 物件名 | | Rental housing Itabashi-ku, Tokyo Sakuragawa 3 Kamiitabashi Station [Rental apartment ・ Apartment] information Property Details 東京都板橋区桜川3 上板橋駅の賃貸住宅[賃貸マンション・アパート]情報 物件詳細 | Transportation facilities 交通機関 | | Tobu Tojo Line / Kamiitabashi walk 7 minutes Tokyo Metro Yurakucho Line / Hikawadai walk 19 minutes Tobu Tojo Line / Tokiwadai walk 19 minutes 東武東上線/上板橋 歩7分 東京メトロ有楽町線/氷川台 歩19分 東武東上線/ときわ台 歩19分
| Floor plan details 間取り詳細 | | Sum 6 Hiroshi 6.5 Hiroshi 5.6 LDK13.6 和6 洋6.5 洋5.6 LDK13.6 | Construction 構造 | | Rebar Con 鉄筋コン | Story 階建 | | 4th floor / 7-story 4階/7階建 | Built years 築年月 | | August 2000 2000年8月 | Nonlife insurance 損保 | | The main 要 | Parking lot 駐車場 | | Site 25200 yen 敷地内25200円 | Move-in 入居 | | Immediately 即 | Trade aspect 取引態様 | | Mediation 仲介 | Conditions 条件 | | Two people Available / Children Allowed 二人入居可/子供可 | Intermediate fee 仲介手数料 | | Unnecessary 不要 | Guarantor agency 保証人代行 | | Recruit Forento in Sure Available guarantee fees: one month, such as rent (guaranteed minimum fee of 20,000 yen) continued guarantee fee of 10,000 yen / Year リクルートフォレントインシュア利用可 保証料:賃料等の1ヶ月分(最低保証料2万円)継続保証料1万円/年 | Remarks 備考 | | Commodities Iida 320m to diet Aya Museum Sakuragawa shop / 196m to FamilyMart Sakuragawa Third Street shop / Commuting management / Brokerage fees unnecessary (those of our direct application) / Key money required (until the end of January) コモディイイダ食彩館桜川店まで320m/ファミリーマート桜川三丁目店まで196m/通勤管理/仲介手数料不要(当社直接申込の方)/礼金不要(1月末迄) | Area information 周辺情報 | | Commodities Iida diet Aya Museum Sakuragawa store (supermarket) up to 320m Commodities Iida Kamiitabashi store (supermarket) up to 367m FamilyMart Sakuragawa Sanchome store (convenience store) up to 196m Matsumotokiyoshi Kamiitabashi south exit store (drugstore) to 452m Itabashi Sakura elementary school (elementary school) ・ 458m to the nursery) コモディイイダ食彩館桜川店(スーパー)まで320mコモディイイダ上板橋店(スーパー)まで367mファミリーマート桜川三丁目店(コンビニ)まで196mマツモトキヨシ上板橋南口店(ドラッグストア)まで452m板橋区立桜川小学校(小学校)まで552m上板橋保育園(幼稚園・保育園)まで458m |
Building appearance建物外観 

Location
|