Rentals » Kanto » Tokyo » Itabashi
 
| Railroad-station 沿線・駅 | | Tobu Tojo Line / Kamiitabashi 東武東上線/上板橋 | Address 住所 | | Itabashi-ku, Tokyo Tokiwadai 3 東京都板橋区常盤台3 | Walk 徒歩 | | 8 minutes 8分 | Rent 賃料 | | 50,000 yen 5万円 | Key money 礼金 | | 50,000 yen 5万円 | Security deposit 敷金 | | 50,000 yen 5万円 | Floor plan 間取り | | 1DK 1DK | Occupied area 専有面積 | | 25.92 sq m 25.92m2 | Type 種別 | | Apartment アパート | Year Built 築年 | | Built 35 years 築35年 | | Persimmon House 柿の木ハウス |
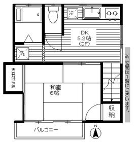
| Women limit of southeast angle room, This room of 1DK 東南角部屋の女性限定、1DKのお部屋です |
| There are two places storage, Worry And happy bus a toilet in one with a lot of luggage! Because the bath is a dated balance kettle that so we are able to add Even cook monitor Hong also safe security surface! A convenience store near ・ Super Yes convenient 収納2か所あり、荷物の多い方でも安心しかも嬉しいバストイレ別!お風呂はバランス釜なので追炊きだってできちゃいますモニターホン付なので防犯面も安心!近くにコンビニ・スーパーあり便利 |
| Bus toilet by, balcony, Air conditioning, Gas stove correspondence, TV interphone, Indoor laundry location, Add-fired function bathroom, Two-burner stove, closet, CATV, Immediate Available, top floor, Southeast angle dwelling unit, Deposit 1 month, Vinyl flooring, Housing 1 between a half, Flat to the station, Window in the kitchen, Upper closet, 2 Station Available, Within a 10-minute walk stationese-style room, Key money one month バストイレ別、バルコニー、エアコン、ガスコンロ対応、TVインターホン、室内洗濯置、追焚機能浴室、2口コンロ、押入、CATV、即入居可、最上階、東南角住戸、敷金1ヶ月、クッションフロア、収納1間半、駅まで平坦、キッチンに窓、天袋、2駅利用可、駅徒歩10分以内、和室、礼金1ヶ月 |
Property name 物件名 | | Rental housing Itabashi-ku, Tokyo Tokiwadai 3 Kamiitabashi Station [Rental apartment ・ Apartment] information Property Details 東京都板橋区常盤台3 上板橋駅の賃貸住宅[賃貸マンション・アパート]情報 物件詳細 | Transportation facilities 交通機関 | | Tobu Tojo Line / Kamiitabashi walk 8 minutes Tobu Tojo Line / Tokiwadai walk 9 minutes Tobu Tojo Line / Nakaitabashi walk 20 minutes 東武東上線/上板橋 歩8分 東武東上線/ときわ台 歩9分 東武東上線/中板橋 歩20分
| Floor plan details 間取り詳細 | | Sum 6 DK5.2 和6 DK5.2 | Construction 構造 | | Wooden 木造 | Story 階建 | | Second floor / 2-story 2階/2階建 | Built years 築年月 | | August 1979 1979年8月 | Nonlife insurance 損保 | | The main 要 | Move-in 入居 | | Immediately 即 | Trade aspect 取引態様 | | Mediation 仲介 | Conditions 条件 | | women only 女性限定 | Area information 周辺情報 | | Supermarket Santoku Tokiwadai store up to (super) up to 659m Ito-Yokado Kamiitabashi store (supermarket) up to 523m Seven-Eleven Itabashi Tohshin 1-chome (convenience store) up to 268m Mine drag Tokiwadai store (drugstore) to 653m Big Boy cortex Machiten (restaurant) スーパーマーケット三徳ときわ台店(スーパー)まで659mイトーヨーカドー上板橋店(スーパー)まで523mセブンイレブン板橋東新町1丁目店(コンビニ)まで268mミネドラッグときわ台店(ドラッグストア)まで653mビッグボーイ前野町店(飲食店)まで362m夢庵板橋前野町店(飲食店)まで559m |
Building appearance建物外観 
Living and room居室・リビング 
 It is a Japanese-style room of the south-facing balcony.
南向きバルコニーの和室です。
 Storage is also safe direction with much luggage attaching therefore upper closet
収納は天袋付なので荷物多い方も安心
Kitchenキッチン  5.2 Pledge of dining kitchen is a two-sided lighting
5.2帖のダイニングキッチンは2面採光です
 Smoothly cuisine in a two-necked corresponding Gasukitchin
2口対応ガスキッチンで料理もスムーズ
 Gas stove is leaving product.
ガスコンロは残置物です。
Bathバス  In the window with the bath, Moreover, it is possible add cook
窓付きお風呂で、しかも追炊き可能です
Toiletトイレ  Is good ventilation in the window with toilet
窓付きトイレで換気良好です
Receipt収納  It is very convenient because it housed two places
収納2ヶ所あるのでとても便利です
Securityセキュリティ  Attaching therefore monitor Hong is a crime prevention surface peace of mind!
モニターホン付なので防犯面安心です!
Other Equipmentその他設備  Because the air-conditioned will spend the summer and winter comfort
エアコン付なので夏冬快適に過ごせます
 There is hard to damage the washing machine because the yard indoor washing machine!
室内洗濯機置場あるので洗濯機傷めにくいです!
Supermarketスーパー  659m to supermarket Santoku Tokiwadai store (Super)
スーパーマーケット三徳ときわ台店(スーパー)まで659m
 Ito-Yokado Kamiitabashi store up to (super) 523m
イトーヨーカドー上板橋店(スーパー)まで523m
Convenience storeコンビニ  Seven-Eleven Itabashi Tohshin 1-chome to (convenience store) 268m
セブンイレブン板橋東新町1丁目店(コンビニ)まで268m
Restaurant飲食店  362m up to Big Boy cortex Machiten (restaurant)
ビッグボーイ前野町店(飲食店)まで362m
 Yumean 559m until Itabashi cortex Machiten (restaurant)
夢庵板橋前野町店(飲食店)まで559m
Location
|