Rentals » Kanto » Tokyo » Katsushika
 
| Railroad-station 沿線・駅 | | JR Sobu Line / Shinkoiwa Katsushika-ku, Tokyo Higashishinkoiwa 2 JR総武線/新小岩東京都葛飾区東新小岩2 | Walk 徒歩 | | 18 minutes 18分 | Rent 賃料 | | 101,700 yen 10.17万円 | Management expenses 管理費・共益費 | | 3800 yen 3800円 | Security deposit 敷金 | | 203,400 yen 20.34万円 | Floor plan 間取り | | 3LDK 3LDK | Occupied area 専有面積 | | 68 sq m 68m2 | Direction 向き | | Southwest 南西 | Type 種別 | | Mansion マンション | Year Built 築年 | | Built 32 years 築32年 | | UR Estate Higashishinkoiwa Building 3 URエステート東新小岩3号棟 |
| UR rent key money unnecessary ・ Unnecessary brokerage fees ・ Renewal fee unnecessary ・ Guarantor unnecessary! UR賃貸は礼金不要・仲介手数料不要・更新料不要・保証人不要! |
| Room looking in Campaign. Deposit is 2 months. Arcade was fulfilling started shopping zone and large supermarkets around the station, hospital, Bank, small ・ There is a junior high school, etc., Impeccable is living ease. 部屋探しキャンペーン実施中。敷金2ヵ月です。 駅周辺にはショッピングゾーンや大型スーパーをはじめ充実したアーケード街、病院、銀行、小・中学校などがあり、申し分のない暮らしやすさです。 |
| Bus toilet by, balcony, Flooring, Indoor laundry location, Add-fired function bathroom, Dressing room, Seperate, Bicycle-parking space, CATV, Immediate Available, BS ・ CS, Guarantor unnecessary, Unnecessary brokerage fees, 2 wayside Available, Storeroom, Interior renovation completed, Deposit required, Outer wall concrete, Flat terrain, Earthquake-resistant structure, Within a 3-minute bus stop walk, On-site playground, On-site trash Storage, Southwestward, Day shift management, Following Japanese-style room, 2WAY kitchen, High speed Internet correspondence, Year Available バストイレ別、バルコニー、フローリング、室内洗濯置、追焚機能浴室、脱衣所、洗面所独立、駐輪場、CATV、即入居可、BS・CS、保証人不要、仲介手数料不要、2沿線利用可、物置、内装リフォーム済、保証金不要、外壁コンクリート、平坦地、耐震構造、バス停徒歩3分以内、敷地内遊び場、敷地内ごみ置き場、南西向き、日勤管理、続き和室、2WAYキッチン、高速ネット対応、年内入居可 |
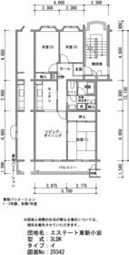
Property name 物件名 | | Katsushika-ku, Tokyo Higashishinkoiwa 2 Shinkoiwa of rental housing [Rental apartment ・ Apartment] information Property Details 東京都葛飾区東新小岩2 新小岩の賃貸住宅[賃貸マンション・アパート]情報 物件詳細 | Transportation facilities 交通機関 | | JR Sobu Line / Shinkoiwa walk 18 minutes Toei bus Cinco 20 system / Higashishinkoiwa 3-chome, walk 2 minutes JR総武線/新小岩 歩18分都営バス新小20系統/東新小岩3丁目 歩2分 | Floor plan details 間取り詳細 | | Sum 6 Hiroshi 5 Hiroshi 4 LD8K3 和6 洋5 洋4 LD8K3 | Construction 構造 | | Rebar Con 鉄筋コン | Story 階建 | | 4th floor / 5-story 4階/5階建 | Built years 築年月 | | August 1982 1982年8月 | Nonlife insurance 損保 | | The main 要 | Parking lot 駐車場 | | Site 14380 yen 敷地内14380円 | Move-in 入居 | | Immediately 即 | Trade aspect 取引態様 | | Lender 貸主 | Conditions 条件 | | Office Unavailable / Room share not 事務所利用不可/ルームシェア不可 | Property code 取り扱い店舗物件コード | | 342-3-404 342-3-404 | Total units 総戸数 | | 220 units 220戸 | Balcony area バルコニー面積 | | 6.6 sq m 6.6m2 | Remarks 備考 | | Commuting management 通勤管理 |
Building appearance建物外観 
Living and room居室・リビング 
 Living room facing the balcony
バルコニーに面したリビング
Kitchenキッチン  2 Way Kitchen
2ウェイキッチン
Bathバス  With reheating function
追い炊き機能付き
Toiletトイレ  Toilet
トイレ
Receipt収納  Closet Japanese-style room
和室押入れ
Other room spaceその他部屋・スペース  Closet with Western-style
クローゼット付き洋室
Washroom洗面所  Separate vanity
独立洗面化粧台
Balconyバルコニー  Southwest-facing balcony
南西向きバルコニー
Location
|