Rentals » Kanto » Tokyo » Katsushika


☆ Takasago Station 3-minute walk of a good location ☆ All rooms flooring ☆ Air-conditioned
☆ Takasago Station 3-minute walk of a good location ☆ Bathroom toilet independent and comfortable life ☆ You can use it as a broad 1LDK ☆ Air-conditioned
Bus toilet by, balcony, Air conditioning, Gas stove correspondence, closet, Flooring, TV interphone, Indoor laundry location, Yang per good, Shoe box, Corner dwelling unit, Dressing room, Bicycle-parking space, closet, Outer wall tiling, Immediate Available, Key money unnecessary, Two-sided lighting, top floor, bay window, All room Western-style, Deposit 1 month, All living room flooring, 1 floor 2 dwelling unit, Office consultation, Initial cost 200,000 yen or less, No upper floor, Ventilation good
Railroad-station
Keisei Main Line / Keisei Takasago
Address
Katsushika-ku, Tokyo Takasago 5
Walk
3 minutes
Rent
82,000 yen
Security deposit
82,000 yen
Floor plan
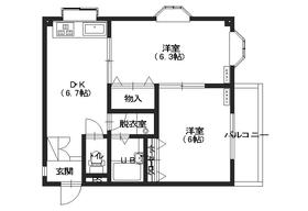
2DK
Occupied area
39.19 sq m
Direction
West
Type
Mansion
Year Built
Built 28 years
Property name
Rental housing Katsushika-ku, Tokyo Takasago 5 Keisei Takasago Station [Rental apartment ・ Apartment] information Property Details
Transportation facilities
Keisei Main Line / Keisei Takasago step 3 minutes
Floor plan details
Hiroshi 6.3 Hiroshi 6 DK6.7
Construction
Steel frame
Story
3rd floor / Three-story
Built years
November 1986
Nonlife insurance
The main
Move-in
Immediately
Trade aspect
Mediation
Area information
Ito-Yokado Takasago store (supermarket) up to 345m FamilyMart Takasago Chome store (convenience store) up to 135m Seven-Eleven Katsushika Takasago Station store (convenience store) up to 141m drag Papas Cerca Takasago shop (drugstore) to 308m charcoal grilled meat Shuka cattle angle Takasago shop (restaurant)


Living and room

Living and room

Building appearance

Building appearance
Building appearance

Living and room

Living and room

Kitchen

Kitchen

Bath

Bath

Receipt

Receipt
Receipt

Other room space

Other room space

Balcony

Balcony

Security

Security

Other Equipment

Other Equipment

Entrance

Entrance

Other common areas

Other common areas


Location