Rentals » Kanto » Tokyo » Katsushika
 
| Railroad-station 沿線・駅 | | Keisei Oshiage Line / Keisei Tateishi 京成押上線/京成立石 | Address 住所 | | Katsushika-ku, Tokyo Tateishi 7 東京都葛飾区立石7 | Walk 徒歩 | | 3 minutes 3分 | Rent 賃料 | | 85,000 yen 8.5万円 | Security deposit 敷金 | | 170,000 yen 17万円 | Floor plan 間取り | | 1LDK 1LDK | Occupied area 専有面積 | | 44.96 sq m 44.96m2 | Direction 向き | | Southwest 南西 | Type 種別 | | Mansion マンション | Year Built 築年 | | Built 27 years 築27年 | | Devious Bill 横島ビル |
| ☆ ☆ The idea of rent 1Room + α ... ☆ ☆ ☆☆ 賃貸1Room+αという発想… ☆☆ |
| ☆ Air conditioning ☆ Gas stove correspondence ☆ Bathroom additional heating function ☆ Semi Otobasu ☆ Bathroom vanity ☆ Wash dressing room ☆ Washing machine in the room ☆ Intercom ☆ Gas heating appliances available ☆ All rooms with lighting equipment ☆ balcony ☆ Rooftop usable! ☆エアコン ☆ガスコンロ対応 ☆浴室追焚き機能 ☆セミオートバス ☆洗面化粧台 ☆洗面脱衣所 ☆室内洗濯機置場 ☆インターフォン ☆ガス暖房器具使用可能 ☆全室照明器具付 ☆バルコニー ☆屋上使用可! |
| Bus toilet by, balcony, Air conditioning, Gas stove correspondence, closet, Flooring, Indoor laundry location, Add-fired function bathroom, Corner dwelling unit, Dressing room, Seperate, Bathroom vanity, closet, CATV, Immediate Available, Key money unnecessary, Two-sided lighting, top floor, Otobasu, All room Western-style, Guarantor unnecessary, Southwest angle dwelling unit, All living room flooring, Window in the kitchen, Deposit 2 months, 1 floor 1 dwelling unit, Room share consultation, Flat Floor, 2 Station Available, Within a 5-minute walk station, Southwestward, Our managed properties, LDK12 tatami mats or more, All room 6 tatami mats or more, Window in washroom, Door to the washroom, Entrance storage, All rooms with lighting, Ventilation good バストイレ別、バルコニー、エアコン、ガスコンロ対応、クロゼット、フローリング、室内洗濯置、追焚機能浴室、角住戸、脱衣所、洗面所独立、洗面化粧台、押入、CATV、即入居可、礼金不要、2面採光、最上階、オートバス、全居室洋室、保証人不要、南西角住戸、全居室フローリング、キッチンに窓、敷金2ヶ月、1フロア1住戸、ルームシェア相談、フラットフロア、2駅利用可、駅徒歩5分以内、南西向き、当社管理物件、LDK12畳以上、全居室6畳以上、洗面所に窓、洗面所にドア、玄関収納、全室照明付、通風良好 |
Property name 物件名 | | Rental housing Katsushika-ku, Tokyo Tateishi 7 Keisei Tateishi Station [Rental apartment ・ Apartment] information Property Details 東京都葛飾区立石7 京成立石駅の賃貸住宅[賃貸マンション・アパート]情報 物件詳細 | Transportation facilities 交通機関 | | Keisei Oshiage Line / Keisei Tateishi step 3 minutes Keisei Main Line / Ayumi Aoto 11 minutes Keisei Main Line / Ohanajaya walk 18 minutes 京成押上線/京成立石 歩3分 京成本線/青砥 歩11分 京成本線/お花茶屋 歩18分
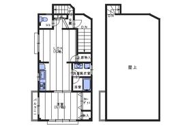
| Floor plan details 間取り詳細 | | Hiroshi 6.7 LDK12 洋6.7 LDK12 | Construction 構造 | | Steel frame 鉄骨 | Story 階建 | | 3rd floor / Three-story 3階/3階建 | Built years 築年月 | | August 1987 1987年8月 | Nonlife insurance 損保 | | The main 要 | Move-in 入居 | | Immediately 即 | Trade aspect 取引態様 | | Mediation 仲介 | Conditions 条件 | | Single person Allowed / Two people Available / Children Allowed 単身者可/二人入居可/子供可 | Guarantor agency 保証人代行 | | Guarantee company use 必 join in Japan Rental guarantee (Ltd.) Guarantee charge monthly rent (rent ・ Administrative expenses, etc. combined) 30% of the 保証会社利用必 日本賃貸保証(株)に加入 保証料は月額賃料(家賃・管理費等合算)の30% | Remarks 備考 | | ・ CATV ・ High speed Internet connection ・ Rooftop usable (building or the like is impossible) ・CATV・インターネット接続可・屋上使用可(建造物等不可) | Area information 周辺情報 | | Summit store Katsushika Kuyakushomae store (supermarket) up to 494m Seven-Eleven Katsushika Tateishi 4-chome store (convenience store) up to 221m Home pick Tateishi store (hardware store) to 314m GEO Tateishi store (video rental) to 413m Doutor coffee shop Keisei Tateishi shop (restaurant) サミットストア葛飾区役所前店(スーパー)まで494mセブンイレブン葛飾立石4丁目店(コンビニ)まで221mホームピック立石店(ホームセンター)まで314mゲオ立石店(レンタルビデオ)まで413mドトールコーヒーショップ京成立石店(飲食店)まで310mオリジン弁当京成立石店(飲食店)まで413m |
Building appearance建物外観 
Living and room居室・リビング 
 Western-style (6, 7 Pledge)
洋室 ( 6,7帖 )
 LDK (12 quires)
LDK ( 12帖 )
 LDK (12 quires)
LDK ( 12帖 )
 Entrance → Western-style
玄関→洋室
Kitchenキッチン  Gas stove correspondence
ガスコンロ対応
Bathバス  Additional heating function
追焚き機能
Toiletトイレ  Spacious toilet
広々トイレ
Receipt収納  Western style room Receipt
洋室 収納
Other room spaceその他部屋・スペース  Rooftop available (building or the like is impossible)
屋上使用可能(建造物等不可)
Washroom洗面所  Bathroom vanity
洗面化粧台
 Wash dressing room
洗面脱衣所
Entrance玄関  Entrance
玄関
Supermarketスーパー  494m until the Summit store Katsushika Kuyakushomae store (Super)
サミットストア葛飾区役所前店(スーパー)まで494m
Convenience storeコンビニ  Seven-Eleven Katsushika Tateishi 4-chome up (convenience store) 221m
セブンイレブン葛飾立石4丁目店(コンビニ)まで221m
Home centerホームセンター  Home pick Tateishi store up (home improvement) 314m
ホームピック立石店(ホームセンター)まで314m
Rental videoレンタルビデオ  GEO Tateishi shop 413m up (video rental)
ゲオ立石店(レンタルビデオ)まで413m
Restaurant飲食店  Doutor Coffee Shop Keisei Tateishi shop 310m until the (restaurant)
ドトールコーヒーショップ京成立石店(飲食店)まで310m
 413m to the origin lunch Keisei Tateishi shop (restaurant)
オリジン弁当京成立石店(飲食店)まで413m
Location
|