1985April
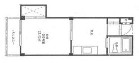
53,000 yen, 1DK, Second floor / Three-story, 22.05 sq m
Rentals » Kanto » Tokyo » Koganei
 
| Railroad-station 沿線・駅 | | JR Chuo Line / Musashi Koganei JR中央線/武蔵小金井 | Address 住所 | | Koganei, Tokyo Midoricho 5 東京都小金井市緑町5 | Walk 徒歩 | | 10 minutes 10分 | Rent 賃料 | | 53,000 yen 5.3万円 | Management expenses 管理費・共益費 | | 2000 yen 2000円 | Key money 礼金 | | 53,000 yen 5.3万円 | Security deposit 敷金 | | 53,000 yen 5.3万円 | Floor plan 間取り | | 1DK 1DK | Occupied area 専有面積 | | 22.05 sq m 22.05m2 | Direction 向き | | South 南 | Type 種別 | | Mansion マンション | Year Built 築年 | | Built 29 years 築29年 | | Stylish south-facing apartment ☆ Commuting convenient ☆ オシャレな南向きマンション☆通勤便利☆ |
| A quiet residential area ☆ Renovation completed ☆ Internet-enabled ☆ There is free parking lot ☆ Rather than listing only, Also together we will guide you around the environment ☆ Please contact us without hesitation ☆ 閑静な住宅街☆リフォーム済☆インターネット対応☆無料駐輪場あり☆物件だけではなく、周辺の環境も合わせてご案内致します☆気兼ねなくお問い合わせ下さい☆ |
| balcony, closet, Shoe box, Facing south, Bicycle-parking space, Immediate Available, A quiet residential area, 3 station more accessible, 3 along the line more accessible, Within a 10-minute walk station, High speed Internet correspondence バルコニー、クロゼット、シューズボックス、南向き、駐輪場、即入居可、閑静な住宅地、3駅以上利用可、3沿線以上利用可、駅徒歩10分以内、高速ネット対応 |
Property name 物件名 | | Rental housing of Koganei, Tokyo Midoricho 5 Musashi-Koganei Station [Rental apartment ・ Apartment] information Property Details 東京都小金井市緑町5 武蔵小金井駅の賃貸住宅[賃貸マンション・アパート]情報 物件詳細 | Transportation facilities 交通機関 | | JR Chuo Line / Musashi Koganei walk 10 minutes JR Chuo Line / Higashikoganei step 17 minutes Seibu Tamagawa / New Koganei walk 25 minutes JR中央線/武蔵小金井 歩10分 JR中央線/東小金井 歩17分 西武多摩川線/新小金井 歩25分
| Floor plan details 間取り詳細 | | Hiroshi 6 DK4 洋6 DK4 | Construction 構造 | | Steel frame 鉄骨 | Story 階建 | | Second floor / Three-story 2階/3階建 | Built years 築年月 | | April 1985 1985年4月 | Nonlife insurance 損保 | | The main 要 | Move-in 入居 | | Immediately 即 | Trade aspect 取引態様 | | Mediation 仲介 | Remarks 備考 | | 386m until Inageya Koganei Honcho shop / 287m to Seven-Eleven Koganei Midoricho shop いなげや小金井本町店まで386m/セブンイレブン小金井緑町店まで287m | Area information 周辺情報 | | Inageya Koganei Honcho store up to (super) up to 386m Seiyu Koganei store (supermarket) up to 654m Seven-Eleven Koganei Midoricho store (convenience store) up to 287m wells Park Koganei Midoricho shop 297m medical corporation Association Dainichi Board Koganei sun hospital until (drugstore) (hospital) いなげや小金井本町店(スーパー)まで386m西友小金井店(スーパー)まで654mセブンイレブン小金井緑町店(コンビニ)まで287mウェルパーク小金井緑町店(ドラッグストア)まで297m医療法人社団大日会小金井太陽病院(病院)まで638m東京農工大学図書館小金井図書館(図書館)まで560m |
Building appearance建物外観 

|