Rentals » Kanto » Tokyo » Kokubunji
 
| Railroad-station 沿線・駅 | | JR Chuo Line / National JR中央線/国立 | Address 住所 | | Tokyo Kokubunji Nishimachi 2 東京都国分寺市西町2 | Walk 徒歩 | | 15 minutes 15分 | Rent 賃料 | | 137,000 yen 13.7万円 | Management expenses 管理費・共益費 | | 3000 yen 3000円 | Key money 礼金 | | 137,000 yen 13.7万円 | Security deposit 敷金 | | 137,000 yen 13.7万円 | Floor plan 間取り | | 3LDK 3LDK | Occupied area 専有面積 | | 67.5 sq m 67.5m2 | Direction 向き | | South 南 | Type 種別 | | Mansion マンション | Year Built 築年 | | Built 23 years 築23年 | | Fully equipped, Condominium of reinforced concrete! 設備充実、鉄筋コンクリート造のマンションです! |
| Bus toilet by, balcony, Air conditioning, Gas stove correspondence, Flooring, Indoor laundry location, Yang per good, Facing south, Corner dwelling unit, Warm water washing toilet seat, Bathroom vanity, Bicycle-parking space, Immediate Available, Two-sided lighting, surveillance camera, All room Western-style, Southeast angle dwelling unit, Office consultation, Room share consultation, 3 direction dwelling unit, On-site trash Storage, LDK12 tatami mats or more, City gas, Door to the washroom, Ventilation good バストイレ別、バルコニー、エアコン、ガスコンロ対応、フローリング、室内洗濯置、陽当り良好、南向き、角住戸、温水洗浄便座、洗面化粧台、駐輪場、即入居可、2面採光、防犯カメラ、全居室洋室、東南角住戸、事務所相談、ルームシェア相談、3方角住戸、敷地内ごみ置き場、LDK12畳以上、都市ガス、洗面所にドア、通風良好 |
Property name 物件名 | | Rental housing, Tokyo Kokubunji Nishimachi 2 National Station [Rental apartment ・ Apartment] information Property Details 東京都国分寺市西町2 国立駅の賃貸住宅[賃貸マンション・アパート]情報 物件詳細 | Transportation facilities 交通機関 | | JR Chuo Line / National walking 15 minutes JR中央線/国立 歩15分
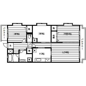
| Floor plan details 間取り詳細 | | Hiroshi 6 Hiroshi 5 Hiroshi 5 LDK12 洋6 洋5 洋5 LDK12 | Construction 構造 | | Rebar Con 鉄筋コン | Story 階建 | | 1st floor / Three-story 1階/3階建 | Built years 築年月 | | October 1991 1991年10月 | Nonlife insurance 損保 | | The main 要 | Move-in 入居 | | Immediately 即 | Trade aspect 取引態様 | | Mediation 仲介 | Conditions 条件 | | Single person Allowed / Two people Available / Office use consultation / Room share consultation 単身者可/二人入居可/事務所利用相談/ルームシェア相談 | Property code 取り扱い店舗物件コード | | 000777101 000777101 | Intermediate fee 仲介手数料 | | 1 month 1ヶ月 |
Building appearance建物外観 
Living and room居室・リビング 




Kitchenキッチン 
Bathバス 
Washroom洗面所 

Balconyバルコニー 
Entrance玄関 

Other common areasその他共有部分 
Location
|