|
Railroad-station 沿線・駅 | | JR Chuo Line / National JR中央線/国立 |
Address 住所 | | During the Tokyo National City 1 東京都国立市中1 |
Walk 徒歩 | | 12 minutes 12分 |
Rent 賃料 | | 88,000 yen 8.8万円 |
Key money 礼金 | | 88,000 yen 8.8万円 |
Security deposit 敷金 | | 88,000 yen 8.8万円 |
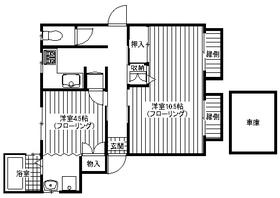
Floor plan 間取り | | 2K 2K |
Occupied area 専有面積 | | 44.13 sq m 44.13m2 |
Direction 向き | | South 南 |
Type 種別 | | Apartment アパート |
Year Built 築年 | | Built 47 years 築47年 |
|
A quiet and residential area Day good Room share best
閑静なし住宅街 日当り良好 ルームシェア最適
|
|
Air conditioning Intercom 2-neck Gasukitchin Independent wash Indoor Laundry
エアコン インターホン 2口ガスキッチン 独立洗面 室内洗濯機
|
|
Bus toilet by, Air conditioning, Indoor laundry location, Yang per good, Facing south, Seperate, Two-burner stove, Immediate Available, A quiet residential area, Pets Negotiable, All room storage, All room Western-style, Sorting, Deposit 1 month, Two tenants consultation, 2 wayside Available, garden, Room share consultation, Student Counseling, 3 station more accessible, Key money one month
バストイレ別、エアコン、室内洗濯置、陽当り良好、南向き、洗面所独立、2口コンロ、即入居可、閑静な住宅地、ペット相談、全居室収納、全居室洋室、振分、敷金1ヶ月、二人入居相談、2沿線利用可、庭、ルームシェア相談、学生相談、3駅以上利用可、礼金1ヶ月
|
Property name 物件名 | | Rental housing, Tokyo National City, in one National Station [Rental apartment ・ Apartment] information Property Details 東京都国立市中1 国立駅の賃貸住宅[賃貸マンション・アパート]情報 物件詳細 |
Transportation facilities 交通機関 | | JR Chuo Line / National walk 12 minutes JR Nambu Line / Nishi Kunitachi step 16 minutes JR Nambu Line / Ayumi Yagawa 21 minutes JR中央線/国立 歩12分 JR南武線/西国立 歩16分 JR南武線/矢川 歩21分
|
Floor plan details 間取り詳細 | | Hiroshi 10.5 Hiroshi 4.5 K3 洋10.5 洋4.5 K3 |
Construction 構造 | | Wooden 木造 |
Story 階建 | | 1st floor / 2-story 1階/2階建 |
Built years 築年月 | | April 1967 1967年4月 |
Nonlife insurance 損保 | | 22,000 yen 2.2万円 |
Parking lot 駐車場 | | Free with 付無料 |
Move-in 入居 | | Immediately 即 |
Trade aspect 取引態様 | | Mediation 仲介 |
Conditions 条件 | | Two people Available / Children Allowed / Pets Negotiable / Room share consultation 二人入居可/子供可/ペット相談/ルームシェア相談 |
Deposit buildup 敷金積み増し | | In the case of pet breeding deposit 3 months (total) ペット飼育の場合敷金3ヶ月(総額) |
Intermediate fee 仲介手数料 | | 1.05 months 1.05ヶ月 |
Other expenses ほか諸費用 | | House cleaning fee due to leave at the time of skill in the art 退去時業者によるハウスクリーニング代 |
Remarks 備考 | | JR Nambu Line Nishi Kunitachi Station walk 16 minutes / 500m to super / 400m to a convenience store JR南武線西国立駅徒歩16分/スーパーまで500m/コンビニまで400m |
Area information 周辺情報 | | (Super) up to 400m up to 500m (convenience store) (スーパー)まで500m(コンビニ)まで400m |