1998November
45,000 yen, 1K, Second floor / 2-story, 20.28 sq m
Rentals » Kanto » Tokyo » Machida
 
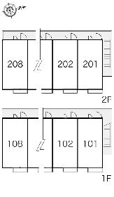
| Railroad-station 沿線・駅 | | Keio Sagamihara Line / Tamasakai 京王相模原線/多摩境 | Address 住所 | | Machida, Tokyo Oyama-cho 東京都町田市小山町 | Walk 徒歩 | | 21 minutes 21分 | Rent 賃料 | | 45,000 yen 4.5万円 | Management expenses 管理費・共益費 | | 4000 yen 4000円 | Key money 礼金 | | 45,000 yen 4.5万円 | Floor plan 間取り | | 1K 1K | Occupied area 専有面積 | | 20.28 sq m 20.28m2 | Type 種別 | | Apartment アパート | Year Built 築年 | | Built 16 years 築16年 | | Leo Palace Uchida レオパレス内田 |
| Unnecessary brokerage fees 仲介手数料不要 |
| Basic cleaning fee (at the time of leaving) 1K25500 yen (furniture ・ Consumer electronics with room for additional 3000 yen) ※ Tax not included 基本清掃料(退室時)1K25500円(家具・家電付の部屋は3000円追加)※税別 |
| Bus toilet by, Air conditioning, Indoor laundry location, Warm water washing toilet seat, Immediate Available, top floor, Electric stove, loft, Unnecessary brokerage fees, trunk room バストイレ別、エアコン、室内洗濯置、温水洗浄便座、即入居可、最上階、電気コンロ、ロフト、仲介手数料不要、トランクルーム |
Property name 物件名 | | Rental housing of Machida, Tokyo Oyama-cho Tamasakai Station [Rental apartment ・ Apartment] information Property Details 東京都町田市小山町 多摩境駅の賃貸住宅[賃貸マンション・アパート]情報 物件詳細 | Transportation facilities 交通機関 | | Keio Sagamihara Line / Tamasakai step 21 minutes 京王相模原線/多摩境 歩21分
| Construction 構造 | | Wooden 木造 | Story 階建 | | Second floor / 2-story 2階/2階建 | Built years 築年月 | | November 1998 1998年11月 | Nonlife insurance 損保 | | The main 要 | Parking lot 駐車場 | | Site 11500 yen 敷地内11500円 | Move-in 入居 | | Immediately 即 | Trade aspect 取引態様 | | Lender 貸主 | Property code 取り扱い店舗物件コード | | 11962-202 11962-202 | Total units 総戸数 | | 16 houses 16戸 | Intermediate fee 仲介手数料 | | Unnecessary 不要 | Guarantor agency 保証人代行 | | Guarantee company use 必 guarantee fee: 100 by 59,390 yen (contract ~ Fluctuations have at 120%) ※ The amounts in the case of 120% 保証会社利用必 保証料:59390円(契約内容により100 ~ 120%で変動有)※記載金額は120%の場合 | In addition ほか初期費用 | | Total 25,800 yen (Breakdown: The key exchange costs 9496 yen, Antibacterial construction (Optional) ¥ 16400 (excluding tax)) 合計2.58万円(内訳:鍵交換費9496円、抗菌施工(任意)16400円(税別)) | Other expenses ほか諸費用 | | Environmental maintenance costs 496 yen / Month, Renewal fees 15000 yen / 2 years (excluding tax) 環境維持費496円/月、更新手数料15000円/2年(税別) |
Building appearance建物外観 
Living and room居室・リビング 


Kitchenキッチン 
Bathバス 

Toiletトイレ 
Otherその他  Monitor with intercom
モニター付インターホン




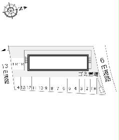
Location
|