Rentals » Kanto » Tokyo » Machida
 
| Railroad-station 沿線・駅 | | Odakyu line / Tsurukawa 小田急線/鶴川 | Address 住所 | | Machida, Tokyo Hirohakama 2 東京都町田市広袴2 | Bus バス | | 6 minutes 6分 | Walk 徒歩 | | 5 minutes 5分 | Rent 賃料 | | 85,000 yen 8.5万円 | Management expenses 管理費・共益費 | | 3000 yen 3000円 | Security deposit 敷金 | | 85,000 yen 8.5万円 | Floor plan 間取り | | 2LDK 2LDK | Occupied area 専有面積 | | 62.54 sq m 62.54m2 | Direction 向き | | South 南 | Type 種別 | | terrace ・ Townhouse テラス・タウンハウス | Year Built 築年 | | Built 11 years 築11年 | | ☆ No key money ☆ It is safe even if many of your luggage because it is plenty of storage ☆ ☆礼金なし☆収納たっぷりなのでお荷物が多くても安心です☆ |
| ☆ Pat is also ventilation because the window often ☆ May day, The surrounding environment is also very good ☆ Looking for room to Town housing Machida ☆ ☆窓も多いので換気もばっちりです☆日当たりもよく、周辺環境もとてもいいです☆お部屋探しタウンハウジング町田店まで☆ |
| Bus toilet by, balcony, Gas stove correspondence, closet, Flooring, Washbasin with shower, TV interphone, Indoor laundry location, Yang per good, Shoe box, System kitchen, Facing south, Add-fired function bathroom, Corner dwelling unit, Dressing room, Seperate, Bicycle-parking space, CATV, Optical fiber, Immediate Available, Key money unnecessary, A quiet residential area, 3-neck over stove, All room Western-style, Deposit 1 month, Two tenants consultation, Bike shelter, Security shutters, All living room flooring, 3 face lighting, Maisonette, terrace, Window in the kitchen, Double-glazing, 3 station more accessible, BS バストイレ別、バルコニー、ガスコンロ対応、クロゼット、フローリング、シャワー付洗面台、TVインターホン、室内洗濯置、陽当り良好、シューズボックス、システムキッチン、南向き、追焚機能浴室、角住戸、脱衣所、洗面所独立、駐輪場、CATV、光ファイバー、即入居可、礼金不要、閑静な住宅地、3口以上コンロ、全居室洋室、敷金1ヶ月、二人入居相談、バイク置場、防犯シャッター、全居室フローリング、3面採光、メゾネット、テラス、キッチンに窓、複層ガラス、3駅以上利用可、BS |
Property name 物件名 | | Rental housing of Machida, Tokyo Hirohakama 2 Tsurukawa Station [Rental apartment ・ Apartment] information Property Details 東京都町田市広袴2 鶴川駅の賃貸住宅[賃貸マンション・アパート]情報 物件詳細 | Transportation facilities 交通機関 | | Odakyu line / Tsurukawa bus 6 minutes (bus stop) Hirohakama center walk 5 minutes Odakyū Tama Line / Ayumi Kurihira 30 minutes Odakyū Tama Line / Satsukidai step 32 minutes 小田急線/鶴川 バス6分 (バス停)広袴中央 歩5分 小田急多摩線/栗平 歩30分 小田急多摩線/五月台 歩32分
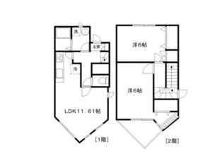
| Floor plan details 間取り詳細 | | Hiroshi 7.5 Hiroshi 6 LDK11.6 洋7.5 洋6 LDK11.6 | Construction 構造 | | Wooden 木造 | Story 階建 | | Second floor / 2-story 2階/2階建 | Built years 築年月 | | March 2003 2003年3月 | Nonlife insurance 損保 | | 20,000 yen two years 2万円2年 | Parking lot 駐車場 | | On-site 8400 yen 敷地内8400円 | Move-in 入居 | | Immediately 即 | Trade aspect 取引態様 | | Mediation 仲介 | Conditions 条件 | | Two people Available / Children Allowed 二人入居可/子供可 | Property code 取り扱い店舗物件コード | | 2142103 2142103 | Remarks 備考 | | ☆ No key money ☆ It is safe even if many of your luggage because it is plenty of storage ☆ ☆礼金なし☆収納たっぷりなのでお荷物が多くても安心です☆ | Area information 周辺情報 | | Maruetsu 850m until the (super) to 1850mTSUTAYA (other) up to 1700m Kyandu 2100m Sanwa up to 2000m to (other) Odakyu OX (Super) (super) up to 1000m McDonald's (Other) マルエツ(スーパー)まで1850mTSUTAYA(その他)まで1700mキャンドゥ(その他)まで2000m小田急OX(スーパー)まで2100m三和(スーパー)まで1000mマクドナルド(その他)まで850m |
Building appearance建物外観 


Living and room居室・リビング  Open kitchen
オープンキッチン
Kitchenキッチン  System kitchen out motivated to dishes
お料理にやる気の出るシステムキッチン
Bathバス  Bathing is spread
お風呂広めです
Toiletトイレ  Toilet
トイレです
Other room spaceその他部屋・スペース  closet
クローゼット
Washroom洗面所  Independent wash basin
独立洗面台
Securityセキュリティ  It comes with a TV monitor phone
TVモニタフォン付いてます
Other Equipmentその他設備 
Garden庭  Terrace is very fashionable
テラスがとてもオシャレです
Supermarketスーパー  Maruetsu to (super) 1850m
マルエツ(スーパー)まで1850m
 2100m to Odakyu OX (super)
小田急OX(スーパー)まで2100m
 Sanwa 1000m until the (super)
三和(スーパー)まで1000m
Otherその他  TSUTAYA until the (other) 1700m
TSUTAYA(その他)まで1700m
 Kyandu until the (other) 2000m
キャンドゥ(その他)まで2000m
 850m to McDonald's (Other)
マクドナルド(その他)まで850m
Location
|