Rentals » Kanto » Tokyo » Machida
 
| Railroad-station 沿線・駅 | | JR Yokohama Line / Naruse JR横浜線/成瀬 | Address 住所 | | Machida, Tokyo Ogawa 1 東京都町田市小川1 | Walk 徒歩 | | 12 minutes 12分 | Rent 賃料 | | 230,000 yen 23万円 | Management expenses 管理費・共益費 | | 10000 yen 10000円 | Key money 礼金 | | 230,000 yen 23万円 | Deposit 保証金 | | 300,000 yen 30万円 | Floor plan 間取り | | 3LDK 3LDK | Occupied area 専有面積 | | 152.52 sq m 152.52m2 | Direction 向き | | South 南 | Type 種別 | | Mansion マンション | Year Built 築年 | | Built 23 years 築23年 | | City gas! Air conditioning 5 groups barbecue with garden! ! 都市ガス!エアコン5基バーベキューガーデン付き!! |
| The total brick tiled appearance large detached sense of home ☆ 総レンガタイル貼りの外観大型戸建感覚住宅☆ |
| Bus toilet by, balcony, Gas stove correspondence, closet, Flooring, Indoor laundry location, Yang per good, Shoe box, System kitchen, Facing south, Warm water washing toilet seat, Dressing room, Seperate, closet, CATV, Immediate Available, A quiet residential area, top floor, Deposit required, 3-neck over stove, Parking two Allowed, Two tenants consultation, Entrance hall, Private garden, Maisonette, terrace, Parking two free, Underfloor Storage, Toilet 2 places, Air conditioning four, Closet 3 places, The area occupied 30 square meters or more バストイレ別、バルコニー、ガスコンロ対応、クロゼット、フローリング、室内洗濯置、陽当り良好、シューズボックス、システムキッチン、南向き、温水洗浄便座、脱衣所、洗面所独立、押入、CATV、即入居可、閑静な住宅地、最上階、敷金不要、3口以上コンロ、駐車2台可、二人入居相談、玄関ホール、専用庭、メゾネット、テラス、駐車場2台無料、床下収納、トイレ2ヶ所、エアコン4台、クロゼット3ヶ所、専有面積30坪以上 |
Property name 物件名 | | Rental housing in Tokyo Machida Ogawa 1 Naruse Station [Rental apartment ・ Apartment] information Property Details 東京都町田市小川1 成瀬駅の賃貸住宅[賃貸マンション・アパート]情報 物件詳細 | Transportation facilities 交通機関 | | JR Yokohama Line / Ayumi Naruse 12 minutes Tokyu Denentoshi / Tsukushino walk 12 minutes Tokyu Denentoshi / Suzukakedai walk 19 minutes JR横浜線/成瀬 歩12分 東急田園都市線/つくし野 歩12分 東急田園都市線/すずかけ台 歩19分
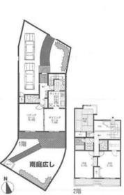
| Floor plan details 間取り詳細 | | Sum 6 Hiroshi 9.5 Hiroshi 8.4 L10.9D7.8K4.7 和6 洋9.5 洋8.4 L10.9D7.8K4.7 | Construction 構造 | | Rebar Con 鉄筋コン | Story 階建 | | Second floor / 2-story 2階/2階建 | Built years 築年月 | | January 1992 1992年1月 | Nonlife insurance 損保 | | 20,000 yen two years 2万円2年 | Parking lot 駐車場 | | Free with 付無料 | Move-in 入居 | | Immediately 即 | Trade aspect 取引態様 | | Mediation 仲介 | Conditions 条件 | | Two people Available 二人入居可 | Property code 取り扱い店舗物件コード | | 6720686 6720686 | Remarks 備考 | | 100m to the hospital / Until Sanwa 200m / hospital, Supermarket, Close to the family restaurant 病院まで100m/三和まで200m/病院、スーパー、ファミレス近くにあります | Area information 周辺情報 | | Seijo 1240m to 1200m Sotetsu Rosen Co., Ltd. until the (drugstore) to 1200m Seven (convenience store) (super) up to 1300m fish people (other) up to 1200m Naruse Station (other) up to 1200m bicycle parking lot (public office) セイジョー(ドラッグストア)まで1200mセブン(コンビニ)まで1200m相鉄ローゼン(スーパー)まで1300m魚民(その他)まで1200m成瀬駅(その他)まで1200m駐輪場(役所)まで1240m |
Building appearance建物外観 

 Day is well wide garden
日当たりが良く広い庭です
Living and room居室・リビング  It is also a good wide living day clean
綺麗で広いリビング日当たりも良好ですよ
Kitchenキッチン  Wide system Kitchen
広いシステムキッチン
Bathバス  Wide and stylish bus
広くてお洒落なバスです
Receipt収納  Is storage space often
収納スペース多いですよ
 Shoes also stored securely
靴もしっかり収納
 Storage is firmly a Japanese-style room
収納しっかりな和室です
Other room spaceその他部屋・スペース  Large living bricks stylish
レンガがお洒落な広いリビング
Balconyバルコニー  Balcony is also wide
バルコニーも広いですよ
Securityセキュリティ 
Entranceエントランス  Stylish appearance of tiled
タイル張りのお洒落な外観
Supermarketスーパー  Sotetsu Rosen Co., Ltd. until the (super) 1300m
相鉄ローゼン(スーパー)まで1300m
Convenience storeコンビニ  1200m to Seven (convenience store)
セブン(コンビニ)まで1200m
Dorakkusutoaドラックストア  Seijo 1200m until the (drugstore)
セイジョー(ドラッグストア)まで1200m
Government office役所  1240m to the parking lot (government office)
駐輪場(役所)まで1240m
Otherその他  It is also a beautiful garden front of the room
部屋の前も庭が綺麗ですよ
 1200m until the fish people (Other)
魚民(その他)まで1200m
 1200m to Naruse Station (Other)
成瀬駅(その他)まで1200m
Location
|