Rentals » Kanto » Tokyo » Musashino
 
| Railroad-station 沿線・駅 | | JR Chuo Line / Nishiogikubo JR中央線/西荻窪 | Address 住所 | | Musashino-shi, Tokyo Kichijojihigashi cho 3 東京都武蔵野市吉祥寺東町3 | Walk 徒歩 | | 14 minutes 14分 | Rent 賃料 | | 120,000 yen 12万円 | Security deposit 敷金 | | 120,000 yen 12万円 | Floor plan 間取り | | 3K 3K | Occupied area 専有面積 | | 50.8 sq m 50.8m2 | Direction 向き | | South 南 | Type 種別 | | Residential home 一戸建て | Year Built 築年 | | Built 49 years 築49年 | | Founded 38 years of trust and results Community To Nishiogikubo three stores ・ Beach Commercial real estate 創業38年の信頼と実績 地域密着 西荻窪に3店舗・浜商不動産 |
| New life support campaign target property 24 hours a day, 365 days a year peace of mind supported properties of spring 春の新生活応援キャンペーン対象物件24時間365日安心サポート対象物件 |
| Bus toilet by, balcony, Air conditioning, Gas stove correspondence, Flooring, Yang per good, Shoe box, Facing south, Add-fired function bathroom, Two-burner stove, Bicycle-parking space, Immediate Available, Key money unnecessary, A quiet residential area, Two-sided lighting, All room storage, Sorting, Single person consultation, Deposit 1 month, Two tenants consultation, Bike shelter, 2 wayside Available, Window in the kitchen, Interior renovation completed, Air Conditioning All rooms, Deposit required, The window in the bathroom, Shutter, Air conditioning three, All rooms are two-sided lighting, 2 Station Available, Our managed propertiesese-style room, City gas, South balcony, Entrance storage, Interior renovation after the pass バストイレ別、バルコニー、エアコン、ガスコンロ対応、フローリング、陽当り良好、シューズボックス、南向き、追焚機能浴室、2口コンロ、駐輪場、即入居可、礼金不要、閑静な住宅地、2面採光、全居室収納、振分、単身者相談、敷金1ヶ月、二人入居相談、バイク置場、2沿線利用可、キッチンに窓、内装リフォーム済、エアコン全室、保証金不要、浴室に窓、雨戸、エアコン3台、全室2面採光、2駅利用可、当社管理物件、和室、都市ガス、南面バルコニー、玄関収納、内装リフォーム後渡 |
Property name 物件名 | | Rental housing of Musashino-shi, Tokyo Kichijojihigashi cho 3 Nishiogikubo Station [Rental apartment ・ Apartment] information Property Details 東京都武蔵野市吉祥寺東町3 西荻窪駅の賃貸住宅[賃貸マンション・アパート]情報 物件詳細 | Transportation facilities 交通機関 | | JR Chuo Line / Nishiogikubo walk 14 minutes JR Chuo Line / Kichijoji walk 16 minutes Inokashira / Kichijoji walk 16 minutes JR中央線/西荻窪 歩14分 JR中央線/吉祥寺 歩16分 京王井の頭線/吉祥寺 歩16分
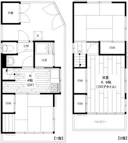
| Floor plan details 間取り詳細 | | Sum 6 sum 4.5 Hiroshi 6.8 K4 和6 和4.5 洋6.8 K4 | Construction 構造 | | Wooden 木造 | Story 階建 | | 2-story 2階建 | Built years 築年月 | | January 1966 1966年1月 | Nonlife insurance 損保 | | The main 要 | Move-in 入居 | | Immediately 即 | Trade aspect 取引態様 | | Mediation 仲介 | Conditions 条件 | | Single person Allowed / Two people Available / Children Allowed / Office Unavailable / Room share not 単身者可/二人入居可/子供可/事務所利用不可/ルームシェア不可 | Property code 取り扱い店舗物件コード | | 2111 2111 | Intermediate fee 仲介手数料 | | 1 month 1ヶ月 | Other expenses ほか諸費用 | | (1) every month of guarantee fees of this property is, It is the landlord Mr. burden. Shin guarantee company (1)こちらの物件の毎月の保証料は、家主様負担です。保証会社の審 | Remarks 備考 | | JR Chuo Line Kichijoji Station walk 16 minutes / MINISTOP up to 70m / 110m to Tokyo Woman's Christian University / Patrol management / New life support campaign target properties of spring Additional information is available at the beach and Commercial Real Estate JR中央線吉祥寺駅徒歩16分/ミニストップまで70m/東京女子大学まで110m/巡回管理/春の新生活応援キャンペーン対象物件 詳細は浜商不動産まで | Area information 周辺情報 | | MINISTOP (convenience store) up to 70m Tokyo Woman's Christian University (Other) up to 350m to 110m Family Mart (convenience store) ミニストップ(コンビニ)まで70m東京女子大学(その他)まで110mファミリーマート(コンビニ)まで350m |
Building appearance建物外観 
Living and room居室・リビング 
 Living
リビング

Kitchenキッチン  Gas two-burner stove installation Allowed
ガス2口コンロ設置可
Bathバス  Allowed reheating
追い炊き可
Receipt収納  Abundant storage
豊富な収納
Other room spaceその他部屋・スペース  Facing south ・ Sunny
南向き・日当たり良好

Washroom洗面所  Independent wash basin
独立洗面台
Balconyバルコニー  Veranda
ベランダ
Entrance玄関  Entrance
玄関
|