Rentals » Kanto » Tokyo » Musashino
 
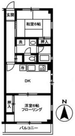
| Railroad-station 沿線・駅 | | JR Chuo Line / Musashisakai JR中央線/武蔵境 | Address 住所 | | Musashino-shi, Tokyo Sakurazutsumi 1 東京都武蔵野市桜堤1 | Walk 徒歩 | | 18 minutes 18分 | Rent 賃料 | | 92,000 yen 9.2万円 | Management expenses 管理費・共益費 | | 3000 yen 3000円 | Key money 礼金 | | 92,000 yen 9.2万円 | Security deposit 敷金 | | 92,000 yen 9.2万円 | Floor plan 間取り | | 2DK 2DK | Occupied area 専有面積 | | 48.33 sq m 48.33m2 | Direction 向き | | South 南 | Type 種別 | | Mansion マンション | Year Built 築年 | | Built 26 years 築26年 | | The third floor southeast angle dwelling unit 3 face lighting Distribution Gas range ・ Grill new 3階東南角住戸 3面採光 振分け ガスレンジ・グリル新品 |
| Bus toilet by, balcony, Flooring, TV interphone, Indoor laundry location, Yang per good, Shoe box, System kitchen, Facing south, Corner dwelling unit, Seperate, Bathroom vanity, Bicycle-parking space, closet, CATV, Immediate Available, top floor, 3-neck over stove, Sorting, Southeast angle dwelling unit, Deposit 1 month, With gas range, 3 face lighting, Window in the kitchen, Good view, 1 floor 2 dwelling unit, The window in the bathroom, Upper closet, Air conditioning three, Housing 2 between the half, Room share consultation, Within a 3-minute bus stop walk, No upper floorese-style room, Vanity with vertical lighting, South balcony, Key money one month, Ventilation good バストイレ別、バルコニー、フローリング、TVインターホン、室内洗濯置、陽当り良好、シューズボックス、システムキッチン、南向き、角住戸、洗面所独立、洗面化粧台、駐輪場、押入、CATV、即入居可、最上階、3口以上コンロ、振分、東南角住戸、敷金1ヶ月、ガスレンジ付、3面採光、キッチンに窓、眺望良好、1フロア2住戸、浴室に窓、天袋、エアコン3台、収納2間半、ルームシェア相談、バス停徒歩3分以内、上階無し、和室、縦型照明付洗面化粧台、南面バルコニー、礼金1ヶ月、通風良好 |
Property name 物件名 | | Rental housing of Musashino-shi, Tokyo Sakurazutsumi 1 musashisakai [Rental apartment ・ Apartment] information Property Details 東京都武蔵野市桜堤1 武蔵境駅の賃貸住宅[賃貸マンション・アパート]情報 物件詳細 | Transportation facilities 交通機関 | | JR Chuo Line / Musashisakai step 18 minutes Ride 8 minutes / Sakurazutsumi JH center walk 1 minute JR中央線/武蔵境 歩18分 乗車8分/桜堤公団中央 歩1分 | Floor plan details 間取り詳細 | | Sum 6 Hiroshi 6 DK7.5 和6 洋6 DK7.5 | Construction 構造 | | Steel frame 鉄骨 | Story 階建 | | 3rd floor / Three-story 3階/3階建 | Built years 築年月 | | March 1989 1989年3月 | Nonlife insurance 損保 | | 20,000 yen two years 2万円2年 | Move-in 入居 | | Immediately 即 | Trade aspect 取引態様 | | Mediation 仲介 | Conditions 条件 | | Room share consultation ルームシェア相談 | Property code 取り扱い店舗物件コード | | 46120 46120 | Total units 総戸数 | | 4 units 4戸 | Balcony area バルコニー面積 | | 4.05 sq m 4.05m2 | Remarks 備考 | | Good living environment at the mall of the corporation adjacent 公団隣接の商店街で住環境良好 | Area information 周辺情報 | | Inageya ina21 543m to Musashino Sakurazutsumi store (supermarket) up to 466m Musashino Municipal Sakurano elementary school (elementary school) up to 255m Musashino Sakurazutsumi post office (post office) to 76m Sakura Central Park Tsutsumidanchi (park) up to 20m San drag Koganei Kajino Machiten (drugstore) いなげやina21武蔵野桜堤店(スーパー)まで466m武蔵野市立桜野小学校(小学校)まで255m武蔵野桜堤郵便局(郵便局)まで76m桜堤団地中央公園(公園)まで20mサンドラッグ小金井梶野町店(ドラッグストア)まで543mセブンイレブン西東京新町6丁目店(コンビニ)まで741m |
Building appearance建物外観 
Living and room居室・リビング 
 Western-style 6 Pledge Closet and DK partition door
洋室6帖 押入とDK間仕切り戸
 Japanese-style room Two-sided lighting
和室 二面採光
Kitchenキッチン  DK Higashimado ・ Nishi High with window
DK東窓・西高窓付
 Three-necked gas range ・ Grill new Paste wall tiles
3口ガスレンジ・グリル新品 壁タイル貼り
Bathバス  With window
窓付
Toiletトイレ 
Washroom洗面所 
Otherその他  High window
高窓
Location
|