1996November
67,000 yen, 1K, 1st floor / 2-story, 21.91 sq m
Rentals » Kanto » Tokyo » Musashino
 
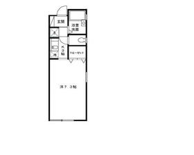
| Railroad-station 沿線・駅 | | JR Chuo Line / Kichijoji JR中央線/吉祥寺 | Address 住所 | | Musashino-shi, Tokyo Kichijojihon cho 3 東京都武蔵野市吉祥寺本町3 | Walk 徒歩 | | 11 minutes 11分 | Rent 賃料 | | 67,000 yen 6.7万円 | Management expenses 管理費・共益費 | | 3000 yen 3000円 | Key money 礼金 | | 33,500 yen 3.35万円 | Security deposit 敷金 | | 67,000 yen 6.7万円 | Floor plan 間取り | | 1K 1K | Occupied area 専有面積 | | 21.91 sq m 21.91m2 | Type 種別 | | Apartment アパート | Year Built 築年 | | Built 18 years 築18年 | | L- Espacio L-エスパシオ |
| Single people are women limited. TV monitor with intercom angle room 単身者女性限定です。TVモニター付インターホン角部屋 |
| Bus toilet by, Air conditioning, Gas stove correspondence, closet, Flooring, TV interphone, Indoor laundry location, Shoe box, Warm water washing toilet seat, CATV, Immediate Available, Starting station, 3 along the line more accessible, City gas, shutter バストイレ別、エアコン、ガスコンロ対応、クロゼット、フローリング、TVインターホン、室内洗濯置、シューズボックス、温水洗浄便座、CATV、即入居可、始発駅、3沿線以上利用可、都市ガス、シャッター |
Property name 物件名 | | Rental housing of Musashino-shi, Tokyo Kichijojihon cho 3 Kichijoji Station [Rental apartment ・ Apartment] information Property Details 東京都武蔵野市吉祥寺本町3 吉祥寺駅の賃貸住宅[賃貸マンション・アパート]情報 物件詳細 | Transportation facilities 交通機関 | | JR Chuo Line / Kichijoji walk 11 minutes JR Chuo Line / Mitaka walk 16 minutes JR中央線/吉祥寺 歩11分 JR中央線/三鷹 歩16分
| Floor plan details 間取り詳細 | | Sum 7.3 K3 和7.3 K3 | Construction 構造 | | Light-gauge steel 軽量鉄骨 | Story 階建 | | 1st floor / 2-story 1階/2階建 | Built years 築年月 | | November 1996 1996年11月 | Move-in 入居 | | Immediately 即 | Trade aspect 取引態様 | | Mediation 仲介 | Conditions 条件 | | women only / Single person limit 女性限定/単身者限定 | Intermediate fee 仲介手数料 | | 1.05 months 1.05ヶ月 | Other expenses ほか諸費用 | | One month at the time of updating the new rent, There leave during room cleaning expenses 更新時新賃料の1ヵ月分、退去時室内清掃費負担有り | Area information 周辺情報 | | Kinokuniya Kichijoji 360m to (super) up to 223m KopuTokyo Musashino store (supermarket) to 462mSTORE100 Kichijojihon cho Sanchome store (convenience store) up to 271m Seven-Eleven Musashino Inoatama Street store (convenience store) 紀ノ国屋吉祥寺店(スーパー)まで223mコープとうきょう武蔵野店(スーパー)まで462mSTORE100吉祥寺本町三丁目店(コンビニ)まで271mセブンイレブン武蔵野井ノ頭通り店(コンビニ)まで360m |
Building appearance建物外観 
Living and room居室・リビング 

Kitchenキッチン 
Toiletトイレ 
Location
|