1985April
55,000 yen, 1K, Second floor / 2-story, 22.68 sq m
Rentals » Kanto » Tokyo » Nerima
 
| Railroad-station 沿線・駅 | | Seibu Shinjuku Line / Saginomiya 西武新宿線/鷺ノ宮 | Address 住所 | | Nerima-ku, Tokyo Nakamuraminami 3 東京都練馬区中村南3 | Walk 徒歩 | | 10 minutes 10分 | Rent 賃料 | | 55,000 yen 5.5万円 | Management expenses 管理費・共益費 | | 2000 yen 2000円 | Security deposit 敷金 | | 55,000 yen 5.5万円 | Floor plan 間取り | | 1K 1K | Occupied area 専有面積 | | 22.68 sq m 22.68m2 | Direction 向き | | South 南 | Type 種別 | | Apartment アパート | Year Built 築年 | | Built 29 years 築29年 | | No key money Southeast angle room sunny 1 minute large super walk BT by Storage between 1 礼金なし 東南角部屋日当たり良好 大型スーパー徒歩1分 BT別 収納1間 |
| Bus toilet by, balcony, Air conditioning, Gas stove correspondence, Yang per good, Facing south, Add-fired function bathroom, Corner dwelling unit, CATV, Immediate Available, top floor, Deposit 1 month, 2 wayside Available, Student Counseling, 2 Station Available, Within a 10-minute walk stationese-style room, Key money one month, Guarantee company Available バストイレ別、バルコニー、エアコン、ガスコンロ対応、陽当り良好、南向き、追焚機能浴室、角住戸、CATV、即入居可、最上階、敷金1ヶ月、2沿線利用可、学生相談、2駅利用可、駅徒歩10分以内、和室、礼金1ヶ月、保証会社利用可 |
Property name 物件名 | | Rental housing of Nerima-ku, Tokyo Nakamuraminami 3 saginomiya station [Rental apartment ・ Apartment] information Property Details 東京都練馬区中村南3 鷺ノ宮駅の賃貸住宅[賃貸マンション・アパート]情報 物件詳細 | Transportation facilities 交通機関 | | Seibu Shinjuku Line / Saginomiya step 10 minutes Seibu Ikebukuro Line / Nakamurabashi step 13 minutes 西武新宿線/鷺ノ宮 歩10分 西武池袋線/中村橋 歩13分
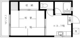
| Floor plan details 間取り詳細 | | Sum 6 K3.7 和6 K3.7 | Construction 構造 | | Light-gauge steel 軽量鉄骨 | Story 階建 | | Second floor / 2-story 2階/2階建 | Built years 築年月 | | April 1985 1985年4月 | Nonlife insurance 損保 | | 15,000 yen two years 1.5万円2年 | Move-in 入居 | | Immediately 即 | Trade aspect 取引態様 | | Mediation 仲介 | Conditions 条件 | | Room share not ルームシェア不可 | Property code 取り扱い店舗物件コード | | 3200-0203 3200-0203 | Intermediate fee 仲介手数料 | | 1 month 1ヶ月 | Guarantor agency 保証人代行 | | Guarantee company Available contract at the time, Rent and administrative expenses 30% ~ Fifty percent 保証会社利用可 契約時、賃料管理費の30% ~ 50% | Remarks 備考 | | Guarantee company consultation 保証会社相談 |
Building appearance建物外観 
Living and room居室・リビング 

Kitchenキッチン 
Bathバス 
Toiletトイレ 
Receipt収納 
Other room spaceその他部屋・スペース 
|