|
Railroad-station 沿線・駅 | | Tokyo Metro Yurakucho Line / Heiwadai 東京メトロ有楽町線/平和台 |
Address 住所 | | Nerima-ku, Tokyo Heiwadai 4 東京都練馬区平和台4 |
Walk 徒歩 | | 5 minutes 5分 |
Rent 賃料 | | 103,000 yen 10.3万円 |
Management expenses 管理費・共益費 | | 5000 Yen 5000円 |
Key money 礼金 | | 103,000 yen 10.3万円 |
Security deposit 敷金 | | 309,000 yen 30.9万円 |
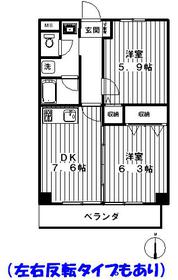
Floor plan 間取り | | 2DK 2DK |
Occupied area 専有面積 | | 46.47 sq m 46.47m2 |
Direction 向き | | South 南 |
Type 種別 | | Mansion マンション |
Year Built 築年 | | Built 39 years 築39年 |
|
Heiwadai 2DK Mansion is a 5-minute walk!
平和台徒歩5分の2DKマンション!
|
|
Because it is the room you have renovation, Also it has been enhanced very clean facilities to age! !
リフォームしてあるお部屋ですので、築年数に対して非常にきれいで設備も充実してます!!
|
|
Bus toilet by, balcony, Air conditioning, Gas stove correspondence, closet, Flooring, Bathroom Dryer, auto lock, Indoor laundry location, System kitchen, Facing south, Add-fired function bathroom, Seperate, Two-burner stove, Bicycle-parking space, CATV, With lighting, All room Western-style, Two air conditioning, Flat terrain, Within a 5-minute walk station, On-site trash Storage, South balcony
バストイレ別、バルコニー、エアコン、ガスコンロ対応、クロゼット、フローリング、浴室乾燥機、オートロック、室内洗濯置、システムキッチン、南向き、追焚機能浴室、洗面所独立、2口コンロ、駐輪場、CATV、照明付、全居室洋室、エアコン2台、平坦地、駅徒歩5分以内、敷地内ごみ置き場、南面バルコニー
|
Property name 物件名 | | Rental housing of Nerima-ku, Tokyo Heiwadai 4 Heiwadai Station [Rental apartment ・ Apartment] information Property Details 東京都練馬区平和台4 平和台駅の賃貸住宅[賃貸マンション・アパート]情報 物件詳細 |
Transportation facilities 交通機関 | | Tokyo Metro Yurakucho Line / Heiwadai walk 5 minutes Tobu Tojo Line / Tobunerima step 19 minutes Tokyo Metro Yurakucho Line / Hikawadai walk 19 minutes 東京メトロ有楽町線/平和台 歩5分 東武東上線/東武練馬 歩19分 東京メトロ有楽町線/氷川台 歩19分
|
Floor plan details 間取り詳細 | | Hiroshi 6.3 Hiroshi 5.9 DK7.6 洋6.3 洋5.9 DK7.6 |
Construction 構造 | | Rebar Con 鉄筋コン |
Story 階建 | | 1st floor / Three-story 1階/3階建 |
Built years 築年月 | | 1976 1976年 |
Nonlife insurance 損保 | | 20,000 yen two years 2万円2年 |
Parking lot 駐車場 | | Neighborhood 20m21000 yen 近隣20m21000円 |
Move-in 入居 | | Consultation 相談 |
Trade aspect 取引態様 | | Mediation 仲介 |
Property code 取り扱い店舗物件コード | | 6006880111 6006880111 |
Intermediate fee 仲介手数料 | | 1.05 months 1.05ヶ月 |
Remarks 備考 | | 241m until Gourmet City Nerima Heiwadai shop / 178m to FamilyMart / Guarantor Required, Deposit three months → 2 months negotiable グルメシティ練馬平和台店まで241m/ファミリーマートまで178m/保証人要、敷金3ヶ月→2ヶ月相談可 |
Area information 周辺情報 | | Gourmet City Nerima Heiwadai store (supermarket) up to 241m FamilyMart Heiwadai ring eight ways store (convenience store) up to 178m Miyamoto drag Heiwadai store (drugstore) to 680m Yamada Denki Tecc Land Heiwadai Station store (hardware store) to 704m Nerima Heiwadai post office (post office) グルメシティ練馬平和台店(スーパー)まで241mファミリーマート平和台環八通り店(コンビニ)まで178mミヤモトドラッグ平和台店(ドラッグストア)まで680mヤマダ電機テックランド平和台駅前店(ホームセンター)まで704m練馬平和台郵便局(郵便局)まで188mJA東京あおば平和台支店(銀行)まで469m |