1979January
45,000 yen, 1K, Second floor / 2-story, 26.4 sq m
Rentals » Kanto » Tokyo » Nerima

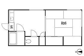
| Railroad-station 沿線・駅 | | Seibu Shinjuku Line / Musashi institutions 西武新宿線/武蔵関 | Address 住所 | | Nerima-ku, Tokyo Minamiōizumi 1 東京都練馬区南大泉1 | Walk 徒歩 | | 18 minutes 18分 | Rent 賃料 | | 45,000 yen 4.5万円 | Key money 礼金 | | 45,000 yen 4.5万円 | Security deposit 敷金 | | 45,000 yen 4.5万円 | Floor plan 間取り | | 1K 1K | Occupied area 専有面積 | | 26.4 sq m 26.4m2 | Direction 向き | | South 南 | Type 種別 | | Apartment アパート | Year Built 築年 | | Built 36 years 築36年 | | Bus toilet by, Facing south, Immediate Available, A quiet residential area, With lighting, Deposit 1 month, Deposit requiredese-style room, City gas, Key money one month バストイレ別、南向き、即入居可、閑静な住宅地、照明付、敷金1ヶ月、保証金不要、和室、都市ガス、礼金1ヶ月 |
Property name 物件名 | | Rental housing of Nerima-ku, Tokyo Minamiōizumi 1 Musashi Seki Station [Rental apartment ・ Apartment] information Property Details 東京都練馬区南大泉1 武蔵関駅の賃貸住宅[賃貸マンション・アパート]情報 物件詳細 | Transportation facilities 交通機関 | | Seibu Shinjuku Line / Musashi Ayumi Seki 18 minutes 西武新宿線/武蔵関 歩18分
| Floor plan details 間取り詳細 | | Sum 6 K1.5 和6 K1.5 | Construction 構造 | | Wooden 木造 | Story 階建 | | Second floor / 2-story 2階/2階建 | Built years 築年月 | | January 1979 1979年1月 | Nonlife insurance 損保 | | 13,000 yen two years 1.3万円2年 | Parking lot 駐車場 | | Site 12000 yen 敷地内12000円 | Move-in 入居 | | Immediately 即 | Trade aspect 取引態様 | | Mediation 仲介 | Intermediate fee 仲介手数料 | | 1 month 1ヶ月 |

Location
|