Rentals » Kanto » Tokyo » Nerima
 
| Railroad-station 沿線・駅 | | Seibu Shinjuku Line / Musashi institutions 西武新宿線/武蔵関 | Address 住所 | | Nerima-ku, Tokyo Sekimachikita 5 東京都練馬区関町北5 | Walk 徒歩 | | 10 minutes 10分 | Rent 賃料 | | 114,000 yen 11.4万円 | Management expenses 管理費・共益費 | | 10000 yen 10000円 | Key money 礼金 | | 114,000 yen 11.4万円 | Security deposit 敷金 | | 114,000 yen 11.4万円 | Floor plan 間取り | | 3LDK 3LDK | Occupied area 専有面積 | | 66 sq m 66m2 | Direction 向き | | South 南 | Type 種別 | | Mansion マンション | Year Built 築年 | | Built 23 years 築23年 | | Casa Esperanza カーサエスペランサ |
| Living of the sash facing the south is high sound insulation in pairs glass 南に面するリビングのサッシはペアガラスで遮音性が高いです |
| Auto-lock equipped. Caretaker resident. There are shopping convenient 1-minute walk (Seven-Eleven) 8 minutes super (Miuraya) to school close. Sekimachikita elementary school walk 6 minutes, Seki junior high school a 5-minute walk. Atmosphere of good park with a large pond (Musashi Seki park) is a 10-minute walk オートロック完備。管理人常駐。買物便利徒歩1分(セブンイレブン)スーパー8分(三浦屋)学校至近に有ります。関町北小学校徒歩6分、関中学校徒歩5分。大きな池の有る雰囲気の良い公園(武蔵関公園)徒歩10分 |
| Bus toilet by, balcony, Air conditioning, Gas stove correspondence, closet, Flooring, auto lock, Indoor laundry location, Yang per good, Shoe box, System kitchen, Facing south, Add-fired function bathroom, Elevator, Seperate, Bicycle-parking space, closet, CATV, Outer wall tiling, Immediate Available, Deposit 1 month, Soundproof sash, Fireproof structure, Within a 10-minute walk station, Within a 3-minute bus stop walk, On-site trash Storage, BS バストイレ別、バルコニー、エアコン、ガスコンロ対応、クロゼット、フローリング、オートロック、室内洗濯置、陽当り良好、シューズボックス、システムキッチン、南向き、追焚機能浴室、エレベーター、洗面所独立、駐輪場、押入、CATV、外壁タイル張り、即入居可、敷金1ヶ月、防音サッシ、耐火構造、駅徒歩10分以内、バス停徒歩3分以内、敷地内ごみ置き場、BS |
Property name 物件名 | | Rental housing of Nerima-ku, Tokyo Sekimachikita 5 Musashi Seki Station [Rental apartment ・ Apartment] information Property Details 東京都練馬区関町北5 武蔵関駅の賃貸住宅[賃貸マンション・アパート]情報 物件詳細 | Transportation facilities 交通機関 | | Seibu Shinjuku Line / Musashi Ayumi Seki 10 minutes JR Chuo Line / Kichijoji bus 15 minutes (bus stop) Shakujii high school before walking 1 minute 西武新宿線/武蔵関 歩10分 JR中央線/吉祥寺 バス15分 (バス停)石神井高校前 歩1分
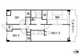
| Floor plan details 間取り詳細 | | Sum 6 Hiroshi 5 Hiroshi 4.5 LDK11.5 和6 洋5 洋4.5 LDK11.5 | Construction 構造 | | Rebar Con 鉄筋コン | Story 階建 | | 7th floor / 7-story 7階/7階建 | Built years 築年月 | | February 1992 1992年2月 | Nonlife insurance 損保 | | 27,000 yen two years 2.7万円2年 | Parking lot 駐車場 | | Site 17000 yen 敷地内17000円 | Move-in 入居 | | Immediately 即 | Trade aspect 取引態様 | | Mediation 仲介 | Property code 取り扱い店舗物件コード | | 2910214 2910214 | Total units 総戸数 | | 50 units 50戸 | Balcony area バルコニー面積 | | 8.4 sq m 8.4m2 | Remarks 備考 | | 60m until the Seven-Eleven Nerima Shakujii high school / Santoku Seki, Mie 750m to shop / Resident management / System K shampoo dresser auto-lock light net Allowed セブンイレブン練馬石神井高校まで60m/Santoku関町店まで750m/常駐管理/システムKシャンプドレッサオートロック光ネット可 | Area information 周辺情報 | | Shopping center 14 mins 750m until the (shopping center) 1100m Station Building super up to 1100m convenience store 1 minute walk (convenience store) up to 60m Shimamura Memorial Hospital walk 13 minutes (hospital) (Super) ショッピングセンター徒歩14分(ショッピングセンター)まで1100mコンビニ徒歩1分(コンビニ)まで60m島村記念病院徒歩13分(病院)まで1100m駅ビルスーパー(スーパー)まで750m |
Building appearance建物外観 
Living and room居室・リビング 






Kitchenキッチン 
Bathバス 
Entrance玄関 
Shopping centreショッピングセンター  Shopping center walk 14 minutes to the (shopping center) 1100m
ショッピングセンター徒歩14分(ショッピングセンター)まで1100m
Supermarketスーパー  750m to the station building super (super)
駅ビルスーパー(スーパー)まで750m
Convenience storeコンビニ  1 minute convenience store walk up (convenience store) 60m
コンビニ徒歩1分(コンビニ)まで60m
Hospital病院  Shimamura 1100m until Memorial Hospital walk 13 minutes (hospital)
島村記念病院徒歩13分(病院)まで1100m
Location
|