Rentals » Kanto » Tokyo » Nerima
 
| Railroad-station 沿線・駅 | | Seibu Shinjuku Line / Musashi institutions 西武新宿線/武蔵関 | Address 住所 | | Nerima-ku, Tokyo Sekimachikita 4 東京都練馬区関町北4 | Walk 徒歩 | | 2 min 2分 | Rent 賃料 | | 95,000 yen 9.5万円 | Management expenses 管理費・共益費 | | 6000 yen 6000円 | Key money 礼金 | | 95,000 yen 9.5万円 | Security deposit 敷金 | | 95,000 yen 9.5万円 | Floor plan 間取り | | 3DK 3DK | Occupied area 専有面積 | | 55 sq m 55m2 | Direction 向き | | East 東 | Type 種別 | | Mansion マンション | Year Built 築年 | | 30 years old 築30年 | | Perurino Musashi Seki E ペルリーノ武蔵関E |
| Super (Miuraya Musashi Sekimise) up to 350m. スーパー(三浦屋武蔵関店)まで350m。 |
| Bus toilet by, balcony, Gas stove correspondence, closet, Indoor laundry location, Shoe box, Elevator, Seperate, Bicycle-parking space, closet, CATV, Outer wall tiling, Deposit 1 month, Fireproof structure, Within a 5-minute walk station, Within a 3-minute bus stop walk, All rooms with lighting バストイレ別、バルコニー、ガスコンロ対応、クロゼット、室内洗濯置、シューズボックス、エレベーター、洗面所独立、駐輪場、押入、CATV、外壁タイル張り、敷金1ヶ月、耐火構造、駅徒歩5分以内、バス停徒歩3分以内、全室照明付 |
Property name 物件名 | | Rental housing of Nerima-ku, Tokyo Sekimachikita 4 Musashi Seki Station [Rental apartment ・ Apartment] information Property Details 東京都練馬区関町北4 武蔵関駅の賃貸住宅[賃貸マンション・アパート]情報 物件詳細 | Transportation facilities 交通機関 | | Seibu Shinjuku Line / Musashi Ayumi Seki 2 minutes JR Chuo Line / Kichijoji bus 15 minutes (bus stop) Musashi-Seki Station entrance walk 1 minute JR Chuo Line / Mitaka bus 23 minutes (bus stop) Musashi-Seki Station walk 3 minutes 西武新宿線/武蔵関 歩2分 JR中央線/吉祥寺 バス15分 (バス停)武蔵関駅入口 歩1分 JR中央線/三鷹 バス23分 (バス停)武蔵関駅 歩3分
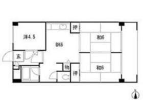
| Floor plan details 間取り詳細 | | Sum 6 sum 6 Hiroshi 4.5 DK6 和6 和6 洋4.5 DK6 | Construction 構造 | | Rebar Con 鉄筋コン | Story 階建 | | 1st floor / 6-story 1階/6階建 | Built years 築年月 | | July 1984 1984年7月 | Nonlife insurance 損保 | | 27,000 yen two years 2.7万円2年 | Parking lot 駐車場 | | Site 21000 yen 敷地内21000円 | Move-in 入居 | | Consultation 相談 | Trade aspect 取引態様 | | Mediation 仲介 | Property code 取り扱い店舗物件コード | | 301784 301784 | Total units 総戸数 | | 33 units 33戸 | Balcony area バルコニー面積 | | 7.31 sq m 7.31m2 | Remarks 備考 | | Miuraya 350m to Musashi Sekimise / Three primary virtues Until Seki, Mie shop 230m / Resident management / Each room lighting, Resident management, Pasting outer wall tile, Light net Allowed, CATV 三浦屋 武蔵関店まで350m/三徳 関町店まで230m/常駐管理/各居室照明、常駐管理、外壁タイル貼、光ネット可、CATV | Area information 周辺情報 | | 1000m to Musashi Seki park a 10-minute walk (park) 800m Station Building Super 3-minute walk up to (super) up to 230m Shimamura Memorial Hospital walk 13 minutes (hospital) 武蔵関公園徒歩10分(公園)まで800m駅ビルスーパー徒歩3分(スーパー)まで230m島村記念病院徒歩13分(病院)まで1000m |
Building appearance建物外観 
Living and room居室・リビング 




Kitchenキッチン 
Bathバス 
Toiletトイレ 
Washroom洗面所 
Entrance玄関 
Supermarketスーパー  3 minutes station building super walk up to (super) 230m
駅ビルスーパー徒歩3分(スーパー)まで230m
Hospital病院  Shimamura 1000m until Memorial Hospital walk 13 minutes (hospital)
島村記念病院徒歩13分(病院)まで1000m
Park公園  Musashi Seki park a 10-minute walk 800m to the (park)
武蔵関公園徒歩10分(公園)まで800m
Location
|