Rentals » Kanto » Tokyo » Nerima


Bus toilet by, Air conditioning, Gas stove correspondence, Indoor laundry location, Yang per good, Shoe box, Corner dwelling unit, Dressing room, Elevator, Seperate, Bathroom vanity, CATV, Outer wall tiling, Sorting, Deposit 1 month, CATV Internet, Two tenants consultation, Two-sided balcony, Entrance hall, 3 face lighting, 2 wayside Available, 3 station more accessible, Within a 5-minute walk station, Within a 10-minute walk station, Southeast directionese-style room, Door to the washroom, Entrance storage, BS, Key money one month, Ventilation good
Railroad-station
Seibu Ikebukuro Line / Ekoda
Address
Nerima-ku, Tokyo Toyotamakami 1
Walk
2 min
Rent
133,000 yen
Key money
133,000 yen
Security deposit
133,000 yen
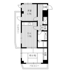
Floor plan
2DK
Occupied area
40 sq m
Direction
Southeast
Type
Mansion
Year Built
Built 26 years
Property name
Rental housing of Nerima-ku, Tokyo Toyotamakami 1 ekoda station [Rental apartment ・ Apartment] information Property Details
Transportation facilities
Seibu Ikebukuro Line / Ayumi Ekoda 2 minutes
Toei Oedo Line / New Ayumi Ekoda 6 minutes
Seibu Ikebukuro Line / Ayumi Sakuradai 13 minutes
Floor plan details
Sum 6 Hiroshi 5 DK7
Construction
Rebar Con
Story
7th floor / 8-story
Built years
1989
Nonlife insurance
The main
Parking lot
Neighborhood 100m25000 yen
Move-in
Immediately
Trade aspect
Mediation
Conditions
Two people Available
Remarks
1F "Mister Donut" / / Receipt / Digital terrestrial
Area information
Lawson LS Nerima Asahigaoka chome store (convenience store) up to 56m Three F Nerima Asahigaoka store (convenience store) up to 59m drag Segami Ekoda shop 120mBOOKOFF until (drugstore) to 108m Seven-Eleven ekoda station Minamiten (convenience store) (book off) Ekoda shop (Other)


Building appearance

Building appearance

Living and room

Living and room
Living and room
Living and room
Living and room

Kitchen

Kitchen

Bath

Bath

Toilet

Toilet

Receipt

Receipt

Washroom

Washroom

Other Equipment

Other Equipment
Other Equipment

Entrance

Entrance

Other common areas

Other common areas