1993May
128,000 yen, 3LDK, Second floor / Three-story, 67.44 sq m
Rentals » Kanto » Tokyo » Nerima
 
| Railroad-station 沿線・駅 | | Seibu Ikebukuro Line / Hoya 西武池袋線/保谷 | Address 住所 | | Nerima-ku, Tokyo Minamiōizumi 5 東京都練馬区南大泉5 | Walk 徒歩 | | 10 minutes 10分 | Rent 賃料 | | 128,000 yen 12.8万円 | Management expenses 管理費・共益費 | | 5000 Yen 5000円 | Key money 礼金 | | 128,000 yen 12.8万円 | Security deposit 敷金 | | 128,000 yen 12.8万円 | Floor plan 間取り | | 3LDK 3LDK | Occupied area 専有面積 | | 67.44 sq m 67.44m2 | Direction 向き | | South 南 | Type 種別 | | Mansion マンション | Year Built 築年 | | Built 21 years 築21年 | | Green Avenue グリーンアベニュー |
| Bus toilet by, Air conditioning, Gas stove correspondence, Flooring, Indoor laundry location, Facing south, Add-fired function bathroom, Bicycle-parking space, CATV, Immediate Available, 3-neck over stove, Deposit 1 month, Within a 10-minute walk station バストイレ別、エアコン、ガスコンロ対応、フローリング、室内洗濯置、南向き、追焚機能浴室、駐輪場、CATV、即入居可、3口以上コンロ、敷金1ヶ月、駅徒歩10分以内 |
Property name 物件名 | | Rental housing of Nerima-ku, Tokyo Minamiōizumi 5 Hoya Station [Rental apartment ・ Apartment] information Property Details 東京都練馬区南大泉5 保谷駅の賃貸住宅[賃貸マンション・アパート]情報 物件詳細 | Transportation facilities 交通機関 | | Seibu Ikebukuro Line / Ayumi Hoya 10 minutes 西武池袋線/保谷 歩10分
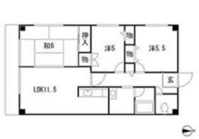
| Floor plan details 間取り詳細 | | Sum 6 Hiroshi 5.5 Hiroshi 5 LDK11.5 和6 洋5.5 洋5 LDK11.5 | Construction 構造 | | Rebar Con 鉄筋コン | Story 階建 | | Second floor / Three-story 2階/3階建 | Built years 築年月 | | May 1993 1993年5月 | Nonlife insurance 損保 | | 27,000 yen two years 2.7万円2年 | Parking lot 駐車場 | | Site 15000 yen 敷地内15000円 | Move-in 入居 | | Immediately 即 | Trade aspect 取引態様 | | Mediation 仲介 | Property code 取り扱い店舗物件コード | | 1220846 1220846 | Total units 総戸数 | | 24 units 24戸 | Balcony area バルコニー面積 | | 8.1 sq m 8.1m2 |
Building appearance建物外観 

Location
|