|
Railroad-station 沿線・駅 | | Seibu Ikebukuro Line / Shakujii Park 西武池袋線/石神井公園 |
Address 住所 | | Nerima-ku, Tokyo Shakujii cho 8 東京都練馬区石神井町8 |
Walk 徒歩 | | 9 minutes 9分 |
Rent 賃料 | | ¥ 100,000 10万円 |
Management expenses 管理費・共益費 | | 3000 yen 3000円 |
Key money 礼金 | | ¥ 100,000 10万円 |
Security deposit 敷金 | | ¥ 100,000 10万円 |
Floor plan 間取り | | 2SLDK 2SLDK |
Occupied area 専有面積 | | 52 sq m 52m2 |
Direction 向き | | South 南 |
Type 種別 | | Apartment アパート |
Year Built 築年 | | Built 19 years 築19年 |
|
Two-sided balcony ・ South-facing sunny ・ There is free parking on site!
2面バルコニー・南向き日当たり良好・敷地内駐車場空きあり!
|
|
Looking for room around Nerima Ward! To House station Shakujii Park shop! For more details, please visit our website. http: / / www.howstation-shakujii.com / index.html
練馬区周辺のお部屋探しは!ハウステーション石神井公園店へ!詳しい詳細は当社ホームページをご覧下さい。http://www.howstation-shakujii.com/index.html
|
|
Bus toilet by, balcony, Air conditioning, Gas stove correspondence, closet, Flooring, Indoor laundry location, Yang per good, Shoe box, System kitchen, Facing south, Add-fired function bathroom, Corner dwelling unit, Dressing room, Seperate, Bathroom vanity, Two-burner stove, Bicycle-parking space, CATV, A quiet residential area, Two-sided lighting, top floor, With lighting, CATV Internet, Two-sided balcony, 2 wayside Available, Two air conditioning, Dimple key, Net private line, Flat to the station, Some flooring, Within a 10-minute walk station, Door to the washroom, South balcony, Ventilation good
バストイレ別、バルコニー、エアコン、ガスコンロ対応、クロゼット、フローリング、室内洗濯置、陽当り良好、シューズボックス、システムキッチン、南向き、追焚機能浴室、角住戸、脱衣所、洗面所独立、洗面化粧台、2口コンロ、駐輪場、CATV、閑静な住宅地、2面採光、最上階、照明付、CATVインターネット、2面バルコニー、2沿線利用可、エアコン2台、ディンプルキー、ネット専用回線、駅まで平坦、一部フローリング、駅徒歩10分以内、洗面所にドア、南面バルコニー、通風良好
|
Property name 物件名 | | Rental housing of Nerima-ku, Tokyo Shakujii cho 8 Shakujiikoen [Rental apartment ・ Apartment] information Property Details 東京都練馬区石神井町8 石神井公園駅の賃貸住宅[賃貸マンション・アパート]情報 物件詳細 |
Transportation facilities 交通機関 | | Seibu Ikebukuro Line / Shakujii Park step 9 minutes Seibu Ikebukuro Line / Oizumigakuen walk 14 minutes Seibu Ikebukuro Line / Nerima Takanodai walk 24 minutes 西武池袋線/石神井公園 歩9分 西武池袋線/大泉学園 歩14分 西武池袋線/練馬高野台 歩24分
|
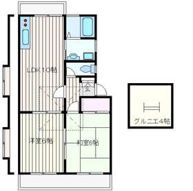
Floor plan details 間取り詳細 | | Sum 6 Hiroshi 6 LDK10 Grenier 4 和6 洋6 LDK10 グルニエ 4 |
Construction 構造 | | Wooden 木造 |
Story 階建 | | Second floor / 2-story 2階/2階建 |
Built years 築年月 | | August 1995 1995年8月 |
Nonlife insurance 損保 | | The main 要 |
Parking lot 駐車場 | | Site 16000 yen 敷地内16000円 |
Move-in 入居 | | Consultation 相談 |
Trade aspect 取引態様 | | Mediation 仲介 |
Conditions 条件 | | Two people Available 二人入居可 |
Property code 取り扱い店舗物件コード | | 1622203 1622203 |
Remarks 備考 | | Patrol management / Reheating ・ 2-neck system Kitchen ・ Air conditioning 2 groups 巡回管理/追い焚き・2口システムキッチン・エアコン2基 |
Area information 周辺情報 | | UNIQLO Higashioizumi store (shopping center) until 561mLIVIN Oz Oizumi store (supermarket) up to 603m Circle K Nerima Shakujii cho eight-chome (convenience store) to the 109m one main hall of medicine Miharadai shop 433m Nerima Oizumihigashi elementary school to (drugstore) ( ・ 252m to the nursery) ユニクロ東大泉店(ショッピングセンター)まで561mLIVINオズ大泉店(スーパー)まで603mサークルK練馬石神井町八丁目店(コンビニ)まで109mクスリの一本堂三原台店(ドラッグストア)まで433m練馬区立大泉東小学校(小学校)まで595m石神井幼稚園(幼稚園・保育園)まで252m |