Rentals » Kanto » Tokyo » Nerima
 
| Railroad-station 沿線・駅 | | Seibu Ikebukuro Line / Ekoda 西武池袋線/江古田 | Address 住所 | | Nerima-ku, Tokyo Sakae 東京都練馬区栄町 | Walk 徒歩 | | 1 minute 1分 | Rent 賃料 | | 75,000 yen 7.5万円 | Key money 礼金 | | 75,000 yen 7.5万円 | Security deposit 敷金 | | 75,000 yen 7.5万円 | Floor plan 間取り | | 2K 2K | Occupied area 専有面積 | | 26.5 sq m 26.5m2 | Direction 向き | | South 南 | Type 種別 | | Mansion マンション | Year Built 築年 | | Built 31 years 築31年 | | Bus toilet by, Gas stove correspondence, Yang per good, Shoe box, Facing south, Corner dwelling unit, Two-burner stove, top floor, Pets Negotiable, With lighting, All room storage, All room Western-style, Deposit 1 month, 3 face lighting, Housing 1 between a half, Flat to the station, Window in the kitchen, The window in the bathroom, Musical Instruments consultation, 3 station more accessible, 3 along the line more accessible, Station, Within a 5-minute walk station, Within a 10-minute walk station, Entrance storage, BS, Key money one month, Ventilation good バストイレ別、ガスコンロ対応、陽当り良好、シューズボックス、南向き、角住戸、2口コンロ、最上階、ペット相談、照明付、全居室収納、全居室洋室、敷金1ヶ月、3面採光、収納1間半、駅まで平坦、キッチンに窓、浴室に窓、楽器相談、3駅以上利用可、3沿線以上利用可、駅前、駅徒歩5分以内、駅徒歩10分以内、玄関収納、BS、礼金1ヶ月、通風良好 |
Property name 物件名 | | Rental housing of Nerima-ku, Tokyo Sakaecho ekoda station [Rental apartment ・ Apartment] information Property Details 東京都練馬区栄町 江古田駅の賃貸住宅[賃貸マンション・アパート]情報 物件詳細 | Transportation facilities 交通機関 | | Seibu Ikebukuro Line / Ayumi Ekoda 1 minute Toei Oedo Line / New Ayumi Ekoda 7 minutes Tokyo Metro Yurakucho Line / Kotake Mukaihara step 14 minutes 西武池袋線/江古田 歩1分 都営大江戸線/新江古田 歩7分 東京メトロ有楽町線/小竹向原 歩14分
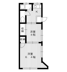
| Floor plan details 間取り詳細 | | Hiroshi 6.4 Hiroshi 4 K2 洋6.4 洋4 K2 | Construction 構造 | | Rebar Con 鉄筋コン | Story 階建 | | 3rd floor / Three-story 3階/3階建 | Built years 築年月 | | 1984 1984年 | Nonlife insurance 損保 | | The main 要 | Move-in 入居 | | Immediately 即 | Trade aspect 取引態様 | | Mediation 仲介 | Conditions 条件 | | Two people Available / Pets Negotiable / Musical Instruments consultation 二人入居可/ペット相談/楽器相談 | Remarks 備考 | | Laundry Area Available 洗濯機置場あり | Area information 周辺情報 | | FamilyMart Ekoda Station south exit shop until the (convenience store) 42m Sante drag Ekoda shop 108m Gourmet City until the (drug stores) to 78mBOOKOFF (book off) Ekoda shop (Other) to 88mTESCO Ekoda store up to (super) 107m drag Segami Ekoda store (drugstore) ファミリーマート 江古田駅南口店(コンビニ)まで42mサンテドラッグ 江古田店(ドラッグストア)まで78mBOOKOFF (ブックオフ) 江古田店(その他)まで88mTESCO 江古田店(スーパー)まで107mドラッグセガミ 江古田店(ドラッグストア)まで108mグルメシティ 江古田店(スーパー)まで143m |
Building appearance建物外観 
Living and room居室・リビング 




Kitchenキッチン 
Bathバス 
Toiletトイレ 
Receipt収納 
Other Equipmentその他設備 

Entrance玄関 
|