Rentals » Kanto » Tokyo » Nerima
 
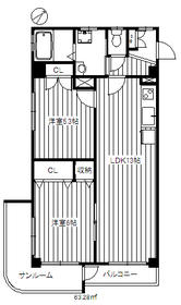
| Railroad-station 沿線・駅 | | Tokyo Metro Yurakucho Line / Hikawadai 東京メトロ有楽町線/氷川台 | Address 住所 | | Nerima-ku, Tokyo Hayamiya 1 東京都練馬区早宮1 | Walk 徒歩 | | 1 minute 1分 | Rent 賃料 | | 139,000 yen 13.9万円 | Management expenses 管理費・共益費 | | 7000 yen 7000円 | Key money 礼金 | | 139,000 yen 13.9万円 | Security deposit 敷金 | | 139,000 yen 13.9万円 | Floor plan 間取り | | 2LDK 2LDK | Occupied area 専有面積 | | 63.28 sq m 63.28m2 | Direction 向き | | Southwest 南西 | Type 種別 | | Mansion マンション | Year Built 築年 | | 30 years old 築30年 | | ◆ System K ◆ Bathroom add-fired function ◆ Bathroom Vanity ◆ TV Intercom ◆ ◆システムK◆浴室追焚機能◆洗髪洗面化粧台◆TVドアホン◆ |
| ◆ Daily dishes Ease system Kitchen ◆ Peace of mind security of TV Intercom ◆ Shampoo dresser indispensable to everyday life ◆ 13 Pledge of living is attractive rooms ◆ Bright room of the southwest angle room ◆ Bidet ◆ ◆毎日のお料理ラクラクシステムキッチン◆安心セキュリティーのTVドアホン◆毎日の生活には欠かせないシャンプードレッサー◆13帖のリビングが魅力のお部屋です◆南西角部屋の明るい室内◆ウォシュレット◆ |
| Bus toilet by, balcony, Air conditioning, Gas stove correspondence, closet, Flooring, Washbasin with shower, TV interphone, Indoor laundry location, Yang per good, System kitchen, Add-fired function bathroom, Corner dwelling unit, Warm water washing toilet seat, Dressing room, Elevator, Seperate, Two-burner stove, Bicycle-parking space, CATV, Optical fiber, Outer wall tiling, Immediate Available, Two-sided lighting, All room storage, With grill, All room Western-style, Sorting, Deposit 1 month, CATV Internet, Two tenants consultation, Bike shelter, Southwest angle dwelling unit, All living room flooring, Entrance hall, 2 wayside Available, Dimple key, Net private line, Deposit required, Closet 2 places, Within a 5-minute walk station, Southwestward, LDK12 tatami mats or more, City gas, BS, Key money one month バストイレ別、バルコニー、エアコン、ガスコンロ対応、クロゼット、フローリング、シャワー付洗面台、TVインターホン、室内洗濯置、陽当り良好、システムキッチン、追焚機能浴室、角住戸、温水洗浄便座、脱衣所、エレベーター、洗面所独立、2口コンロ、駐輪場、CATV、光ファイバー、外壁タイル張り、即入居可、2面採光、全居室収納、グリル付、全居室洋室、振分、敷金1ヶ月、CATVインターネット、二人入居相談、バイク置場、南西角住戸、全居室フローリング、玄関ホール、2沿線利用可、ディンプルキー、ネット専用回線、保証金不要、クロゼット2ヶ所、駅徒歩5分以内、南西向き、LDK12畳以上、都市ガス、BS、礼金1ヶ月 |
Property name 物件名 | | Rental housing of Nerima-ku, Tokyo Hayamiya 1 Hikawadai Station [Rental apartment ・ Apartment] information Property Details 東京都練馬区早宮1 氷川台駅の賃貸住宅[賃貸マンション・アパート]情報 物件詳細 | Transportation facilities 交通機関 | | Tokyo Metro Yurakucho Line / Hikawadai walk 1 minute Tokyo Metro Fukutoshin / Hikawadai walk 1 minute 東京メトロ有楽町線/氷川台 歩1分 東京メトロ副都心線/氷川台 歩1分
| Floor plan details 間取り詳細 | | Hiroshi 6 Hiroshi 5.3 LDK13 洋6 洋5.3 LDK13 | Construction 構造 | | Rebar Con 鉄筋コン | Story 階建 | | Second floor / 6-story 2階/6階建 | Built years 築年月 | | November 1984 1984年11月 | Nonlife insurance 損保 | | The main 要 | Parking lot 駐車場 | | Site 19900 yen 敷地内19900円 | Move-in 入居 | | Immediately 即 | Trade aspect 取引態様 | | Mediation 仲介 | Conditions 条件 | | Two people Available / Children Allowed / Office Unavailable 二人入居可/子供可/事務所利用不可 | Property code 取り扱い店舗物件コード | | hi004036 hi004036 | Intermediate fee 仲介手数料 | | 1 month 1ヶ月 | Remarks 備考 | | Tokyo Metro Fukutoshin Hikawadai Station 1-minute walk / Kaishin 777m until the first elementary school / Commodities Iida up to 94m / ◆ Hikawadai Station 1-minute walk of the good location ◆ Caretaker resident of peace of mind ◆ 東京メトロ副都心線氷川台駅徒歩1分/開進第一小学校まで777m/コモディイイダまで94m/◆氷川台駅徒歩1分の好立地◆安心の管理人常駐◆ | Area information 周辺情報 | | Kaishin to the first elementary school (elementary school) up to 777m Commodities Iida (super) up to 94m Family Mart (convenience store) up to 16m Nerimasogobyoin (hospital) up to 2100m Sumitomo Mitsui Banking Corporation (Bank) 114m Nerima Hikawadai post office (post office) 267m 開進第一小学校(小学校)まで777mコモディイイダ(スーパー)まで94mファミリーマート(コンビニ)まで16m練馬総合病院(病院)まで2100m三井住友銀行(銀行)まで114m練馬氷川台郵便局(郵便局)まで267m |
Building appearance建物外観 


Living and room居室・リビング  Living
リビング
Kitchenキッチン  Kitchen
キッチン
Bathバス  bath
風呂
Toiletトイレ  Bidet
ウォシュレット
Receipt収納  Receipt
収納
Other room spaceその他部屋・スペース  bedroom
ベッドルーム
Washroom洗面所  Independent wash basin
独立洗面台
Balconyバルコニー  Veranda
ベランダ
Entrance玄関  Entrance
玄関

Supermarketスーパー  Commodities Iida until the (super) 94m
コモディイイダ(スーパー)まで94m
Post office郵便局  267m to Nerima Hikawadai post office (post office)
練馬氷川台郵便局(郵便局)まで267m
Bank銀行  Sumitomo Mitsui Banking Corporation 114m until the (Bank)
三井住友銀行(銀行)まで114m
Otherその他 
Location
|