Rentals » Kanto » Tokyo » Nishitokyo
 
| Railroad-station 沿線・駅 | | Seibu Ikebukuro Line / Hibarigaoka 西武池袋線/ひばりヶ丘 | Address 住所 | | Tokyo Nishitokyo Yato cho 東京都西東京市谷戸町1 | Walk 徒歩 | | 13 minutes 13分 | Rent 賃料 | | 156,200 yen 15.62万円 | Management expenses 管理費・共益費 | | 3200 yen 3200円 | Security deposit 敷金 | | 312,400 yen 31.24万円 | Floor plan 間取り | | 3LDK 3LDK | Occupied area 専有面積 | | 73 sq m 73m2 | Direction 向き | | South 南 | Type 種別 | | Mansion マンション | Year Built 築年 | | Built 12 years 築12年 | | UR Green Plaza Hibarigaoka South 4 Building URグリーンプラザひばりが丘南4号棟 |
| UR rent key money unnecessary ・ Unnecessary brokerage fees ・ Renewal fee unnecessary ・ Guarantor unnecessary! UR賃貸は礼金不要・仲介手数料不要・更新料不要・保証人不要! |
| Hibarigaoka Station Tanashi Station and the Seibu Ikebukuro line Seibu Shinjuku Line By using the bus are available. Lush living environment. We offer besides many properties. We hope to see you. バスを利用すれば西武新宿線の田無駅と西武池袋線のひばりヶ丘駅が利用可能。緑豊かな生活環境。他にも多数物件をご用意しております。ご来場をお待ちしています。 |
| Bus toilet by, Air conditioning, Gas stove correspondence, Bathroom Dryer, Indoor laundry location, Yang per good, System kitchen, Facing south, Add-fired function bathroom, Dressing room, Seperate, Bathroom vanity, Bicycle-parking space, Delivery Box, closet, CATV, Immediate Available, Key money unnecessary, A quiet residential area, top floor, 3-neck over stove, surveillance camera, Stand-alone kitchen, Guarantor unnecessary, Unnecessary brokerage fees, CATV Internet, 2 wayside Available, Interior renovation completed, Deposit 2 months, Leafy residential area, Good view, The window in the bathroom, Closet 2 places, South living, Three-sided balcony, Some flooring, Elevator 2 groups, Fireproof structure, Earthquake-resistant structure, 2 Station Available, Within a 3-minute bus stop walk, meeting place, On-site playground, On-site trash Storage, Day shift management, Our managed propertiesese-style room, Glass top stove, South balcony, Entrance storage, BS, Ventilation good バストイレ別、エアコン、ガスコンロ対応、浴室乾燥機、室内洗濯置、陽当り良好、システムキッチン、南向き、追焚機能浴室、脱衣所、洗面所独立、洗面化粧台、駐輪場、宅配ボックス、押入、CATV、即入居可、礼金不要、閑静な住宅地、最上階、3口以上コンロ、防犯カメラ、独立型キッチン、保証人不要、仲介手数料不要、CATVインターネット、2沿線利用可、内装リフォーム済、敷金2ヶ月、緑豊かな住宅地、眺望良好、浴室に窓、クロゼット2ヶ所、南面リビング、3面バルコニー、一部フローリング、エレベーター2基、耐火構造、耐震構造、2駅利用可、バス停徒歩3分以内、集会所、敷地内遊び場、敷地内ごみ置き場、日勤管理、当社管理物件、和室、ガラストップコンロ、南面バルコニー、玄関収納、BS、通風良好 |
Property name 物件名 | | Rental housing in Tokyo Nishitokyo Yato cho Hibarigaoka Station [Rental apartment ・ Apartment] information Property Details 東京都西東京市谷戸町1 ひばりヶ丘駅の賃貸住宅[賃貸マンション・アパート]情報 物件詳細 | Transportation facilities 交通機関 | | Seibu Ikebukuro Line / Hibarigaoka step 13 minutes Seibu Shinjuku Line / Tanashi 8 minutes by bus (bus stop) Sumitomo Heavy Industries, before the bus walk 1 minute JR Chuo Line / Musashisakai bus 23 minutes (bus stop) Sumitomo Heavy Industries, before the bus walk 1 minute 西武池袋線/ひばりヶ丘 歩13分 西武新宿線/田無 バス8分 (バス停)住友重機械工業前バス 歩1分 JR中央線/武蔵境 バス23分 (バス停)住友重機械工業前バス 歩1分
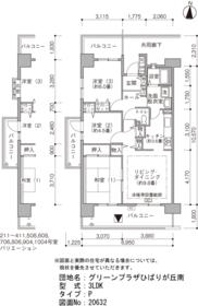
| Floor plan details 間取り詳細 | | Sum 6 Hiroshi 6 Hiroshi 4.5 LD9.8K3.6 和6 洋6 洋4.5 LD9.8K3.6 | Construction 構造 | | Rebar Con 鉄筋コン | Story 階建 | | 13th floor / 13-story 13階/13階建 | Built years 築年月 | | March 2002 2002年3月 | Parking lot 駐車場 | | Site 13650 yen / Flat 置駐 敷地内13650円/平置駐 | Move-in 入居 | | Immediately 即 | Trade aspect 取引態様 | | Lender 貸主 | Property code 取り扱い店舗物件コード | | 632-4-1304 632-4-1304 | Intermediate fee 仲介手数料 | | Unnecessary 不要 | Remarks 備考 | | Seibu Shinjuku Line Tanashi Station bus 8 minutes Sumitomo Heavy Industries, before Tomafu 1 minute / Hibarigaoka 1000m to Parco / Seven-Eleven adjacent / Commuting management / Reform: interior renovation completed / Parking Lot ・ Key money renewal fee guarantor unnecessary 西武新宿線田無駅バス8分住友重機械工業前停歩1分/ひばりヶ丘パルコまで1000m/セブンイレブン隣接/通勤管理/リフォーム:内装リフォーム済/駐車場・礼金更新料保証人不要 |
Building appearance建物外観 
Living and room居室・リビング 
 Air conditioning one Installed
エアコン1台設置済み
Kitchenキッチン  System kitchen - with stove
システムキッチン-コンロ付き
Bathバス  Bathroom ventilation dryer, window, mirror, With handrail.
浴室換気乾燥機、窓、鏡、手すり付き。
Toiletトイレ  With over shelves and towel
棚やタオルかけ付き
Receipt収納  Relaxing Japanese-style room Storage lot
くつろげる和室 収納たっぷり
Other room spaceその他部屋・スペース  Bright Western-style Yes each room storage
明るい洋室 各室収納あり
Washroom洗面所  Vanity table with
洗面化粧台台付き
Balconyバルコニー  balcony Day very good
バルコニー 日当り大変よし
Entrance玄関  Plenty there is housed in front of the entrance, Very convenient.
玄関前に収納がたっぷりあり、大変便利。
Other common areasその他共有部分  Yes Delivery Box
宅配ボックスあり
View眺望  Good view, Day ・ Ventilation is also good
眺望良好、日当り・風通しも良好
Otherその他 
Location
|