Rentals » Kanto » Tokyo » Ota City
 
| Railroad-station 沿線・駅 | | Tokyu Toyoko Line / Denenchofu 東急東横線/田園調布 | Address 住所 | | Ota-ku, Tokyo Denenchofu 5 東京都大田区田園調布5 | Walk 徒歩 | | 12 minutes 12分 | Rent 賃料 | | 350,000 yen 35万円 | Management expenses 管理費・共益費 | | 10000 yen 10000円 | Key money 礼金 | | 350,000 yen 35万円 | Security deposit 敷金 | | 700,000 yen 70万円 | Floor plan 間取り | | 3LDK 3LDK | Occupied area 専有面積 | | 120 sq m 120m2 | Direction 向き | | South 南 | Type 種別 | | Mansion マンション | Year Built 築年 | | Built 27 years 築27年 | | Berushieru Denenchofu ベルシエール田園調布 |
| Full of profound feeling rent with car port of Den-en Chofu 田園調布の重厚感溢れるカーポート付賃貸 |
| Pet-friendly low-rise auto lock apartment is located in an exclusive residential area. Views of the Tamagawa river from the south-facing balcony facing the private garden, Grand piano is also available. Parking with two, Denenchofu elementary school, It is Denenchofu junior high school district. 高級住宅街に建つペット可低層オートロックマンション。専用庭に面した南向きのバルコニーからは多摩川河川敷が望め、グランドピアノも利用可能です。駐車場2台付き、田園調布小学校、田園調布中学校学区です。 |
| Bus toilet by, balcony, Gas stove correspondence, closet, auto lock, Indoor laundry location, Shoe box, System kitchen, Facing south, Add-fired function bathroom, Warm water washing toilet seat, Dressing room, Seperate, Bicycle-parking space, Outer wall tiling, A quiet residential area, Two-sided lighting, 3-neck over stove, Stand-alone kitchen, With grill, All room Western-style, Parking two Allowed, Two-sided balcony, Entrance hall, Private garden, Dimple key, Maisonette, terrace, Window in the kitchen, Parking two free, Dish washing dryer, Leafy residential area, Air Conditioning All rooms, The window in the bathroom, Carport, Microwave Oven, Toilet 2 places, South 2 rooms, South living, Located on a hill, Closet 3 places, Fireproof structure, Earthquake-resistant structure, South 3 rooms, Mu front building, Fireworks viewing, Located in tiers, 2 Station Available, 3 station more accessible, Located in the south tiers, One low-rise, No upper floor, On-site trash Storage, The area occupied 30 square meters or more, LDK18 tatami mats or more, Gas oven, Window in washroom, Wide balcony, South balcony, Carpet Zhang バストイレ別、バルコニー、ガスコンロ対応、クロゼット、オートロック、室内洗濯置、シューズボックス、システムキッチン、南向き、追焚機能浴室、温水洗浄便座、脱衣所、洗面所独立、駐輪場、外壁タイル張り、閑静な住宅地、2面採光、3口以上コンロ、独立型キッチン、グリル付、全居室洋室、駐車2台可、2面バルコニー、玄関ホール、専用庭、ディンプルキー、メゾネット、テラス、キッチンに窓、駐車場2台無料、食器洗乾燥機、緑豊かな住宅地、エアコン全室、浴室に窓、カーポート、オーブンレンジ、トイレ2ヶ所、南面2室、南面リビング、高台に立地、クロゼット3ヶ所、耐火構造、耐震構造、南面3室、前面棟無、花火大会鑑賞、ひな壇に立地、2駅利用可、3駅以上利用可、南ひな壇に立地、1種低層、上階無し、敷地内ごみ置き場、専有面積30坪以上、LDK18畳以上、ガスオーブン、洗面所に窓、ワイドバルコニー、南面バルコニー、じゅうたん張 |
Property name 物件名 | | Rental housing of Ota-ku, Tokyo Denenchofu 5 Denenchofu Station [Rental apartment ・ Apartment] information Property Details 東京都大田区田園調布5 田園調布駅の賃貸住宅[賃貸マンション・アパート]情報 物件詳細 | Transportation facilities 交通機関 | | Tokyu Toyoko Line / Denenchofu walk 12 minutes Tokyu Meguro Line / Denenchofu walk 12 minutes Tokyu Meguro Line / Tama River walk 19 minutes 東急東横線/田園調布 歩12分 東急目黒線/田園調布 歩12分 東急目黒線/多摩川 歩19分
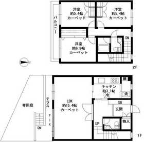
| Floor plan details 間取り詳細 | | Hiroshi 6.9 Hiroshi 5.4 Hiroshi 5.4 LDK18.5 洋6.9 洋5.4 洋5.4 LDK18.5 | Construction 構造 | | Rebar Con 鉄筋コン | Story 階建 | | 1st floor / 2-story 1階/2階建 | Built years 築年月 | | January 1988 1988年1月 | Nonlife insurance 損保 | | The main 要 | Parking lot 駐車場 | | Free with 付無料 | Move-in 入居 | | Immediately 即 | Trade aspect 取引態様 | | Mediation 仲介 | Conditions 条件 | | Two people Available / Children Allowed / Pets Negotiable / Musical Instruments consultation / Office Unavailable / Room share consultation 二人入居可/子供可/ペット相談/楽器相談/事務所利用不可/ルームシェア相談 | Property code 取り扱い店舗物件コード | | 4646343 4646343 | Deposit buildup 敷金積み増し | | In the case of pet breeding deposit 3 months (total) ペット飼育の場合敷金3ヶ月(総額) | Fixed-term lease 定期借家 | | 1-year fixed-term lease 定期借家 1年 | Intermediate fee 仲介手数料 | | 1.08 months 1.08ヶ月 | In addition ほか初期費用 | | Total 15,800 yen (Breakdown: Act safe life 15,750 yen) 合計1.58万円(内訳:アクト安心ライフ1.575万円) | Remarks 備考 | | Guideline rent 374,583 yen renewal fee 1 month Pets Allowed, Piano Allowed めやす賃料374583円更新料1ヶ月ペット可、ピアノ可 |
Building appearance建物外観 


Living and room居室・リビング  Wide living
ワイドなリビング
 Master bedroom
主寝室
Kitchenキッチン  With dishwasher
食洗機付き

Bathバス  With reheating
追い焚き付き
Receipt収納 
Washroom洗面所  Wash basin also on the second floor, Toilet There
2階にも洗面台、トイレ有り

Entrance玄関  Shoe box
シューズボックス

Parking lot駐車場 
Location
|