Rentals » Kanto » Tokyo » Ota City
 
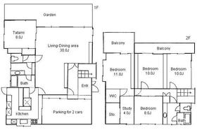
| Railroad-station 沿線・駅 | | Tokyu Ikegami Line / Nagahara 東急池上線/長原 | Address 住所 | | Ota-ku, Tokyo Kamiikedai 4 東京都大田区上池台4 | Walk 徒歩 | | 10 minutes 10分 | Rent 賃料 | | 470,000 yen 47万円 | Key money 礼金 | | 470,000 yen 47万円 | Security deposit 敷金 | | 940,000 yen 94万円 | Floor plan 間取り | | 5SLDK 5SLDK | Occupied area 専有面積 | | 217.61 sq m 217.61m2 | Type 種別 | | Residential home 一戸建て | Year Built 築年 | | Built 37 years 築37年 | | Kamiikedai House 上池台ハウス |
| Bus toilet by, Gas stove correspondence, Yang per good, System kitchen, Add-fired function bathroom, Warm water washing toilet seat, Seperate, Bicycle-parking space, Immediate Available, A quiet residential area, Two-sided lighting, Walk-in closet, Two tenants consultation, Bike shelter, Storeroom, Parking two free, Deposit 2 months, Dryer, Deposit required, Office consultation, Musical Instruments consultation, Toilet 2 places, Storeroom, 2 Station Available, Within a 10-minute walk station, The area occupied 30 square meters or more, Plane parking, LDK25 tatami mats or moreese-style room 8 tatami mats or more, Bedroom 10 tatami mats or more, 8 tatami greater than or equal to a total room, Key money one month バストイレ別、ガスコンロ対応、陽当り良好、システムキッチン、追焚機能浴室、温水洗浄便座、洗面所独立、駐輪場、即入居可、閑静な住宅地、2面採光、ウォークインクロゼット、二人入居相談、バイク置場、物置、駐車場2台無料、敷金2ヶ月、乾燥機、保証金不要、事務所相談、楽器相談、トイレ2ヶ所、納戸、2駅利用可、駅徒歩10分以内、専有面積30坪以上、平面駐車場、LDK25畳以上、和室8畳以上、寝室10畳以上、全居室8畳以上、礼金1ヶ月 |
Property name 物件名 | | Rental housing of Ota-ku, Tokyo Kamiikedai 4 Nagahara Station [Rental apartment ・ Apartment] information Property Details 東京都大田区上池台4 長原駅の賃貸住宅[賃貸マンション・アパート]情報 物件詳細 | Transportation facilities 交通機関 | | Tokyu Ikegami Line / Ayumi Nagahara 10 minutes Tokyu Ikegami Line / Senzokuike walk 13 minutes 東急池上線/長原 歩10分 東急池上線/洗足池 歩13分
| Floor plan details 間取り詳細 | | Sum 8 Ocean 11 Ocean 10 Ocean 10 Hiroshi 8 LDK38 closet 4 和8 洋11 洋10 洋10 洋8 LDK38 納戸 4 | Construction 構造 | | Other その他 | Story 階建 | | 2-story 2階建 | Built years 築年月 | | February 1978 1978年2月 | Parking lot 駐車場 | | Free with / Chu two Allowed 付無料/駐2台可 | Move-in 入居 | | Immediately 即 | Trade aspect 取引態様 | | Mediation 仲介 | Conditions 条件 | | Two people Available / Musical Instruments consultation / Office use consultation 二人入居可/楽器相談/事務所利用相談 | Property code 取り扱い店舗物件コード | | kamiikedai44511 kamiikedai44511 | Remarks 備考 | | Tokyu Ikegami Line senzoku-ike station walk 13 minutes 東急池上線洗足池駅徒歩13分 |
Building appearance建物外観 
Living and room居室・リビング 
 Living
リビング
Kitchenキッチン  Kitchen
キッチン

Bathバス  bath
風呂
Other room spaceその他部屋・スペース 
 bedroom
ベッドルーム


Washroom洗面所 
Balconyバルコニー  Veranda
ベランダ
Garden庭 
Entrance玄関  Entrance
玄関
Location
|