|
Railroad-station 沿線・駅 | | Tokyu Ikegami Line / Ikegami 東急池上線/池上 |
Address 住所 | | Ota-ku, Tokyo Ikegami 3 東京都大田区池上3 |
Walk 徒歩 | | 7 minutes 7分 |
Rent 賃料 | | ¥ 100,000 10万円 |
Key money 礼金 | | ¥ 100,000 10万円 |
Security deposit 敷金 | | ¥ 100,000 10万円 |
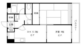
Floor plan 間取り | | 2DK 2DK |
Occupied area 専有面積 | | 41.5 sq m 41.5m2 |
Direction 向き | | Southwest 南西 |
Type 種別 | | Mansion マンション |
Year Built 築年 | | Built 37 years 築37年 |
|
bicycle, There yard bike (free)
自転車、バイク置場あり(無料)
|
|
bicycle, There yard bike (free) Add-fired Independent wash Gas K (no stove) NTT, CATV (Additional fee)
自転車、バイク置場あり(無料) 追焚 独立洗面 ガスK(コンロなし)NTT、CATV(別途契約)
|
|
Bus toilet by, balcony, Air conditioning, Gas stove correspondence, Indoor laundry location, Yang per good, Add-fired function bathroom, Seperate, Bicycle-parking space, CATV, Optical fiber, Immediate Available, Deposit 1 month, Bike shelter, Vinyl flooring, Housing 2 between, The window in the bathroom, Within a 10-minute walk station, Southwestward, Entrance storage, Key money one month
バストイレ別、バルコニー、エアコン、ガスコンロ対応、室内洗濯置、陽当り良好、追焚機能浴室、洗面所独立、駐輪場、CATV、光ファイバー、即入居可、敷金1ヶ月、バイク置場、クッションフロア、収納2間、浴室に窓、駅徒歩10分以内、南西向き、玄関収納、礼金1ヶ月
|
Property name 物件名 | | Rental housing of Ota-ku, Tokyo Ikegami 3 Ikegami Station [Rental apartment ・ Apartment] information Property Details 東京都大田区池上3 池上駅の賃貸住宅[賃貸マンション・アパート]情報 物件詳細 |
Transportation facilities 交通機関 | | Tokyu Ikegami Line / Ayumi Ikegami 7 minutes Toei Asakusa Line / Nishimagome walk 18 minutes Tokyu Tamagawa / Musashi Ayumi Nitta 20 minutes 東急池上線/池上 歩7分 都営浅草線/西馬込 歩18分 東急多摩川線/武蔵新田 歩20分
|
Floor plan details 間取り詳細 | | Sum 6 Hiroshi 4 DK6.3 和6 洋4 DK6.3 |
Construction 構造 | | Rebar Con 鉄筋コン |
Story 階建 | | 1st floor / Three-story 1階/3階建 |
Built years 築年月 | | September 1977 1977年9月 |
Nonlife insurance 損保 | | 20,000 yen two years 2万円2年 |
Move-in 入居 | | Immediately 即 |
Trade aspect 取引態様 | | Mediation 仲介 |
Intermediate fee 仲介手数料 | | 1 month 1ヶ月 |
Area information 周辺情報 | | Fashion Center Shimamura Kugahara shop 463m until the (shopping center) to 959m super Ozeki Ikegami shop (super) up to 521m Seven-Eleven Ota Ikegami 3-chome (convenience store) up to 432m Kojima NEW Ikegami store (hardware store) to 404mTSUTAYA Ikegami Station store (video rental) ファッションセンターしまむら久が原店(ショッピングセンター)まで959mスーパーオオゼキ池上店(スーパー)まで521mセブンイレブン大田区池上3丁目店(コンビニ)まで432mコジマNEW池上店(ホームセンター)まで404mTSUTAYA池上駅前店(レンタルビデオ)まで463mカプリチョーザ池上店(飲食店)まで517m |