1972December
80,000 yen, One-room, 3rd floor / 4-story, 28 sq m
Rentals » Kanto » Tokyo » Ota City
 
| Railroad-station 沿線・駅 | | JR Keihin Tohoku Line / Kamata JR京浜東北線/蒲田 | Address 住所 | | Ota-ku, Tokyo Kamata 1 東京都大田区蒲田1 | Walk 徒歩 | | 6 minutes 6分 | Rent 賃料 | | 80,000 yen 8万円 | Key money 礼金 | | 80,000 yen 8万円 | Security deposit 敷金 | | 160,000 yen 16万円 | Floor plan 間取り | | One-room ワンルーム | Occupied area 専有面積 | | 28 sq m 28m2 | Direction 向き | | West 西 | Type 種別 | | Mansion マンション | Year Built 築年 | | Built 42 years 築42年 | | Nakatani Bill ナカタニビル |
| Consumer electronics ・ Furniture rental fee 5% OFF! Nationwide free shipping! 家電・家具レンタル料5%OFF!全国送料無料! |
| Update fees: the new rent 26.25% 更新事務手数料:新賃料の26.25% |
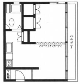
| balcony, Gas stove correspondence, Indoor laundry location, Facing south, Corner dwelling unit, Two-burner stove, closet, City gas, Guarantee company Available バルコニー、ガスコンロ対応、室内洗濯置、南向き、角住戸、2口コンロ、押入、都市ガス、保証会社利用可 |
Property name 物件名 | | Rental housing of Ota-ku, Tokyo Kamata 1 Kamata Station [Rental apartment ・ Apartment] information Property Details 東京都大田区蒲田1 蒲田駅の賃貸住宅[賃貸マンション・アパート]情報 物件詳細 | Transportation facilities 交通機関 | | JR Keihin Tohoku Line / Ayumi Kamata 6 minutes Keikyu main line / Ayumi Keikyukamata 9 minutes Tokyu Ikegami Line / Ayumi Hasunuma 13 minutes JR京浜東北線/蒲田 歩6分 京急本線/京急蒲田 歩9分 東急池上線/蓮沼 歩13分
| Floor plan details 間取り詳細 | | Hiroshi 10 洋10 | Construction 構造 | | Rebar Con 鉄筋コン | Story 階建 | | 3rd floor / 4-story 3階/4階建 | Built years 築年月 | | December 1972 1972年12月 | Move-in 入居 | | Immediately 即 | Trade aspect 取引態様 | | Mediation 仲介 | Property code 取り扱い店舗物件コード | | 3-09993597655-302 3-09993597655-302 |
Building appearance建物外観 
Living and room居室・リビング 





Kitchenキッチン 
Bathバス 
Toiletトイレ 
Receipt収納 
Entrance玄関 

Otherその他 
Location
|