|
Railroad-station 沿線・駅 | | Tokyu Ikegami Line / Chidoricho 東急池上線/千鳥町 |
Address 住所 | | Ota-ku, Tokyo Kugahara 6 東京都大田区久が原6 |
Walk 徒歩 | | 7 minutes 7分 |
Rent 賃料 | | 250,000 yen 25万円 |
Key money 礼金 | | 250,000 yen 25万円 |
Security deposit 敷金 | | 500,000 yen 50万円 |
Floor plan 間取り | | 3LDK 3LDK |
Occupied area 専有面積 | | 148.83 sq m 148.83m2 |
Direction 向き | | South 南 |
Type 種別 | | Residential home 一戸建て |
Year Built 築年 | | Built 34 years 築34年 |
|
Kugahara 6-chome rental housing
久が原6丁目賃貸住宅
|
|
◆ Mitsui Home 2 × 4 construction method ◆ Piano consultation (memorandum of understanding required)
◆三井ホーム2×4工法◆ピアノ相談(覚書要)
|
|
◎ dishwasher ・ Oven with ◎ large attic storage ◎ with a private garden
◎食洗機・オーブン付◎大型小屋裏収納◎専用庭付
|
|
Bus toilet by, Air conditioning, Gas stove correspondence, closet, Flooring, Bathroom Dryer, Indoor laundry location, System kitchen, Facing south, Seperate, Immediate Available, 3-neck over stove, Parking one free, All room Western-style, Private garden, Deposit 2 months, 2 × 4 construction method, Musical Instruments consultation, Attic storage, 2 Station Available, Within a 10-minute walk station, The area occupied 30 square meters or more, LDK25 tatami mats or more
バストイレ別、エアコン、ガスコンロ対応、クロゼット、フローリング、浴室乾燥機、室内洗濯置、システムキッチン、南向き、洗面所独立、即入居可、3口以上コンロ、駐車場1台無料、全居室洋室、専用庭、敷金2ヶ月、2×4工法、楽器相談、屋根裏収納、2駅利用可、駅徒歩10分以内、専有面積30坪以上、LDK25畳以上
|
Property name 物件名 | | Rental housing of Ota-ku, Tokyo Kugahara 6 Chidorichō Station [Rental apartment ・ Apartment] information Property Details 東京都大田区久が原6 千鳥町駅の賃貸住宅[賃貸マンション・アパート]情報 物件詳細 |
Transportation facilities 交通機関 | | Tokyu Ikegami Line / Chidoricho step 7 minutes Tokyu Ikegami Line / Kugahara walk 12 minutes 東急池上線/千鳥町 歩7分 東急池上線/久が原 歩12分
|
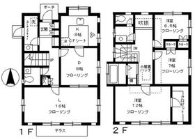
Floor plan details 間取り詳細 | | Hiroshi 12 Hiroshi 7 Hiroshi 6.5 K8D8L16 洋12 洋7 洋6.5 K8D8L16 |
Construction 構造 | | Wooden 木造 |
Story 階建 | | 1-2 floor / 2-story 1-2階/2階建 |
Built years 築年月 | | September 1980 1980年9月 |
Nonlife insurance 損保 | | The main 要 |
Parking lot 駐車場 | | Free with 付無料 |
Move-in 入居 | | Immediately 即 |
Trade aspect 取引態様 | | Mediation 仲介 |
Conditions 条件 | | Musical Instruments consultation 楽器相談 |
Property code 取り扱い店舗物件コード | | 6123190 6123190 |
Guarantor agency 保証人代行 | | Warranty company use 必 monthly total payments 25 ~ Hundred percent Every year update 8 thousand yen ~ 12,000 yen In the case of 25% monthly monthly total payments × 0.7% 保証会社利用必 月額総支払額の25 ~ 100% 1年毎更新8千円 ~ 1.2万円 25%の場合月々月額総支払額×0.7% |
In addition ほか初期費用 | | Total 26,300 yen (Breakdown: The key exchange cost 26,250 yen) 合計2.63万円(内訳:鍵交換費用2.625万円) |
Other expenses ほか諸費用 | | Compensation incidental expenses (per month) 2000 yen 補償付帯費(月額)2000円 |
Remarks 備考 | | Normal cleaning cost: 140,644 yen (when you leave) 通常清掃費用:140,644円(退去時) |