|
Railroad-station 沿線・駅 | | JR Keihin Tohoku Line / Omori JR京浜東北線/大森 |
Address 住所 | | Ota-ku, Tokyo Minamimagome 2 東京都大田区南馬込2 |
Walk 徒歩 | | 11 minutes 11分 |
Rent 賃料 | | 120,000 yen 12万円 |
Key money 礼金 | | 120,000 yen 12万円 |
Security deposit 敷金 | | 120,000 yen 12万円 |
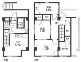
Floor plan 間取り | | 3SDK 3SDK |
Occupied area 専有面積 | | 76.8 sq m 76.8m2 |
Direction 向き | | East 東 |
Type 種別 | | Mansion マンション |
Year Built 築年 | | Built 26 years 築26年 |
|
SK Bill
SKビル
|
|
It is the renovation already of clean rooms. Stylish maisonette.
リフォーム済のキレイなお部屋です。おしゃれなメゾネット。
|
|
Easy-to-use floor plan. It a little walk from the station is good and safe management.
使いやすい間取りです。駅から少し歩きますが管理良好で安心です。
|
|
Bus toilet by, balcony, Indoor laundry location, Yang per good, Shoe box, Corner dwelling unit, closet, Optical fiber, Immediate Available, top floor, Sorting, Deposit 1 month, Two tenants consultation, 3 face lighting, Two air conditioning, Maisonette, Good view, Upper closet, Storeroom, 2 Station Available
バストイレ別、バルコニー、室内洗濯置、陽当り良好、シューズボックス、角住戸、押入、光ファイバー、即入居可、最上階、振分、敷金1ヶ月、二人入居相談、3面採光、エアコン2台、メゾネット、眺望良好、天袋、納戸、2駅利用可
|
Property name 物件名 | | Rental housing of Ota-ku, Tokyo Minamimagome 2 Omori Station [Rental apartment ・ Apartment] information Property Details 東京都大田区南馬込2 大森駅の賃貸住宅[賃貸マンション・アパート]情報 物件詳細 |
Transportation facilities 交通機関 | | JR Keihin Tohoku Line / Ayumi Omori 11 minutes Toei Asakusa Line / Magome walk 13 minutes Toei Asakusa Line / Nishimagome walk 14 minutes JR京浜東北線/大森 歩11分 都営浅草線/馬込 歩13分 都営浅草線/西馬込 歩14分
|
Floor plan details 間取り詳細 | | Sum 4.5 Hiroshi 7.3 Hiroshi 3.5 DK7.4 closet 3 和4.5 洋7.3 洋3.5 DK7.4 納戸 3 |
Construction 構造 | | Rebar Con 鉄筋コン |
Story 階建 | | 5th floor / 5-story 5階/5階建 |
Built years 築年月 | | January 1989 1989年1月 |
Nonlife insurance 損保 | | 20,000 yen two years 2万円2年 |
Parking lot 駐車場 | | Neighborhood 120m30000 yen 近隣120m30000円 |
Move-in 入居 | | Immediately 即 |
Trade aspect 取引態様 | | Mediation 仲介 |
Conditions 条件 | | Two people Available / Children Allowed 二人入居可/子供可 |
Property code 取り扱い店舗物件コード | | 6425276 6425276 |
Remarks 備考 | | Maibasuketto up to 45m / Until MINISTOP 160m / Counseling the elderly まいばすけっとまで45m/ミニストップまで160m/高齢者相談 |
Area information 周辺情報 | | 30m to 5m Maibasuketto (super) to Daejeon Minamimagome 2 (post office) 大田南馬込2(郵便局)まで5mまいばすけっと(スーパー)まで30m |