1982
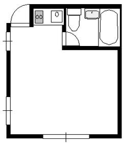
45,000 yen, One-room, Second floor / 2-story, 13.5 sq m
Rentals » Kanto » Tokyo » Setagaya
 
| Railroad-station 沿線・駅 | | Tokyu Denentoshi / Yoga 東急田園都市線/用賀 | Address 住所 | | Setagaya-ku, Tokyo Kamiyoga 6 東京都世田谷区上用賀6 | Walk 徒歩 | | 18 minutes 18分 | Rent 賃料 | | 45,000 yen 4.5万円 | Security deposit 敷金 | | 45,000 yen 4.5万円 | Floor plan 間取り | | One-room ワンルーム | Occupied area 専有面積 | | 13.5 sq m 13.5m2 | Direction 向き | | Southeast 南東 | Type 種別 | | Apartment アパート | Year Built 築年 | | Built 33 years 築33年 | | Heights Kamiyoga ハイツ上用賀 |
| Air conditioning, Flooring, top floor, Electric stove, 1 floor 2 dwelling unit エアコン、フローリング、最上階、電気コンロ、1フロア2住戸 |
Property name 物件名 | | Rental housing of Setagaya-ku, Tokyo Kamiyoga 6 Yoga Station [Rental apartment ・ Apartment] information Property Details 東京都世田谷区上用賀6 用賀駅の賃貸住宅[賃貸マンション・アパート]情報 物件詳細 | Transportation facilities 交通機関 | | Tokyu Denentoshi / Ayumi Yoga 18 minutes Odakyu line / Chitosefunabashi step 23 minutes Tokyu Denentoshi / Sakurashinmachi step 28 minutes 東急田園都市線/用賀 歩18分 小田急線/千歳船橋 歩23分 東急田園都市線/桜新町 歩28分
| Floor plan details 間取り詳細 | | Hiroshi 8 洋8 | Construction 構造 | | Wooden 木造 | Story 階建 | | Second floor / 2-story 2階/2階建 | Built years 築年月 | | 1982 1982年 | Nonlife insurance 損保 | | 15,000 yen two years 1.5万円2年 | Move-in 入居 | | Immediately 即 | Trade aspect 取引態様 | | Mediation 仲介 | Intermediate fee 仲介手数料 | | 1.05 months 1.05ヶ月 | Area information 周辺情報 | | 725m Maibasuketto Kamiyoga 1-chome to Summit store Kinutaten (super) 516m to (super) up to 656m Lawson Kanto Central Hospital store (convenience store) up to 722m public school Mutual Aid Association Kanto Central Hospital (Hospital) サミットストア砧店(スーパー)まで725mまいばすけっと上用賀1丁目店(スーパー)まで656mローソン関東中央病院店(コンビニ)まで722m公立学校共済組合関東中央病院(病院)まで516m |
Building appearance建物外観 


Living and room居室・リビング 



Kitchenキッチン 
Bathバス 
Entrance玄関 
Other common areasその他共有部分  Bicycle-parking space, Laundry Area
駐輪場、洗濯機置場
Location
|