Rentals » Kanto » Tokyo » Setagaya
 
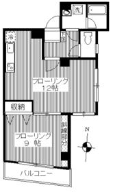
| Railroad-station 沿線・駅 | | Tokyu Denentoshi / Sangenjaya 東急田園都市線/三軒茶屋 | Address 住所 | | Setagaya-ku, Tokyo excellent horse 1 東京都世田谷区上馬1 | Walk 徒歩 | | 8 minutes 8分 | Rent 賃料 | | 155,000 yen 15.5万円 | Management expenses 管理費・共益費 | | 5000 Yen 5000円 | Key money 礼金 | | 155,000 yen 15.5万円 | Security deposit 敷金 | | 155,000 yen 15.5万円 | Floor plan 間取り | | 1LDK 1LDK | Occupied area 専有面積 | | 50.45 sq m 50.45m2 | Direction 向き | | Southeast 南東 | Type 種別 | | Mansion マンション | Year Built 築年 | | Built 17 years 築17年 | | Building appearance, It is a beautiful auto lock apartment in both the indoor. 建物外観、室内ともにキレイなオートロックマンションです。 |
| Rich property information our website Please also look at questions of full, Consultation, etc. also please feel free to tell us. 豊富な物件情報が満載の当社ホームページも是非ご覧下さいご不明な点、ご相談等もお気軽にお申し付け下さい。 |
| Bus toilet by, balcony, Air conditioning, closet, Flooring, auto lock, Indoor laundry location, Yang per good, System kitchen, Corner dwelling unit, Dressing room, Elevator, Two-burner stove, Bicycle-parking space, CATV, Outer wall tiling, Immediate Available, Two-sided lighting, Single person consultation, Southeast angle dwelling unit, Deposit 1 month, Two tenants consultation, All living room flooring, 2 wayside Available, Dimple key, Net private line, Student Counseling, 3 station more accessible, Within a 10-minute walk station, Southeast direction, LDK12 tatami mats or more, City gas, Key money one month バストイレ別、バルコニー、エアコン、クロゼット、フローリング、オートロック、室内洗濯置、陽当り良好、システムキッチン、角住戸、脱衣所、エレベーター、2口コンロ、駐輪場、CATV、外壁タイル張り、即入居可、2面採光、単身者相談、東南角住戸、敷金1ヶ月、二人入居相談、全居室フローリング、2沿線利用可、ディンプルキー、ネット専用回線、学生相談、3駅以上利用可、駅徒歩10分以内、東南向き、LDK12畳以上、都市ガス、礼金1ヶ月 |
Property name 物件名 | | Rental housing of Setagaya-ku, Tokyo excellent horse 1 Sangenjaya Station [Rental apartment ・ Apartment] information Property Details 東京都世田谷区上馬1 三軒茶屋駅の賃貸住宅[賃貸マンション・アパート]情報 物件詳細 | Transportation facilities 交通機関 | | Tokyu Denentoshi / Sangenjaya walk 8 minutes Tokyu Denentoshi / Komazawa University walk 11 minutes Tokyu Setagaya Line / Nishitaishido step 12 minutes 東急田園都市線/三軒茶屋 歩8分 東急田園都市線/駒沢大学 歩11分 東急世田谷線/西太子堂 歩12分
| Floor plan details 間取り詳細 | | Hiroshi 9 LDK12 洋9 LDK12 | Construction 構造 | | Rebar Con 鉄筋コン | Story 階建 | | 5th floor / 6-story 5階/6階建 | Built years 築年月 | | October 1997 1997年10月 | Nonlife insurance 損保 | | 20,000 yen two years 2万円2年 | Move-in 入居 | | Immediately 即 | Trade aspect 取引態様 | | Mediation 仲介 | Conditions 条件 | | Single person Allowed / Children not allowed / Office Unavailable 単身者可/子供不可/事務所利用不可 | Property code 取り扱い店舗物件コード | | 1012041502 1012041502 | Balcony area バルコニー面積 | | 2.4 sq m 2.4m2 | Intermediate fee 仲介手数料 | | 1.08 months 1.08ヶ月 | Remarks 備考 | | Tokyu Denentoshi Komazawa University station 11 minutes' walk / 200m to a convenience store / 300m to super / Questions, Consultation, etc. also please feel free to tell us 東急田園都市線駒沢大学駅徒歩11分/コンビニまで200m/スーパーまで300m/ご不明な点、ご相談等もお気軽にお申し付け下さい | Area information 周辺情報 | | (Convenience store) 300m to 200m (super) to (コンビニ)まで200m(スーパー)まで300m |
Building appearance建物外観 
Living and room居室・リビング 

Kitchenキッチン 
Bathバス 
Washroom洗面所 
Location
|