1991
200,000 yen, 3LDK, 2-story, 67.5 sq m
Rentals » Kanto » Tokyo » Setagaya

| Railroad-station 沿線・駅 | | Odakyu line / Seijogakuen before 小田急線/成城学園前 | Address 住所 | | Setagaya-ku, Tokyo Seijo 5 東京都世田谷区成城5 | Walk 徒歩 | | 8 minutes 8分 | Rent 賃料 | | 200,000 yen 20万円 | Key money 礼金 | | 200,000 yen 20万円 | Security deposit 敷金 | | 400,000 yen 40万円 | Floor plan 間取り | | 3LDK 3LDK | Occupied area 専有面積 | | 67.5 sq m 67.5m2 | Type 種別 | | terrace ・ Townhouse テラス・タウンハウス | Year Built 築年 | | Built 24 years 築24年 | | Free parking with Two! 駐車場2台付無料! |
| Free parking with Two! 駐車場2台付無料! |
| Bus toilet by, Air conditioning, closet, Flooring, Bathroom Dryer, Indoor laundry location, Yang per good, Facing south, Immediate Available, A quiet residential area, 3-neck over stove, Pets Negotiable, bay window, Flat to the station, Parking two free, Shutter, Toilet 2 places, Within a 10-minute walk stationese-style room, Flooring Chokawa, Ventilation good バストイレ別、エアコン、クロゼット、フローリング、浴室乾燥機、室内洗濯置、陽当り良好、南向き、即入居可、閑静な住宅地、3口以上コンロ、ペット相談、出窓、駅まで平坦、駐車場2台無料、雨戸、トイレ2ヶ所、駅徒歩10分以内、和室、フローリング張替、通風良好 |
Property name 物件名 | | Rental housing of Setagaya-ku, Tokyo Seijo 5 Seijogakuenmae [Rental apartment ・ Apartment] information Property Details 東京都世田谷区成城5 成城学園前駅の賃貸住宅[賃貸マンション・アパート]情報 物件詳細 | Transportation facilities 交通機関 | | Odakyu line / Seijogakuen before walking 8 minutes 小田急線/成城学園前 歩8分
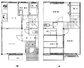
| Floor plan details 間取り詳細 | | Sum 4.5 Hiroshi 6 Hiroshi 5 和4.5 洋6 洋5 | Construction 構造 | | Wooden 木造 | Story 階建 | | 2-story 2階建 | Built years 築年月 | | 1991 1991年 | Nonlife insurance 損保 | | The main 要 | Parking lot 駐車場 | | Free with / Chu two Allowed 付無料/駐2台可 | Move-in 入居 | | Immediately 即 | Trade aspect 取引態様 | | Mediation 仲介 | Conditions 条件 | | Two people Available / Pets Negotiable / Office Unavailable 二人入居可/ペット相談/事務所利用不可 | Remarks 備考 | | Renovation: 2013 February second floor flooring bathroom new tatami new / Spacious kitchen! リフォーム:2013年2月2階フローリング バスルーム新品畳新品/広々キッチン! | Area information 周辺情報 | | Seijo Seijo Ishii shop (super) up to 677m Seijo pharmacy 551m private Seijogakuen high school until (drugstore) (High School ・ National College of Technology) up to 597m private Seijogakuen primary school up to 470m private Seijogakuen junior high school (junior high school) (elementary school) up to 711m Seijo kindergarten (kindergarten ・ 771m to the nursery) 成城石井成城店(スーパー)まで677mセイジョー薬局(ドラッグストア)まで551m私立成城学園高校(高校・高専)まで470m私立成城学園中学校(中学校)まで597m私立成城学園初等学校(小学校)まで711m成城幼稚園(幼稚園・保育園)まで771m |
Building appearance建物外観 
Otherその他 









Location
|