1997February
84,000 yen, 1LDK, 1st floor / 4-story, 32.67 sq m
Rentals » Kanto » Tokyo » Setagaya
 
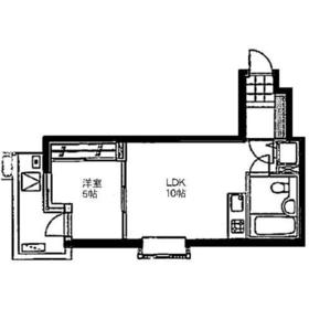
| Railroad-station 沿線・駅 | | Tokyu Denentoshi / Yoga 東急田園都市線/用賀 | Address 住所 | | Setagaya-ku, Tokyo Nakamachi 5 東京都世田谷区中町5 | Walk 徒歩 | | 12 minutes 12分 | Rent 賃料 | | 84,000 yen 8.4万円 | Management expenses 管理費・共益費 | | 10000 yen 10000円 | Security deposit 敷金 | | 84,000 yen 8.4万円 | Floor plan 間取り | | 1LDK 1LDK | Occupied area 専有面積 | | 32.67 sq m 32.67m2 | Direction 向き | | Southwest 南西 | Type 種別 | | Mansion マンション | Year Built 築年 | | Built 18 years 築18年 | | Club Lanai Mediterranean クラブラナイメディタレイニアン |
| Apartment in the image of the resort of the Mediterranean! 地中海のリゾートをイメージしたマンション! |
| By all means please see once! ぜひ一度ご覧ください! |
| balcony, Air conditioning, closet, Flooring, auto lock, Indoor laundry location, Shoe box, System kitchen, Bicycle-parking space, Delivery Box, CATV, Key money unnecessary, Two-sided lighting, bay window, BS バルコニー、エアコン、クロゼット、フローリング、オートロック、室内洗濯置、シューズボックス、システムキッチン、駐輪場、宅配ボックス、CATV、礼金不要、2面採光、出窓、BS |
Property name 物件名 | | Rental housing of Setagaya-ku, Tokyo Nakamachi 5 Yoga Station [Rental apartment ・ Apartment] information Property Details 東京都世田谷区中町5 用賀駅の賃貸住宅[賃貸マンション・アパート]情報 物件詳細 | Transportation facilities 交通機関 | | Tokyu Denentoshi / Ayumi Yoga 12 minutes 東急田園都市線/用賀 歩12分
| Floor plan details 間取り詳細 | | Hiroshi 3.5 LDK8 洋3.5 LDK8 | Construction 構造 | | Rebar Con 鉄筋コン | Story 階建 | | 1st floor / 4-story 1階/4階建 | Built years 築年月 | | February 1997 1997年2月 | Nonlife insurance 損保 | | 15,000 yen two years 1.5万円2年 | Move-in 入居 | | Consultation 相談 | Trade aspect 取引態様 | | Mediation 仲介 | Property code 取り扱い店舗物件コード | | 20513058 20513058 | Total units 総戸数 | | 26 units 26戸 | Balcony area バルコニー面積 | | 4.86 sq m 4.86m2 | Intermediate fee 仲介手数料 | | 90,720 yen 9.072万円 |
Building appearance建物外観 


Living and room居室・リビング 
Kitchenキッチン 
Bathバス 
Toiletトイレ 
Receipt収納 
Washroom洗面所 
Balconyバルコニー 
Other Equipmentその他設備  Air cleaner
空気清浄機
Entrance玄関 
Location
|