Rentals » Kanto » Tokyo » Setagaya


Akusasu Todoroki
Brokerage commissions 50% discount campaign in!
Deposit ・ key money ・ Deposit 0 months! Pets Negotiable! For more information Please contact us ☆
Bus toilet by, balcony, Air conditioning, Gas stove correspondence, closet, Flooring, TV interphone, Bathroom Dryer, auto lock, Indoor laundry location, Shoe box, System kitchen, Warm water washing toilet seat, Elevator, Seperate, Bathroom vanity, Two-burner stove, Bicycle-parking space, Delivery Box, Optical fiber, Immediate Available, Key money unnecessary, Deposit required, Pets Negotiable, Sale rent, Guarantor unnecessary, Design, 2 wayside Available, CS, Net private line, 24-hour ventilation system, Located on a hill, 2 Station Available, 3 station more accessible, Within a 10-minute walk station, On-site trash Storage, Built within five years, BS, High speed Internet correspondence, LAN, Deposit ・ Key money unnecessary, Guarantee company Available
Railroad-station
Tokyu Oimachi Line / Todoroki
Address
Setagaya-ku, Tokyo Kaminoge 1
Walk
9 minutes
Rent
97,500 yen
Management expenses
10000 yen
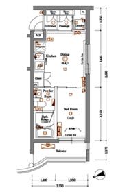
Floor plan
1DK
Occupied area
25.7 sq m
Direction
West
Type
Mansion
Year Built
Built six years
Property name
Rental housing of Setagaya-ku, Tokyo Kaminoge 1 Todoroki Station [Rental apartment ・ Apartment] information Property Details
Transportation facilities
Tokyu Oimachi Line / Ayumi Todoroki 9 minutes
Tokyu Oimachi Line / Ayumi Kaminoge 9 minutes
Tokyu Denentoshi / Futakotamagawa walk 24 minutes
Floor plan details
Hiroshi 4 DK6.4
Construction
Rebar Con
Story
4th floor / 5-story
Built years
March 2008
Nonlife insurance
19,000 yen two years
Move-in
Immediately
Trade aspect
Mediation
Conditions
Two people Available / Pets Negotiable
Deposit buildup
In the case of pet breeding deposit 1 month (gross)
Guarantor agency
Please not inquiry guarantee company Available Contact
In addition
A total of 20,000 yen (Breakdown: club asset subscription fee)
Remarks
Patrol management
Area information
Futakotamagawa rise Chambersburg Mall (shopping center) up to 1622m Seijo Ishii roar shop (super) 630m Super Value roar store (supermarket) up to 751m Seven-Eleven Setagaya Todoroki Valley store (convenience store) up to 488m Three F roar 2-chome (convenience store) to 669m medicine


Building appearance

Building appearance
Building appearance
Building appearance
Building appearance
Building appearance

Living and room

Living and room

Kitchen

Kitchen

Bath

Bath

Toilet

Toilet

Entrance

Entrance
Entrance
Entrance

Other common areas

Other common areas
Other common areas


Location